Grundrisse Einfamilienhaus entdecken
Einfamilienhaus
Es ist oftmals gar nicht so einfach, den perfekten Grundriss für sein eigenes Einfamilienhaus zu finden. Aus diesem Grund haben unsere Architekten zahlreiche Hausentwürfe für Sie konzipiert, von denen Sie sich inspirieren lassen können. Natürlich planen wir aber dann Ihr eigenes Haus exakt nach Ihren Wünschen und Bedürfnissen. Bei uns ist jedes Haus ein Unikat und der Individualität sind keine Grenzen gesetzt.
Die Grundrisse sind der Gesamtgröße nach aufsteigend sortiert.
Grundrisse Variant 45-130
130 m² Grundfläche | Planungsoptionen mit Keller und Zwerchgiebel
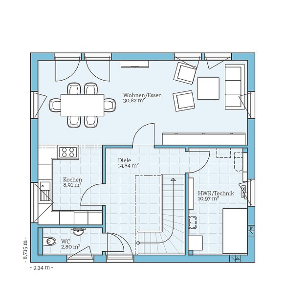
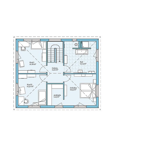
Grundrisse Variant 45-145
145 m² Grundfläche | Planungsoptionen mit Wintergarten und Loggia
ZUR HAUSDETAIL SEITE
Grundrisse Cubus 148
147 m² Grundfläche | Planungsoptionen mit Keller und Erker
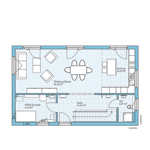
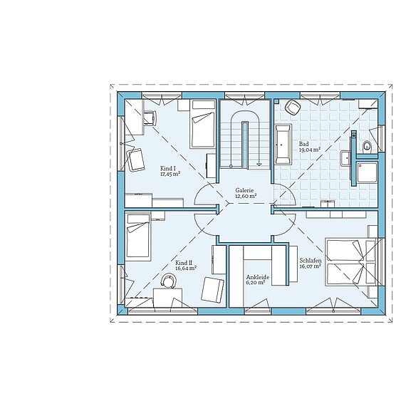
Grundrisse Variant 45-154
155 m² Grundfläche | Planungsoptionen mit Erker und Loggia
Grundrisse Variant 35-172
172 m² Grundfläche | Planungsoptionen mit Zwerchgiebel, überdachtem Freisitz, Garage und Kellerersatzraum
ZUR HAUSDETAIL SEITE
Grundrisse Variant 35-174
174 m² Grundfläche | Planungsoptionen mit Wintergarten
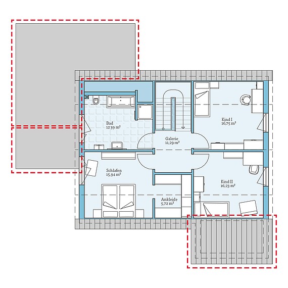
Grundrisse Variant 45-175
174 m² Grundfläche | Planungsoptionen mit Erker und Zwerchgiebel
Grundrisse Villa 178
228 m² Grundfläche | Planungsoptionen mit Teilunterkellerung, überdachtem Freisitz und vergrößertem Wohnbereich
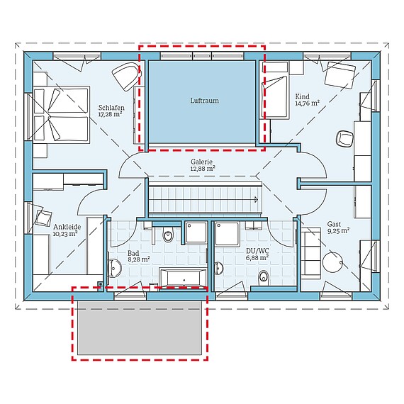
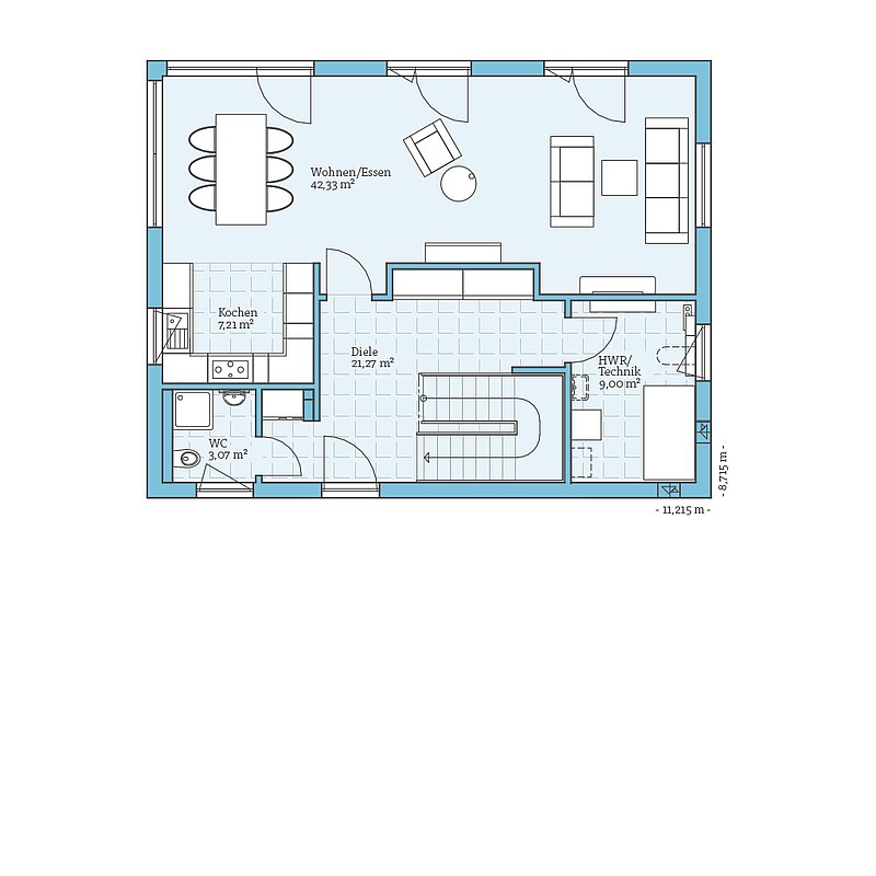
Grundrisse Villa 183
183 m² Grundfläche | Planungsoptionen mit Windfang und Luftraum über dem Essbereich
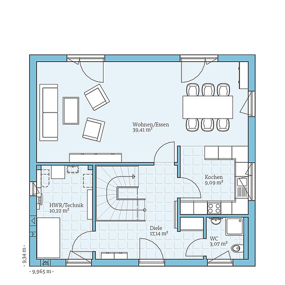
Grundrisse Variant 25-183
183 m² Grundfläche
Grundrisse Variant 35-184
182 m² Grundfläche | Planungsoptionen mit Zwerchgiebel
Bei der Planung eines Einfamilienhaus Grundrisses
Einfamilienhäuser sind, wie der Name vermuten lässt, in der Regel für eine Familie geplant, wobei hier meist ein Elternschlafzimmer sowie zwei Kinderzimmer vorgesehen sind. Bei Ihrer Hausplanung sollten Sie sich jedoch über folgende Punkte Gedanken machen.
Wie wird sich Ihr Familienleben in Zukunft entwickeln?
- Wie viele Kinder sind geplant? Haben Sie genug Zimmer für Ihre Planung?
- Ihre Kinder werden älter. Passt ein Bett mit 140 cm Breite ins Zimmer? Möchten Sie sich mit den Teenagern ein gemeinsames Bad teilen oder ist Ihnen dann ein separates Elternbad lieber?
- Wie nutzen Sie die Kinderzimmer, wenn Ihre Kinder ausgezogen sind? Gibt es Möglichkeiten, diese alternativ zu nutzen, zusammenzulegen oder zu einer Einliegerwohnung umzubauen?
- Wollen Sie bis ins hohe Alter in diesem Haus wohnen? Haben Sie die Möglichkeit, Ihr Leben auf eine Ebene zu beschränken?
Wo spielen Ihre Kinder hauptsächlich?
- Werden die Spielsachen regelmäßig ins Wohnzimmer getragen oder haben sie dort einen festen Platz? Dieser Platz sollte bei der Größe des Wohnzimmers mit eingeplant werden.
- Spielen Ihre Kinder eher in ihrem eigenen Zimmer? Planen Sie die Größe der Zimmer entsprechend. Schaffen Sie alternativ Spielzimmer oder planen Sie genügend Platz in Fluren oder Galerien ein.
Haben Sie genug Stauraum eingeplant?
- Tendenziell wird ein Haushalt mit Kindern immer größer: Kleidung, Spielsachen, Fuhrpark usw. müssen irgendwo verstaut werden. Fragen Sie sich, wo Sie diese Dinge lagern werden.
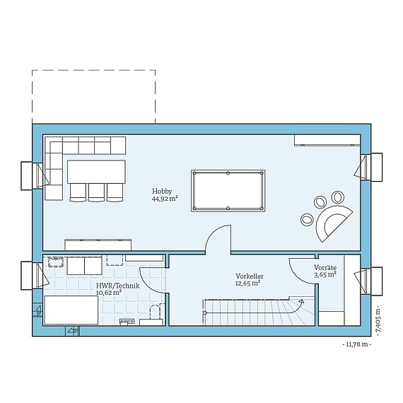
- Planen Sie mit Keller, haben Sie tendenziell genug Stauraum.
- Planen Sie ohne Keller ist es oft ratsam, einen Raum im Haus als Stauraum zu nutzen. Es gibt aber noch weitere Möglichkeiten, Dinge zu verstauen. Beispiele hierfür sind Einbauschränke unter der Treppe oder halb offene Zwischenebenen bei hohen Decken im zweiten Stock. Auch Stauräume außerhalb des Hauses wie eine Garage, Geräteraum hinter dem Carport oder ein Gartenhäuschen sind denkbar.
Wie lärmempfindlich sind Sie?
- Ein offener Wohnbereich mit integrierter Treppe kann ein tolles Stilmittel in einem Haus sein. Dabei sollte jedoch bedacht werden, dass es dadurch oft nur eine Tür zwischen Wohnraum und Kinderzimmern gibt und der Geräuschpegel bei lustigen Abenden mit Freunden störend für die Kinder sein kann.
- Im Teenageralter kann es oftmals vorteilhaft für alle Beteiligten sein, wenn sich die Kinder in ihren eigenen Bereich zurückziehen können - jede zusätzliche Tür kann hierbei helfen.
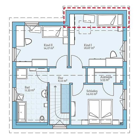
Derzeit im Trend liegt ein separater Elternbereich im Obergeschoss bestehend aus Schlafzimmer, Ankleide, Bad und eventuell einem Hobbyraum oder einer Sauna, der im Gesamten durch eine Tür vom restlichen Haus abgetrennt ist. Die Vorteile hierbei sind
- ein kinderfreier Rückzugsort für die Eltern für gemeinsame Zeit und
- im Alter kann dieser Teil problemlos zu einer Einliegerwohnung umfunktioniert werden.





































































































































