Ihr Zuhause, Ihr Stil
Elegant, modern oder klassisch – das Variant 45-145 können Sie mit unterschiedlichen Farb- und Materialkombinationen genau nach Ihrem Geschmack gestalten. Damit ist unser Haus aus der Hanse Haus Serie mit Satteldach nicht nur optisch ein Multitalent, sondern es zeigt sich auch im Hinblick auf die Nutzung der Räume extrem flexibel.
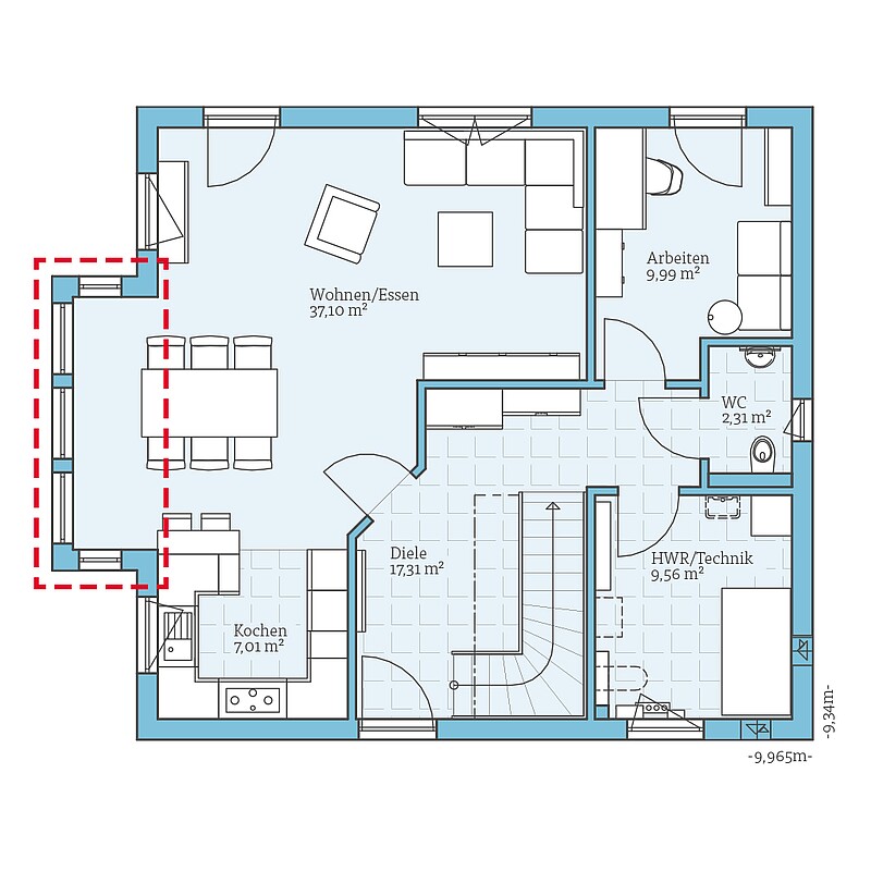
Das zusätzliche Arbeits- und Gästezimmer im Erdgeschoss kann bei Bedarf als drittes Kinderzimmer genutzt werden. Besonders praktisch: In das angrenzende Gäste-WC lässt sich sogar noch eine Dusche integrieren. Ideal für Teenager, die schon mal gerne länger das Bad blockieren.
| Merkmale | |
|---|---|
| Dachform | Satteldach |
| Dachneigung | 45° |
| Kniestock | 50 cm |
| Wohnfläche | 129,52 m² |
| Grundfläche | 144,43 m² |
| Anzahl Geschosse | 1,5 |
Anbau
Möglichkeiten
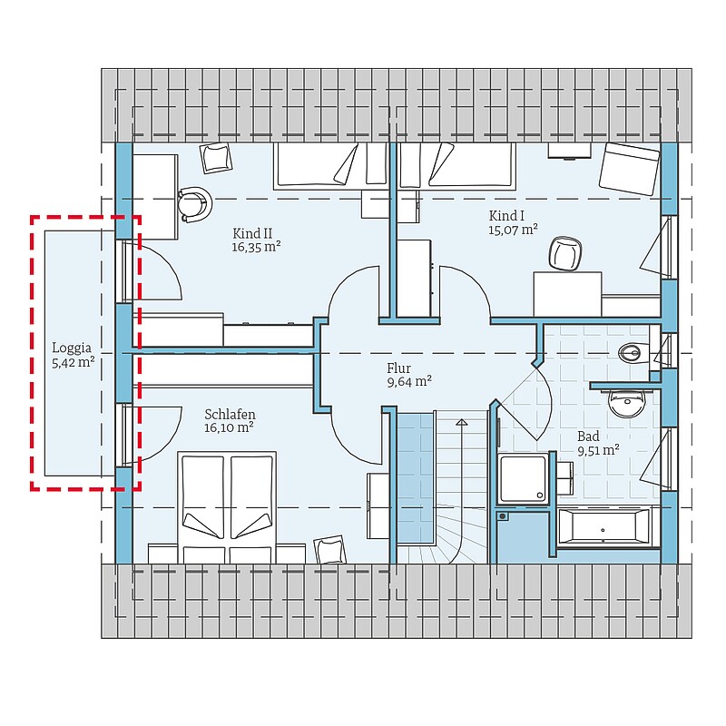
- Wintergarten
- Loggia
Beispiel
Grundrisse
Bekommen Sie durch die Grundrisse einen Eindruck von diesem Haus. Wir zeigen Ihnen unsere Planungsvorschläge, die natürlich auf Wunsch individuell umgeplant werden können.
Zusätzlich haben wir für dieses Haus interessante Planungsoptionen vorbereitet. Klicken Sie sich durch und sehen Sie selbst, welche Varianten wir uns überlegt haben.














