Gleiche Raumeinteilung mit weniger Grundfläche
Ein Hanse-Ausstellungshaus ist eine tolle Möglichkeit, sich von einem Wohnkonzept live überzeugen zu lassen. Wo sonst hat man schon die Möglichkeit, alle Details, Raumaufteilungen und Ausstattungen vorab in Augenschein zu nehmen, anzufassen und zu testen?
So begeistert Sie vielleicht von einem unserer Hanse Haus Ausstellungshäuser auf Anhieb sein mögen, eines ist uns besonders wichtig: Wohnwünsche werden bei uns immer ganz individuell erfüllt.
Auch mit Budgetvorgaben gehen wir verantwortungsvoll um, damit wir für Sie und Ihre Liebsten die perfekte Lösung finden. So erstellen wir als Variante zu unseren Ausstellungshäusern auch Grundrissoptionen, die für kleinere Baubudgets geeignet sind und dennoch einen maximalen Wohnkomfort versprechen.
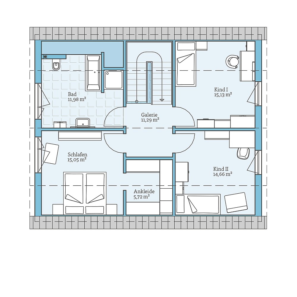
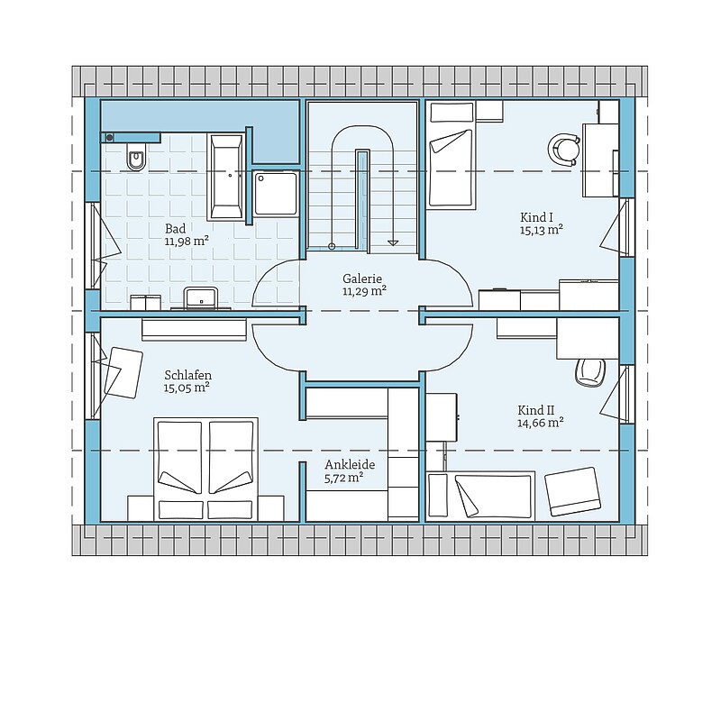
Ein gutes Beispiel für eine solche Option ist die hier gezeigte kleinere Version von unserem Musterhaus Variant 35-161 in Mannheim.
Die Aussenmasse sind zwar verkürzt, auf die Grössen der einzelnen Räume hat dies jedoch nur wenig Einfluss. Und während der ein oder andere Quadratmeter Wohnfläche weniger im Alltag kaum auffällt, schont die Umplanung das Baubudget spürbar und passt sich auch kleineren Grundstücken besser an.
Sprechen Sie einfach mit Ihrem Hanse Haus-Fachberater und lassen Sie sich die zahlreichen Möglichkeiten im Detail zeigen. Gemeinsam finden wir den Entwurf, der perfekt zu Ihnen passt.
| Merkmale | |
|---|---|
| Dachform | Satteldach |
| Dachneigung | 35° |
| Kniestock | 120 cm |
| Wohnfläche | 136,20 m² |
| Grundfläche | 151,94 m² |
| Anzahl Geschosse | 1,5 |
Anbaumöglichkeiten:
- Wintergarten
Beispiel
Grundrisse
Bekommen Sie durch die Grundrisse einen Eindruck von diesem Haus. Wir zeigen Ihnen unsere Planungsvorschläge, die natürlich auf Wunsch individuell umgeplant werden können.










