Viel Wohnraum auch auf kleinen Grundstücken
In Wohngegenden, in denen der Baugrund teuer ist, bietet die Villa 134 eine kosteneffiziente Lösung, um auch auf kleinen Grundstücken einen familienfreundlichen Wohnraum zu schaffen.
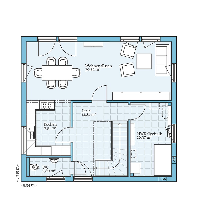
Das Erdgeschoss wird vom offenen Wohn-, Ess- und Kochbereich geprägt, der ein grosszügiges Wohngefühl vermittelt.
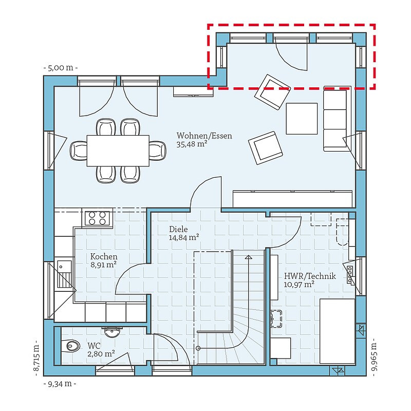
Mit einem der Anbauteile aus der Villa-Reihe wie z. B. dem verglasten Erker mit darüber liegender Loggia können Sie die Wohnfläche noch erweitern.
Im Obergeschoss haben die Kinder- und das Elternschlafzimmer ihren Platz. Das Wellnessbad sorgt morgens für einen frischen Start in den Tag oder bietet erholsame Entspannung am Abend.
| Merkmale | |
|---|---|
| Dachform | Zeltdach |
| Dachneigung | 23,5°/25° |
| Wohnfläche | 127,81 m² |
| Grundfläche | 133,74 m² |
| Anzahl Geschosse | 2 |
Anbau
Möglichkeiten
- Erker mit Loggia
Beispiel
Grundrisse
Bekommen Sie durch die Grundrisse einen Eindruck von diesem Haus. Wir zeigen Ihnen unsere Planungsvorschläge, die natürlich auf Wunsch individuell umgeplant werden können.
Zusätzlich haben wir für dieses Haus interessante Planungsoptionen vorbereitet. Klicken Sie sich durch und sehen Sie selbst, welche Varianten wir uns überlegt haben.












