Grosszügiges Wohnen mit viel Raum für Ihre Ideen
Mit 184 m² Grundfläche bietet auch dieses Haus aus der Hanse Haus Serie Variant grosszügigen Raum für die ganze Familie.
Im Erdgeschoss erzeugt die helle und freundliche Gestaltung des offenen Wohn-, Ess- und Kochbereichs eine angenehme Wohnatmosphäre. Im Dachgeschoss stehen drei Kinderzimmer, das Familienbad und das Elternschlafzimmer mit Ankleide zur Verfügung.
Ideal, wenn Sie gerne Gäste haben: das zusätzliche Gäste- oder Arbeitszimmer im Erdgeschoss und das Gäste-WC mit optionaler Dusche.
| Merkmale | |
|---|---|
| Dachform | Satteldach |
| Dachneigung | 35° |
| Kniestock | 120 cm |
| Wohnfläche | 165,66 m² |
| Grundfläche | 183,18 m² |
| Anzahl Geschosse | 1,5 |
Anbau
Möglichkeiten
- Zwerchgiebel
Beispiel
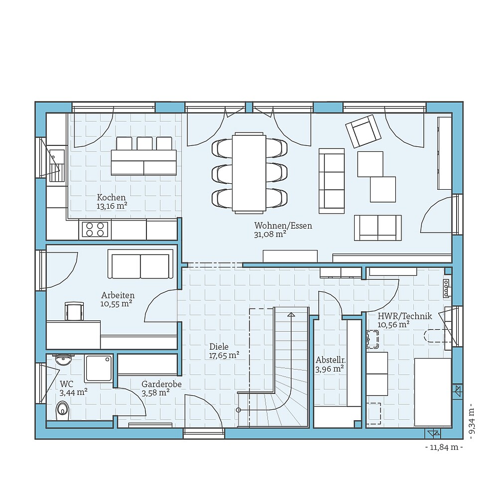
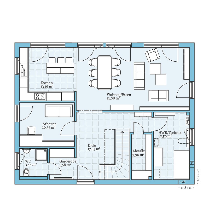
Grundrisse
Bekommen Sie durch die Grundrisse einen Eindruck von diesem Haus. Wir zeigen Ihnen unsere Planungsvorschläge, die natürlich auf Wunsch individuell umgeplant werden können.
Zusätzlich haben wir für dieses Haus interessante Planungsoptionen vorbereitet. Klicken Sie sich durch und sehen Sie selbst, welche Varianten wir uns überlegt haben.













