Modernes Wohnen auch auf kleinen Grundstücken
Viel Wohnraum auf einem kleinen Grundstück zu schaffen, das ist die Stärke des Entwurfs Villa 133. Mit den kompakten Aussenmassen dieser Villa wird auch das Bauen in Gegenden mit hohen Grundstückspreisen realistisch, ohne dass Abstriche beim Wohnkomfort gemacht werden müssen.
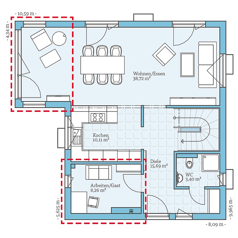
Auf 133 m² stehen neben dem offenen und hellen Wohn-, Ess- und Kochbereich im Erdgeschoss auch noch ein Hauswirtschafts-/Technikraum und ein Gäste-WC zur Verfügung.
Über eine zweiläufige Podesttreppe gelangt man ins Obergeschoss, wo sich neben den Kinderzimmern das Elternschlafzimmer mit Ankleidezimmer und das Familienbad befinden.
| Merkmale | |
|---|---|
| Dachform | Walmdach |
| Dachneigung | 25° |
| Wohnfläche | 126,15 m² |
| Grundfläche | 133,62 m² |
| Anzahl Geschosse | 2 |
Anbau
Möglichkeiten
- Heiz- und Haustechnik im Keller
- Arbeitsbereich oder Gästezimmer im Erdgeschoss
- Hobbyraum, Vorratsraum, Werkstatt im Keller
- Erker mit Flachdach
Beispiel
Grundrisse
Bekommen Sie durch die Grundrisse einen Eindruck von diesem Haus. Wir zeigen Ihnen unsere Planungsvorschläge, die natürlich auf Wunsch individuell umgeplant werden können.
Zusätzlich haben wir für dieses Haus interessante Planungsoptionen vorbereitet. Klicken Sie sich durch und sehen Sie selbst, welche Varianten wir uns überlegt haben.












