Die Hanse Haus Villa 183: so schön grosszügig und hell kann Wohnen sein
Auf den 183 m² der Villa ist herrlich viel Raum für jedes Familienmitglied.
Ihre grossen, nach Süden ausgerichteten Fensterfronten lassen viel Licht in den offenen Wohn- und Essbereich und schaffen ein freundliches Ambiente.
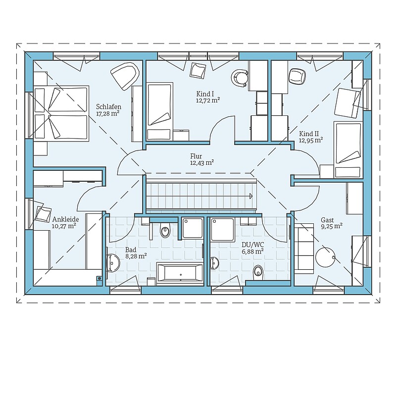
Mit den insgesamt vier Schlafzimmern, einem Gäste- oder Arbeitszimmer, zwei Duschbädern und dem geräumigen Familienbad wird bei diesem Villen-Entwurf der Wunsch nach Raum zum Leben perfekt erfüllt.
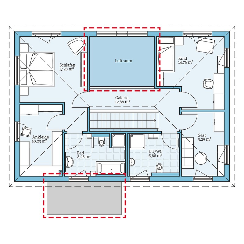
Wahlweise können Sie statt des dritten Kinderzimmers über dem Essbereich auch einen Luftraum einplanen, der zusätzliche Grosszügigkeit vermittelt.
| Merkmale | |
|---|---|
| Dachform | Walmdach |
| Dachneigung | 25° |
| Wohnfläche | 177,63 m² |
| Grundfläche | 183,17 m² |
| Anzahl Geschosse | 2 |
Anbau
Möglichkeiten
- Windfang
- Luftraum über dem Essbereich
Aktion
Dieses Hanse-Haus ist eines unserer aktuellen Aktionshäuser. Wenn Sie sich für die Preise interessieren, dann fordern Sie doch unsere Aktionsbroschüre an.
Beispiel
Grundrisse
Bekommen Sie durch die Grundrisse einen Eindruck von diesem Haus. Wir zeigen Ihnen unsere Planungvorschläge, die natürlich auf Wunsch individuell umgeplant werden können.
Zusätzlich haben wir für dieses Haus interessante Planungsoptionen vorbereitet. Klicken Sie sich durch und sehen Sie selbst, welche Varianten wir uns überlegt haben.













