Das Haus mit Flachdach mit zeitlosem Design
Der Entwurf Cubus 148 ist Ausdruck moderner Lebensart. Klare Linien und eine sachliche Architektur mit Flachdach, die sich Stilmitteln des Bauhauses bedient, machen den vornehmen und doch zurückhaltenden Charakter aus. Das ist gelebtes Understatement pur.
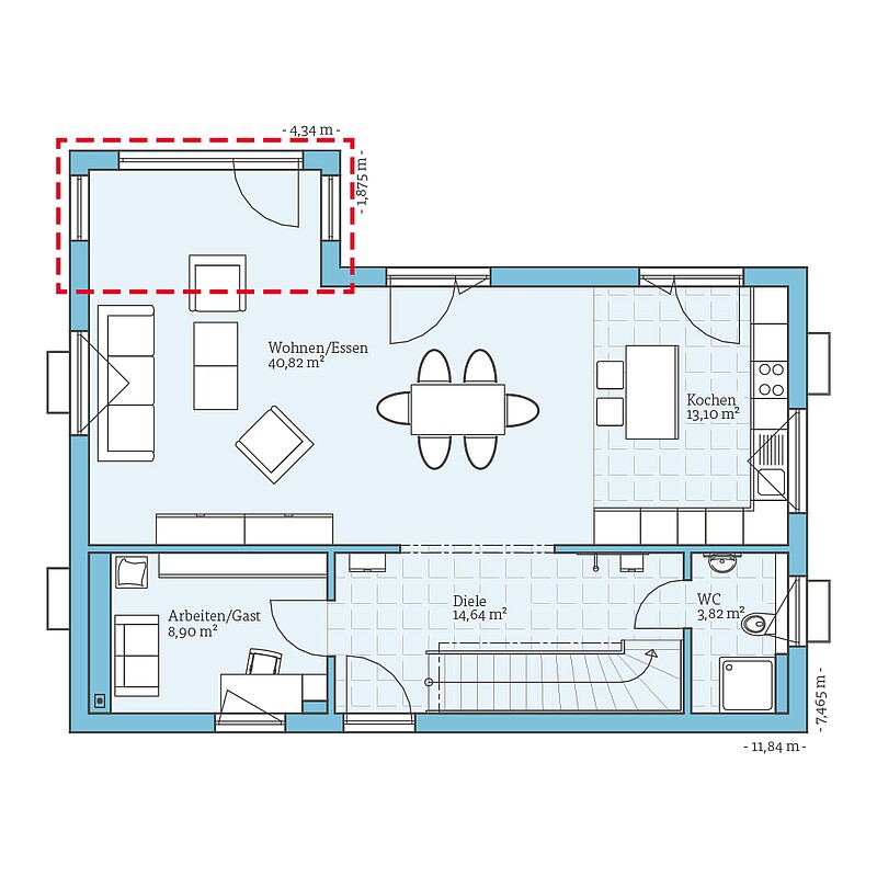
Den kubischen Grundbaukörper können Sie auf Wunsch noch mit einem Flachdachanbau mit darüber liegender Loggia erweitern.
Besonders gut zur Geltung kommt der Anbau in einem starken Farbkontrast oder unter Verwendung eines anderen Materials, wie beispielsweise in Form einer Echtholzverschalung oder Fassadenplatten.
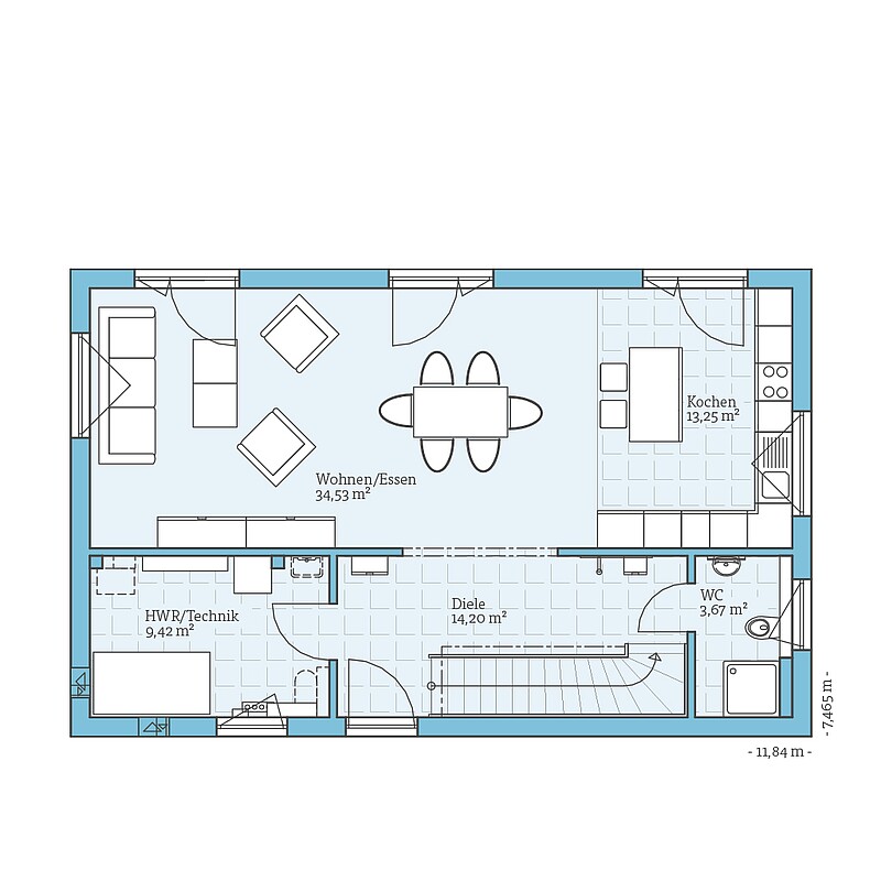
Im Erdgeschoss beeindruckt der mit fast 50 m² riesige Wohn- und Kochbereich. Seine grossen Fensterflächen lassen auch im Winter wohltuende Sonnenstrahlen ins Haus und durchfluten den Raum mit Licht.
Die Schlafräume sind im Obergeschoss untergebracht. An das Elternschlafzimmer grenzt ein eigenes Ankleidezimmer.
| Merkmale | |
|---|---|
| Dachform | Flachdach |
| Dachneigung | 2° |
| Wohnfläche | 141,42 m² |
| Grundfläche | 147,12 m² |
| Anzahl Geschosse | 2 |
Anbau
Möglichkeiten
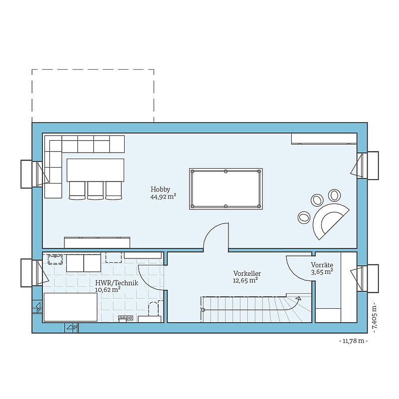
- Kellerabgang (statt Hauswirtschaftsraum/Technik im EG)
- Erker mit darüber liegender Loggia
Beispiel
Grundrisse
Bekommen Sie durch die Grundrisse einen Eindruck von diesem Haus. Wir zeigen Ihnen unsere Planungsvorschläge, die natürlich auf Wunsch individuell umgeplant werden können.
Zusätzlich haben wir für dieses Haus interessante Planungsoptionen vorbereitet. Klicken Sie sich durch und sehen Sie selbst, welche Varianten wir uns überlegt haben.












