Una casa individuale come i suoi abitanti
Doppelhaus 144
Per coloro che vogliono godere dei vantaggi di una casa bifamiliare ma non vogliono rinunciare all'architettura moderna e contemporanea, la casa Doppelhaus (bifamiliare) 144 è la scelta perfetta. Linee chiare e molto vetro determinano il carattere attraente della casa cubica a tetto piatto.
Opzionalmente, la casa può essere ampliata con un secondo piano sfalsato con tetto a due falde. Questo non solo crea una spaziosa terrazza sul tetto con una magnifica vista, ma anche un locale che può essere utilizzato come studio, home cinema o sala hobby.
| Caratteristiche | |
|---|---|
| Forma tetto | Tetto piatto |
| Inclinazione del tetto | 2° |
| Superficie abitativa per unità | 136,92 m² |
| Superficie per unità | 142,70 m² |
| Numero piani | 2 |
Opzione di
pianificazione
- Il secondo piano opzionale con terrazza sul tetto offre una varietà di usi. Area aggiuntiva: più di 72 m². Se il design della casa è combinato con un secondo piano superiore, la disposizione dei locali al primo piano cambia leggermente per creare lo spazio per la scala aggiuntiva.
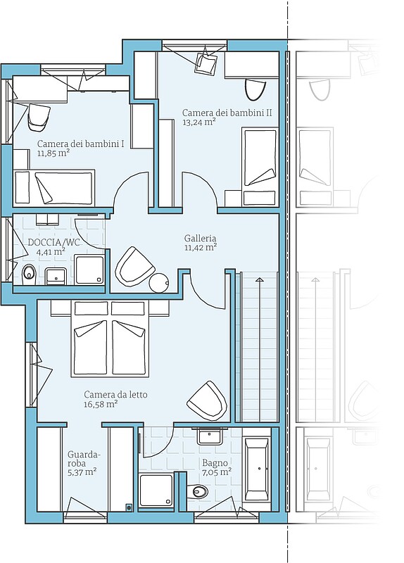
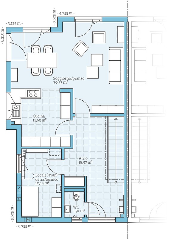
Esempi di
planimetrie
Fatevi un'idea di questa casa con gli esempi di planimetrie. Vi mostriamo le nostre proposte di progettazione, che naturalmente possono essere modificate individualmente su richiesta.

Case della stessa serie
Mostra serie casa








