Architettura individuale con un senso estetico
Cubico, senza tempo ed elegante – così si presenta il concetto architettonico della casa Doppelhaus (bifamiliare) 135. Il design aperto e molto generoso della zona giorno e della cucina trasmette una piacevole atmosfera di vita. Una nicchia di fronte alla cucina si offre come spazio di stoccaggio. Al piano terra, per esempio, lo spazio sotto la scala può anche essere convertito in un ripostiglio.
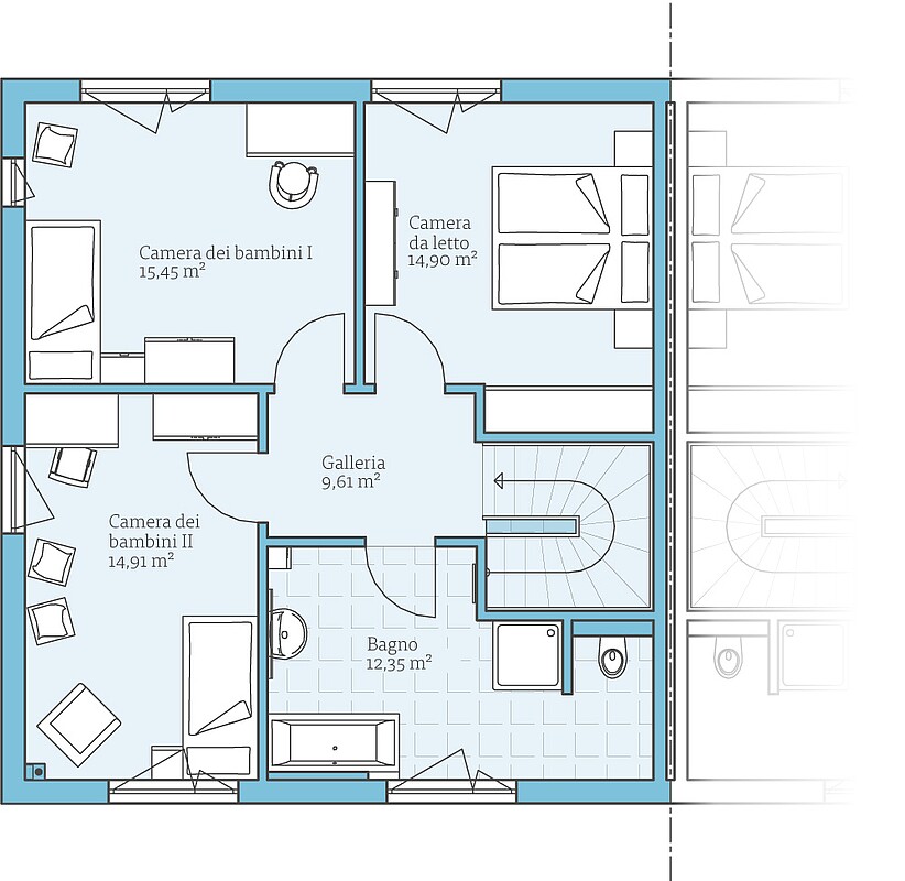
La via che porta al piano superiore passa per una scala a mezzo giro. Oltre alle due camere per bambini, vi si trovano anche la camera da letto principale e il bagno. Se lo si desidera, il piano superiore può essere esteso da una loggia coperta, che protegge anche la terrazza sottostante dalla pioggia.
| Caratteristiche | |
|---|---|
| Forma tetto | Tetto piatto |
| Inclinazione del tetto | 2 |
| Superficie abitativa per unità | 128,99 m² |
| Superficie per unità | 135,51 m² |
| Numero piani | 2 |
Opzione di
pianificazione
- Il piano superiore può essere ampliato opzionalmente da un balcone. Grazie alle pareti esterne avanzate e al tetto prolungato si crea una loggia coperta al piano superiore e una terrazza coperta al piano terra.
Esempi di
planimetrie
Fatevi un'idea di questa casa con gli esempi di planimetrie. Vi mostriamo le nostre proposte di progettazione, che naturalmente possono essere modificate individualmente su richiesta.

Case della stessa serie








