Une maison personnalisée adaptée à ses occupants
Pour ceux qui veulent profiter des avantages d'une maison mitoyenne sans avoir à renoncer à une architecture contemporaine et moderne, la maison Doppelhaus 144 est le choix idéal. Des lignes épurées et beaucoup d'ouvertures vitrées définissent le caractère attrayant de cette maison cubique à toit plat.
En option, la maison peut être agrandie par un deuxième étage décalé avec un toit en appentis. Cela crée non seulement une terrasse de toit spacieuse avec une vue magnifique, mais aussi un studio qui peut être utilisé par exemple comme bureau, home cinéma ou salle de loisirs.
| Caractéristiques | |
|---|---|
| Type de toit | Toit plat |
| Pente du toit | 2° |
| Surface habitable par unité | 136,92 m² |
| Surface au sol par unité | 142,70 m² |
| Nombre d'étages | 2 |
Option
de plans:
- Le deuxième étage optionnel avec une terrasse sur le toit offre de multiples possibilités d'utilisation. Surface supplémentaire : plus de 72 m².
- Si le plan de la maison inclus un deuxième étage, la disposition des pièces au premier étage change quelque peu pour faire de la place à l'escalier supplémentaire.
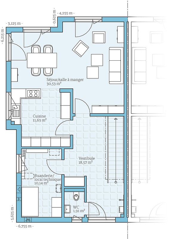
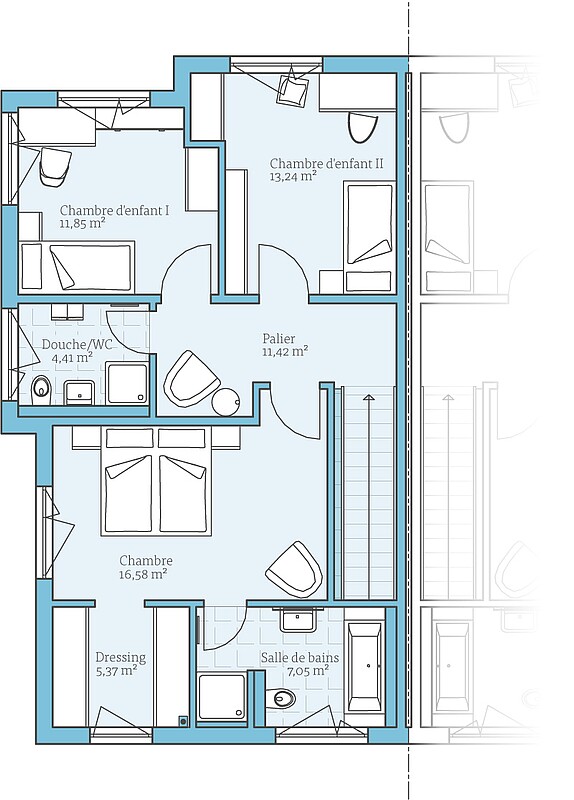
Exemples de
plans d'étage
Faites-vous une idée de cette maison à travers les plans d'étage. Nous vous montrerons nos suggestions de planification, qui peuvent bien sûr être modifiées individuellement sur demande.

Maisons de la même série








