Ein Haus, so individuell wie seine Bewohner
Wer die Vorteile eines Doppelhauses nutzen möchte, aber nicht auf zeitgemässe, moderne Architektur verzichten mag, für den ist das Doppelhaus 144 die perfekte Wahl. Klare Linien und viel Glas bestimmen den ansprechenden Charakter des kubischen Flachdachhauses.
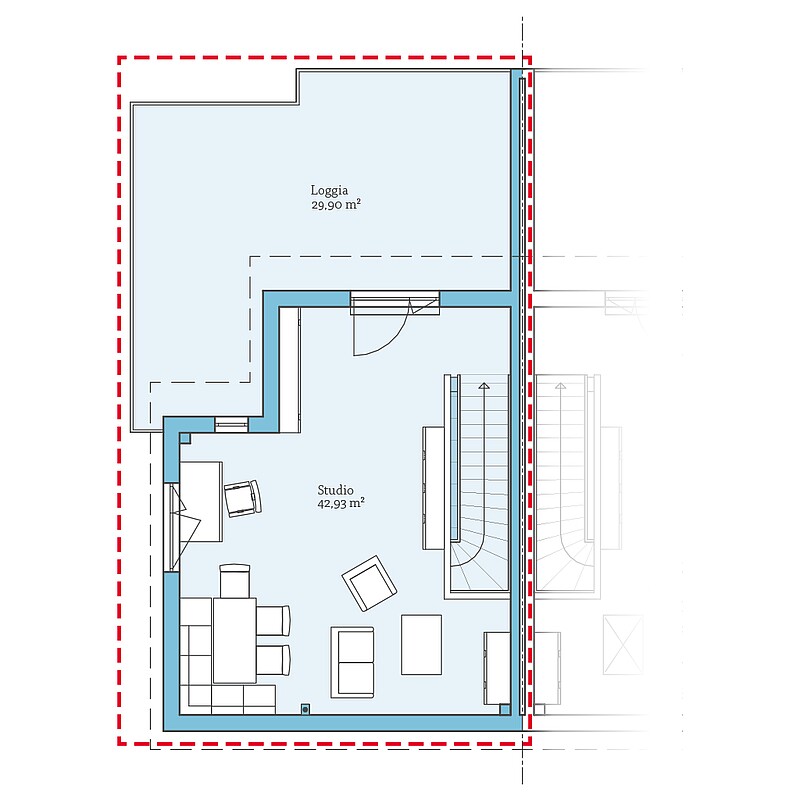
Optional kann das Haus mit einem gestaffelten zweiten Obergeschoss mit Pultdach erweitert werden. So entsteht nicht nur eine grosszügige Dachterrasse mit herrlichem Ausblick, sondern auch ein z. B. als Arbeitszimmer, Heimkino oder Hobbyraum nutzbares Studio.
| Merkmale | |
|---|---|
| Dachform | Flachdach |
| Dachneigung | 2° |
| Wohnfläche je Einheit | 138,27 m² |
| Grundfläche je Einheit | 143,78 m² |
| Anzahl Geschosse | 2 |
Anbau
Möglichkeiten
- 2. Obergeschoss
- Dachterrasse
Beispiel
Grundrisse
Bekommen Sie durch die Grundrisse einen Eindruck von diesem Haus. Wir zeigen Ihnen unsere Planungsvorschläge, die natürlich auf Wunsch individuell umgeplant werden können.
Zusätzlich haben wir für dieses Haus interessante Planungsoptionen vorbereitet. Klicken Sie sich durch und sehen Sie selbst, welche Varianten wir uns überlegt haben.











