Tutti sotto lo stesso tetto – per una piacevole vita familiare
La casa Doppelhaus (bifamiliare) 176 offre una quantità veramente generosa di spazio sui suoi due piani pieni e nella mansarda ulteriormente utilizzabile. La planimetria di 176 m², adatta all'uso quotidiano e alla famiglia, offre una vasta gamma di possibili usi. Oltre ai soggiorni al piano terra e alle camere da letto al piano superiore, ci sono altre stanze disponibili nella mansarda, che possono essere utilizzate, per esempio, come terza camera per bambini, come studio/camera degli ospiti o come locale per gli hobby. C'è anche spazio per un ripostiglio. Opzionalmente, il design della casa può essere esteso con una tettoia per la porta d'ingresso, che protegge la zona d'ingresso dal vento e dalle intemperie.
| Caratteristiche | |
|---|---|
| Forma tetto | Tetto a due falde |
| Inclinazione del tetto | 35° |
| Altezza di gronda | Fußpfette |
| Superficie abitativa per unità | 152,62 m² |
| Superficie per unità | 174,63 m² |
| Numero piani | 2,5 |
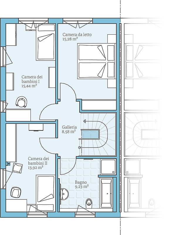
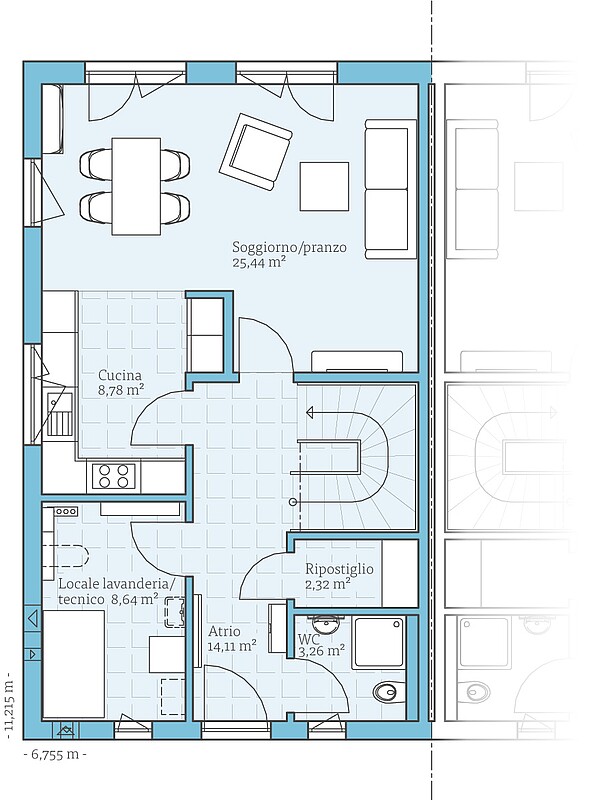
Esempi di
planimetrie
Fatevi un'idea di questa casa con gli esempi di planimetrie. Vi mostriamo le nostre proposte di progettazione, che naturalmente possono essere modificate individualmente su richiesta.

Case della stessa serie









