Spazio libero nella casa bifamiliare
I progetti di case con un'inclinazione del tetto di 25° e un muro d'imposta alto sono molto popolari tra i nostri clienti. Le ragioni: molto spazio in mansarda, l'esterno moderno e un'architettura che è approvata in molte aree di costruzione. Il progetto della casa Doppelhaus (bifamiliare) 25-125 mostra come il concetto abitativo può essere implementato anche come una classica casa bifamiliare.
Ogni casa bifamiliare ha 125 m² di superficie netta e può essere completata con una cantina se lo si desidera. La cantina è poi anche il posto migliore per la lavanderia e ill locale tecnico per il riscaldamento, liberando lo spazio al piano terra per un'ulteriore camera degli ospiti o uno studio.
| Caratteristiche | |
|---|---|
| Forma tetto | Tetto a due falde |
| Inclinazione del tetto | 25° |
| Altezza di gronda | 200 cm |
| Superficie abitativa per unità | 116,64 m² |
| Superficie per unità | 125,56 m² |
| Numero piani | 1,5 |
Opzione di
pianificazione
- Una cantina opzionale non solo crea spazio aggiuntivo nel seminterrato. Dato che la lavanderia e il locale tecnico trovano posto nel seminterrato, si libera spazio al piano terra per uno studio o una camera per gli ospiti.
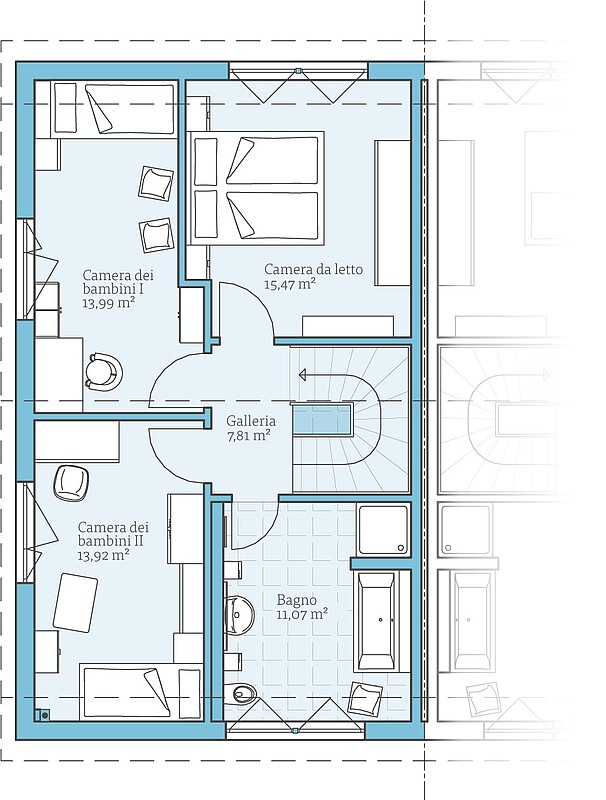
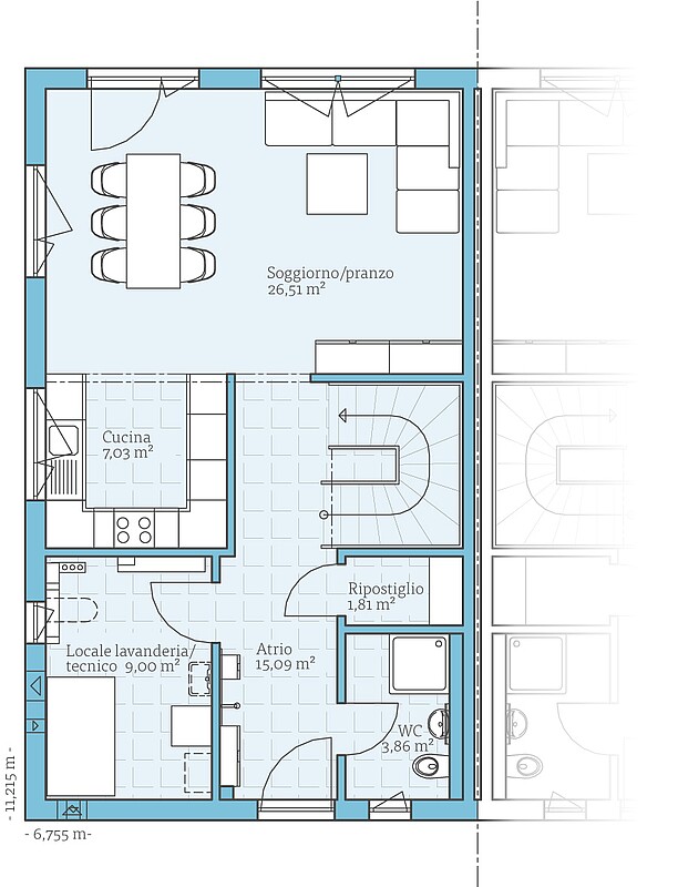
Esempi di
planimetrie
Fatevi un'idea di questa casa con gli esempi di planimetrie. Vi mostriamo le nostre proposte di progettazione, che naturalmente possono essere modificate individualmente su richiesta.

Case della stessa serie








