Zweifamilienhaus
Zweifamilienhaus Definition
Ein Haus. Zwei Zuhause.
Von einem Zweifamilienhaus spricht man, wenn in einem Haus zwei in sich abgeschlossene und eigenständig nutzbare Wohneinheiten untergebracht sind.
Die beiden Wohnbereiche sind dabei baulich voneinander getrennt und mindestens mit Wohn- und Schlafzimmer, Badezimmer und einer Kochmöglichkeit ausgestattet. Separate Eingänge zu den beiden Einheiten sind nicht erforderlich.

Zweifamilienhaus
als Fertighaus?
Auch ein Zweifamilienhaus lässt sich als Fertighaus umsetzen, sodass Sie von den Vorteilen der Fertigbauweise profitieren können.
- Fixe Baukosten, eine kurze Bauzeit sowie Beratung, Bau und Koordination aus einer Hand sorgen für eine entspannte Bauzeit.
- Zum perfekten Zuhause wird das Zweifamilienhaus durch die Wahl zwischen vier unterschiedlichen Ausbaustufen, eine individuelle Planung und eine hohe Energieeffizienz.
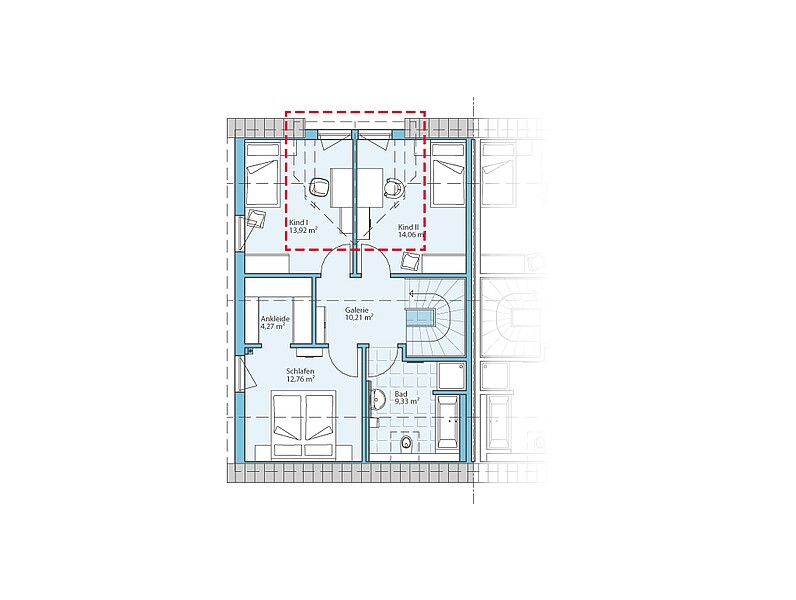
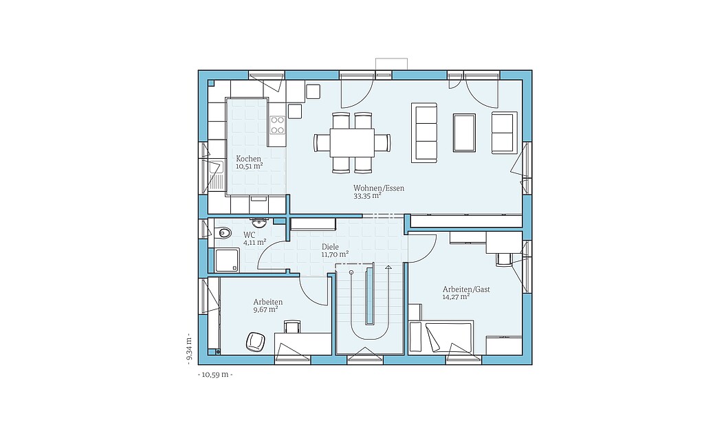
Beispiele für Zweifamilienhaus Grundrisse
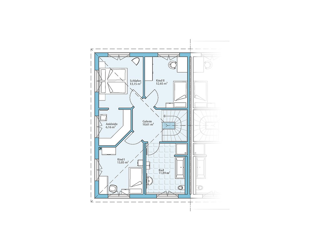
Wenn Sie ein Zuhause für zwei Familien unter einem Dach umsetzen möchten, gibt es zahlreiche unterschiedliche Möglichkeiten, ein Zweifamilienhaus zu planen und den Grundriss modern und praktisch zu gestalten. Die Wohneinheiten lassen sich genau an den Alltag und die Bedürfnisse der Bewohner anpassen.
Zweifamilienhaus übereinander angeordnet
Mehrfamilienhaus
Bei einem klassischen Zweifamilienhaus wird der Grundriss oft wie in einem Mehrfamilienhaus so geplant, dass die beiden Wohneinheiten übereinander angeordnet sind. Ober- und Untergeschoss sind dann voneinander getrennt, sodass jede Familie eine eigene Etage bewohnt. Durch einen gemeinsamen Hauseingang gelangt man meist in ein Treppenhaus mit eigenen Zugängen zu den Wohnungen.
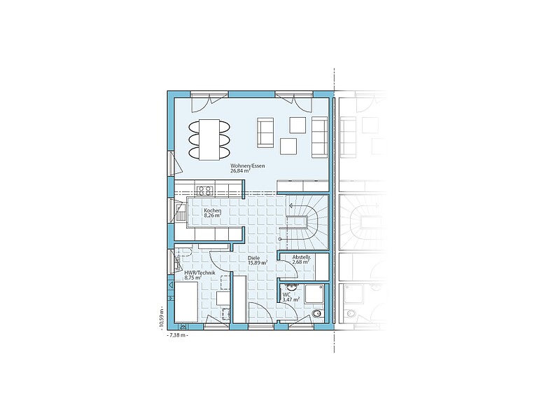
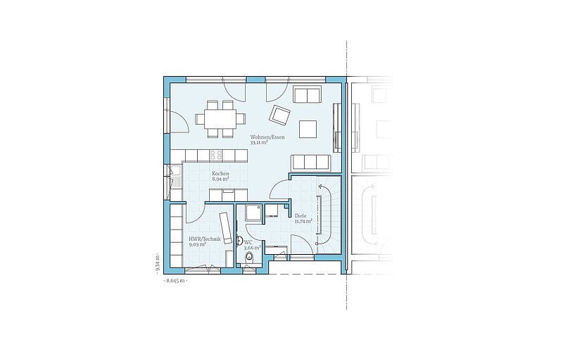
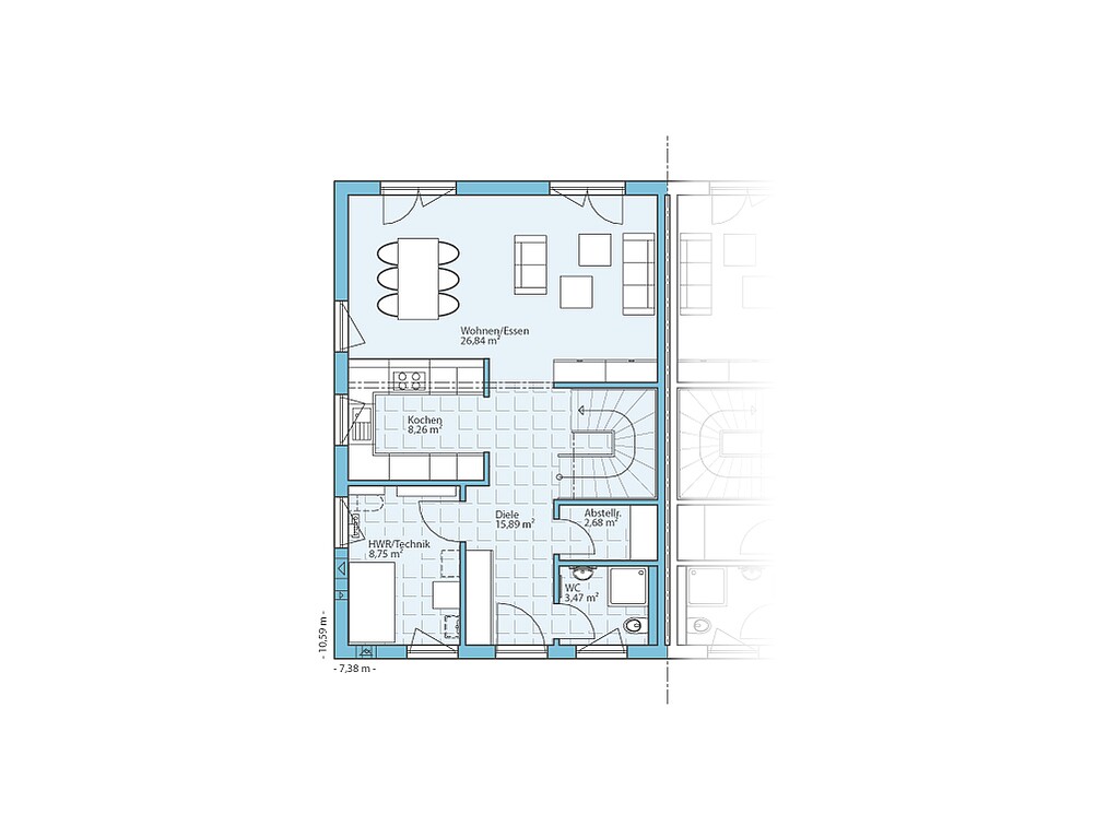
Zweifamilienhaus nebeneinander angeordnet
Die beiden Wohneinheiten können sich in einem Zweifamilienhaus aber auch nebeneinander befinden und zum Beispiel den Hauswirtschafts- und Technikraum miteinander teilen.
Wand an Wand in der Doppelhaushälfte
Doppelhaus
Eine weitere Form des Zweifamilienhauses ist das Doppelhaus. Bei einem Doppelhaus sind zwei einzelne Häuser durch eine gemeinsame Hauswand miteinander verbunden. Jede der beiden Doppelhaushälften ist dabei eine eigenständige Wohneinheit mit separatem Eingang.
Die beiden Familien leben nebeneinander und auch der Garten kann abgeteilt werden. In der Regel gleichen sich die beiden Doppelhaushälften in ihrer Grösse und werden symmetrisch und mit aufeinander abgestimmten Fassaden umgesetzt.
Die Grundrisse der beiden Wohneinheiten können unabhängig voneinander gestaltet werden, sodass jede Doppelhaushälfte genau an die individuellen Wünsche ihrer Bewohner angepasst werden kann.
Zweifamilienhaus mit unterschiedlichen Wohngrössen
Haus mit
Einliegerwohnung
Auch in einem Haus mit Einliegerwohnung stehen zwei eigenständige Wohneinheiten zur Verfügung. Der Unterschied zu einem klassischen Zweifamilienhaus oder einem Doppelhaus liegt darin, dass in diesen beiden Varianten in der Regel zwei gleichwertige Wohneinheiten vorhanden sind. Eine Einliegerwohnung dagegen ist meist deutlich kleiner als die Hauptwohnung des Hauses. Es gibt unterschiedliche Möglichkeiten, eine Einliegerwohnung in einen Hausentwurf zu integrieren. Die separate Einliegerwohnung lässt sich im Haupthaus unterbringen, sie kann aber auch als eingeschossiger Anbau geplant werden.
Zwei Wohneinheiten, viele Möglichkeiten
Wie kann man ein Zweifamilienhaus
nutzen?
Mehrgenerationenhaus
Eine Mehrgenerationen-Wohngemeinschaft im Zweifamilienhaus verbindet Zeit mit der Familie und gegenseitige Unterstützung im Alltag mit genügend Raum und Rückzugsmöglichkeiten für jeden Hausbewohner.
Wenn verschiedene Generationen von den Großeltern über die Eltern bis zu den Kindern unter einem Dach zusammenleben, ist es wichtig, die Wünsche und Bedürfnisse jeder Generation zu berücksichtigen. Einen besonders hohen Wohnkomfort für ältere Bewohner bietet zum Beispiel eine barrierefrei gestaltete Wohnung, die sich im Erdgeschoss des Hauses befindet. Flexibilität sollte bei der Planung des Grundrisses ein wichtiger Faktor sein, damit sich das Mehrgenerationenhaus in jeder Lebenssituation optimal an seine Bewohner anpassen lässt.
Mit Freunden unter einem Dach
Der Traum vom Eigenheim lässt sich auch gemeinsam mit Freunden realisieren. Sie profitieren von zahlreichen, vor allem finanziellen Vorteilen und wohnen dann auch noch Wand an Wand mit guten Freunden.
- Ein Zweifamilien- oder Doppelhaus ist eine optimale Lösung, wenn zwei befreundete Familien den Hausbau zusammen stemmen möchten. Während ein Doppelhaus noch mehr Privatsphäre bietet, können in einem Zweifamilienhaus Räume wie der Technik- oder Hauswirtschaftsraum gemeinsam genutzt werden.
- Wenn eine Partei weniger Platz benötigt, bietet sich ein Haus mit Einliegerwohnung an. Der Grundriss lässt sich individuell an die Bedürfnisse und den Platzbedarf der Bewohner anpassen.
Wohneinheit vermieten
Oft entscheiden sich Bauherren auch für ein Zweifamilienhaus, weil sie die zweite Wohneinheit vermieten möchten. Die Mieteinnahmen können dann zum Beispiel die Finanzierung des Hausbauprojekts erleichtern.
Wenn zum Beispiel eine Einliegerwohnung vermietet wird, sind die Mieteinnahmen zwar zu versteuern, aber im Gegenzug können die Kosten für den Bau, die Instandhaltung oder die Moderniesierung der Einliegerwohnung steuerlich abgesetzt werden.
Zuhause arbeiten
Der zusätzliche Wohnraum im Zweifamilienhaus kann mit der Zustimmung der zuständigen Behörde auch gewerblich genutzt werden, zum Beispiel als separater Bürobereich.
Durch die bauliche Trennung der beiden Einheiten lassen sich die Vorteile des Arbeitens von Zuhause und die Abgrenzung von Beruflichem und Privatem perfekt in Einklang bringen. Wenn im Arbeitsbereich häufig Besucher, Kunden oder Kollegen empfangen werden, ist ein separater Eingang eine praktische Option.
Zweifamilienhaus Kosten
Grundsätzlich ist der Hausbau mit einer grossen Investition verbunden. Für den Bau eines Zweifamilienhauses fallen die Kosten aufgrund der Grösse des Gebäudes in der Regel höher aus. Die Entscheidung für ein Zweifamilienhaus geht aber auch mit vielen finanziellen Vorteilen einher:
- Wenn zwei Parteien den Hausbau gemeinsam stemmen, verteilt sich auch die Finanzierungslast.
- Baunebenkosten, Kosten für gemeinsame Anschaffungen wie die Heizung sowie laufende Kosten können geteilt werden.
- Das Förderprogramm der BEG gilt pro Wohneinheit in einem Haus. Beim Bau eines Zweifamilienhauses können Sie also gleich doppelt von der Förderung profitieren.
- Bereits beim Kauf des Grundstücks kann Geld gespart werden: für ein Zweifamilienhaus wird weniger Baugrund benötigt als für zwei Einfamilienhäuser und auch die Kosten für die Erschliessung fallen geringer aus.
- Die Kosten pro Wohneinheit sind beim Zweifamilienhaus meist geringer als bei zwei Einfamilienhäusern.
- Wenn die zweite Wohneinheit vermietet wird, unterstützen die Mieteinnahmen die Finanzierung.
- Wenn Familie oder Freunde direkt nebenan wohnen, verkürzen sich alltägliche Wege.
Weitere Vorteile Zweifamilienhaus
Nachhaltigkeit
Das Zweifamilienhaus ist ein Konzept für die Zukunft:
- Dadurch, dass zwei Familien in einem Haus Platz finden, wird wertvoller Baugrund nachhaltig genutzt.
- Auch im Hinblick auf die Umweltverträglichkeit und die Energieeffizienz kann das Zweifamilienhaus punkten – besonders, wenn es in nachhaltiger Holz-Fertigbauweise umgesetzt wird. Durch die Schnittstelle zur zweiten Wohneinheit muss insgesamt weniger geheizt werden und der Wärmeverlust wird minimiert. Daraus resultiert ein niedrigerer Energieverbrauch, der dazu führt, dass Ressourcen geschont werden und sich darüber hinaus die laufenden Kosten für das Zweifamilienhaus verringern.
Erleichterung im Alltag
Bei einem Zweifamilienhaus können Sie sich Ihre nächsten Nachbarn selbst aussuchen. Ein gutes Verhältnis ist wichtig, damit das Leben unter einem Dach harmonisch verläuft.
Besonders, wenn sich mehrere Generationen einer Familie ein Haus teilen, kann das Zusammenleben eine echte Bereicherung sein. Die Wohngemeinschaft im Zweifamilienhaus hält natürlich viele schöne Momente mit der Familie bereit. Darüber hinaus kann sie aber auch für alle Bewohner Entlastung im Alltag bedeuten: die älteren Bewohner können so zum Beispiel im Haushalt oder bei Besorgungen unterstützt werden und helfen selbst etwa bei der Kinderbetreuung aus. Bei aller Nähe bietet das Zweifamilienhaus für alle Bewohner private Rückzugsmöglichkeiten.
Nachteile Zweifamilienhaus
Absprachen
Wenn zwei Familien gemeinsam ein Haus planen und bauen, müssen unterschiedlichste Vorstellungen und Bedürfnisse berücksichtigt und unter einen Hut gebracht werden. Bei der Planung und Gestaltung des Hauses und der Aussenanlage müssen Absprachen getroffen und Kompromisse eingegangen werden, damit sich schliesslich alle Bewohner im neuen Zuhause wohlfühlen und der Hausbau reibungslos abläuft. Und auch das spätere Zusammenleben erfordert Rücksichtnahme sowie Absprachen in allen Bereichen, die das Haus betreffen.
Weniger Privatsphäre
Anders als bei einem Einfamilienhaus teilt man sein Zuhause noch mit einer weiteren Partei, wenn man in einem Zweifamilienhaus wohnt. Das kann weniger Privatsphäre für die einzelnen Bewohner bedeuten. Ein Doppelhaus ist eine gute Lösung für Bauherren, die Wert darauf legen, auch ganz für sich sein zu können. Und auch separate Hauseingänge und Treppenhäuser, ein aufgeteilter Garten oder auf unterschiedlichen Seiten geplante Terrassen sorgen für eine klare Trennung der Wohneinheiten.
Lassen Sie sich von unseren Hausentwürfen für zwei Familien inspirieren!
Unsere Zweifamilienhäuser
In unserem Katalog finden Sie mehr Infos sowie alle Hausentwürfe.
Bitte füllen Sie das Kontaktformular aus. Anschliessend können Sie den Hauskatalog als PDF herunterladen. Gerne schicken wir Ihnen den Katalog auch per Post zu.











































