Komfortabel wohnen in Ihrem Stil
Mit seinem flachen Walmdach bildet das Doppelhaus 139 die ideale Basis für vielfältige Gestaltungsmöglichkeiten.
Ob Doppelhaus im klassischen Villenstil mit dezenten Farbtönen und Faschen um die Fenster, im mediterranen Look mit kräftigen, erdigen Farben oder ganz modern mit einer Kombination aus weissem und farbigem Putz – verleihen Sie Ihrem Haus doch einfach Ihre ganz persönliche Note.
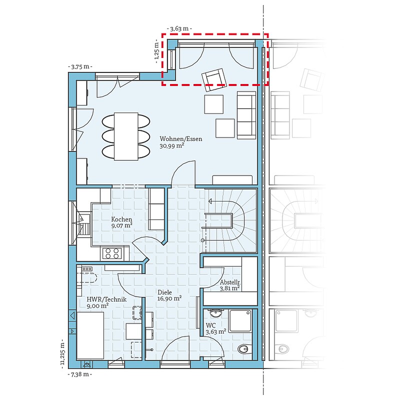
Im Innenbereich ist auf zwei Vollgeschossen genügend Raum für Ihre Ideen. Der offene Wohn-, Ess- und Kochbereich kann auf Wunsch mit einem Wintergarten erweitert werden.
| Merkmale | |
|---|---|
| Dachform | Walmdach |
| Dachneigung | 25° |
| Wohnfläche je Einheit | 132,00 m² |
| Grundfläche je Einheit | 138,15 m² |
| Anzahl Geschosse | 2 |
Anbau
Möglichkeiten
- Wintergarten
Beispiel
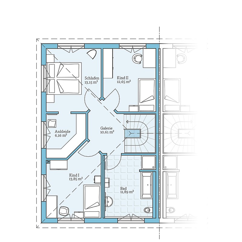
Grundrisse
Bekommen Sie durch die Grundrisse einen Eindruck von diesem Haus. Wir zeigen Ihnen unsere Planungsvorschläge, die natürlich auf Wunsch individuell umgeplant werden können.
Zusätzlich haben wir für dieses Haus interessante Planungsoptionen vorbereitet. Klicken Sie sich durch und sehen Sie selbst, welche Varianten wir uns überlegt haben.










