Mehrfamilienhaus Grundrisse entdecken
Mehrfamilienhaus
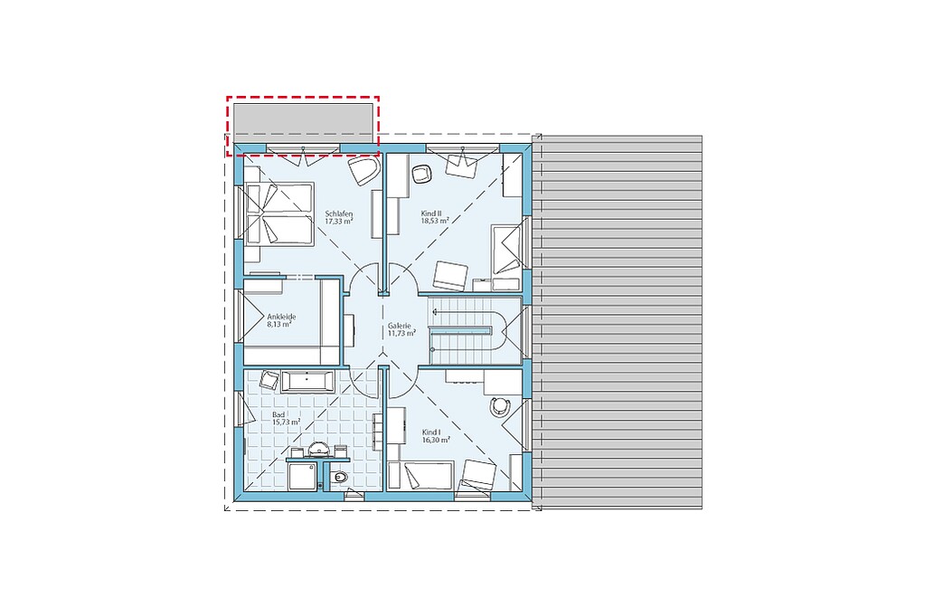
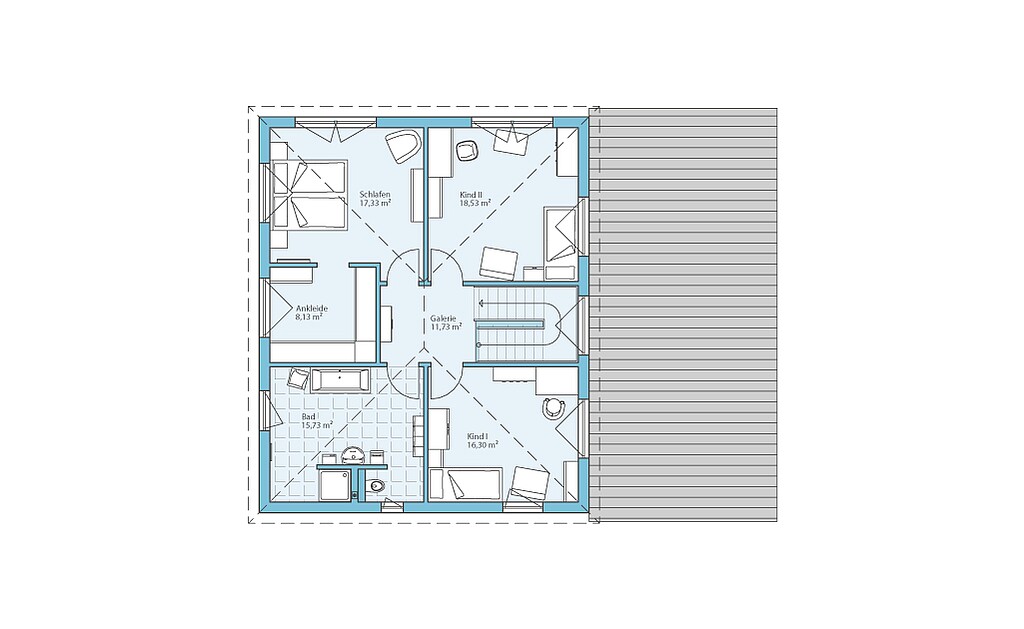
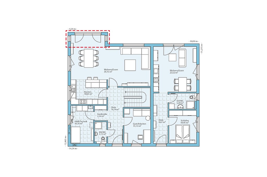
Es ist meist gar nicht so einfach, den perfekten Grundriss für ein neues Eigenheim zu finden. Welche Zimmer benötige ich? Wie sollen diese angeordnet werden? Wohin mit dem Garten und dem Carport? Worauf muss ich achten? Fragen über Fragen. Um Ihnen hier eine Hilfestellung geben zu können, haben unsere Architekten eine Vielzahl an Grundrissen für Sie angefertigt. Es handelt sich hierbei um Vorschlagsentwürfe, die wir dann natürlich Ihren Wünschen entsprechend anpassen. Eines vorab: Bei uns gleicht kein Haus einem anderen - Ihr Eigenheim wird ein Unikat!
Die Grundrisse unserer Mehrfamilienhäuser sind der Gesamtgrösse nach aufsteigend sortiert.
von Mehrfamilienhaus Grundrissen
Mehrfamilienhäuser sind wesentlich komplexer in der Planung als frei stehende Einfamilienhäuser, jedoch gelten auch hier viele unserer 11 Tipps für den perfekten Grundriss.
Wichtig bei der Planung ist der Bebauungsplan! Informieren Sie sich vorab, ob Sie überhaupt ein Mehrfamilienhaus auf Ihrem Grundstück bauen dürfen.
Welches sind die grundsätzlichen Fragen bei der Planung eines Mehrfamilienhauses?
- Wie viele Wohnungen soll das Haus enthalten?
- Wie viele Stockwerke will oder muss ich bauen, um diese Anzahl an Wohnungen unterzubringen?
- Gibt es genug Fläche für Stellplätze für alle Wohneinheiten oder ist eine Tiefgarage nötig?
- Sollen die Einheiten in etwa gleich gross sein oder sich in der Größe stark voneinander unterscheiden?
- Wie grosszügig soll der Eingangs- und Treppenbereich gestaltet werden?
- Wird ein Aufzug mit eingeplant?
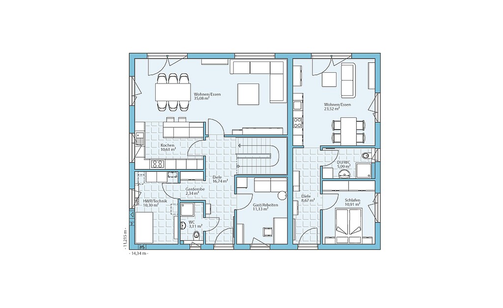
Was sind die 6 wichtigsten Dinge, die bei der räumlichen Trennung eines Mehrfamilienhauses beachtet werden sollten? (Beispielhaft am 2-Parteien-Haus)
Zusammenleben in einem Haus
- Sollen beide Einheiten gleichviel Wohnfläche besitzen oder soll es eine grössere und eine kleinere Wohneinheit geben?
- Wohnen die Parteien nebeneinander (ähnlich wie beim Doppelhaus)?
- Soll jede Partei auf einem kompletten Stockwerk leben?
- Soll eine der Wohnungen ausschliesslich im Erdgeschoss geplant werden (z.B. als eine Art Einliegerwohnung), während die andere sich über zwei Stockwerke verteilt?
- Gibt es eine gemeinsame Fläche wie Treppe und Keller oder ein gemeinsamer Technikraum?
- Werden die Wohnräume in verschiedene Richtungen ausgerichtet oder auf eine Seite des Hauses konzentriert?
Exkurs: Was ist der Unterschied zwischen einem Zweifamilienhaus und einem Doppelhaus?
Während bei einem Doppelhaus die beiden Wohneinheiten zwar nebeneinander liegen, aber dennoch eigenständig sind, ist ein Zweifamilienhaus enger verwoben. So gibt es meistens einen gemeinsamen Eingang und einen gemeinsam genutzten Keller. Ein weiterer Unterschied ist, dass auch der Garten meistens gemeinsam genutzt wird, was sich oftmals durch die Aufteilung der Wohneinheiten in EG und OG ergibt. Durch geschickte Planung kann jedoch auch im Zweifamilienhaus ein weitgehend separiertes Wohnen ermöglicht werden.




















