Eins für zwei
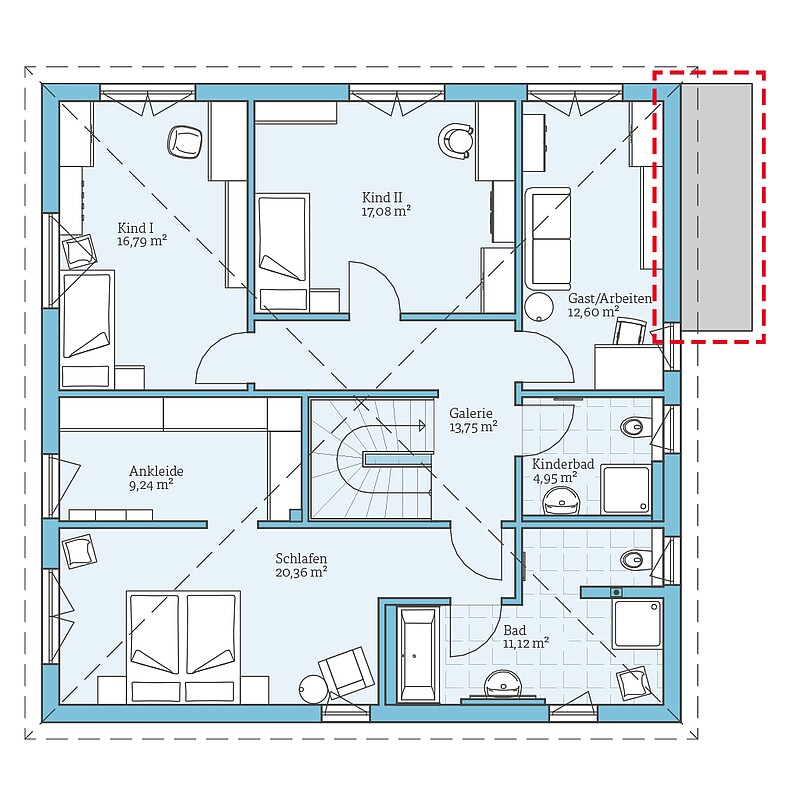
Auch dieser Hausentwurf ist eine zweigeschossige Villa mit Walmdach. Hier ist jedoch die Einliegerwohnung nicht in einem Anbau, sondern im Gesamtbaukörper untergebracht. Dies ist energetisch sinnvoll, weil dadurch Heizkosten gespart werden können. Die Hauseingänge befinden sich an zwei verschiedenen Seiten, was für mehr Privatsphäre sorgt. Im Obergeschoss ist mit drei möglichen Kinderzimmern, einem separaten Kinderbad und einem grosszügigen Bereich für die Eltern viel Platz für eine grössere Familie vorhanden.
| Merkmale | |
|---|---|
| Dachform | Zeltdach |
| Dachneigung | 25° |
| Wohnfläche Einliegerwohnung | 41,64 m² |
| Wohnfläche Hauptwohnung | 162,28 m² |
| Grundfläche Einliegerwohnung | 41,64 m² |
| Grundfläche Hauptwohnung | 165,03 m² |
| Anzahl Geschosse | 2 |
Anbau
Möglichkeiten
- Erker mit Flachdach
Beispiel
Grundrisse
Bekommen Sie durch die Grundrisse einen Eindruck von diesem Haus. Wir zeigen Ihnen unsere Planungs-Vorschläge, die natürlich auf Wunsch individuell umgeplant werden können.












