Teure Grundstücke optimal genutzt
Ein grosser Vorteil von Doppelhäusern ist ihr geringer Bedarf an Grundstücksfläche.
Entwürfe wie unser Hanse Haus Doppelhaus 35-124 nutzen das Grundstück optimal und ermöglichen so auch in teuren Wohngegenden bezahlbaren Wohnraum.
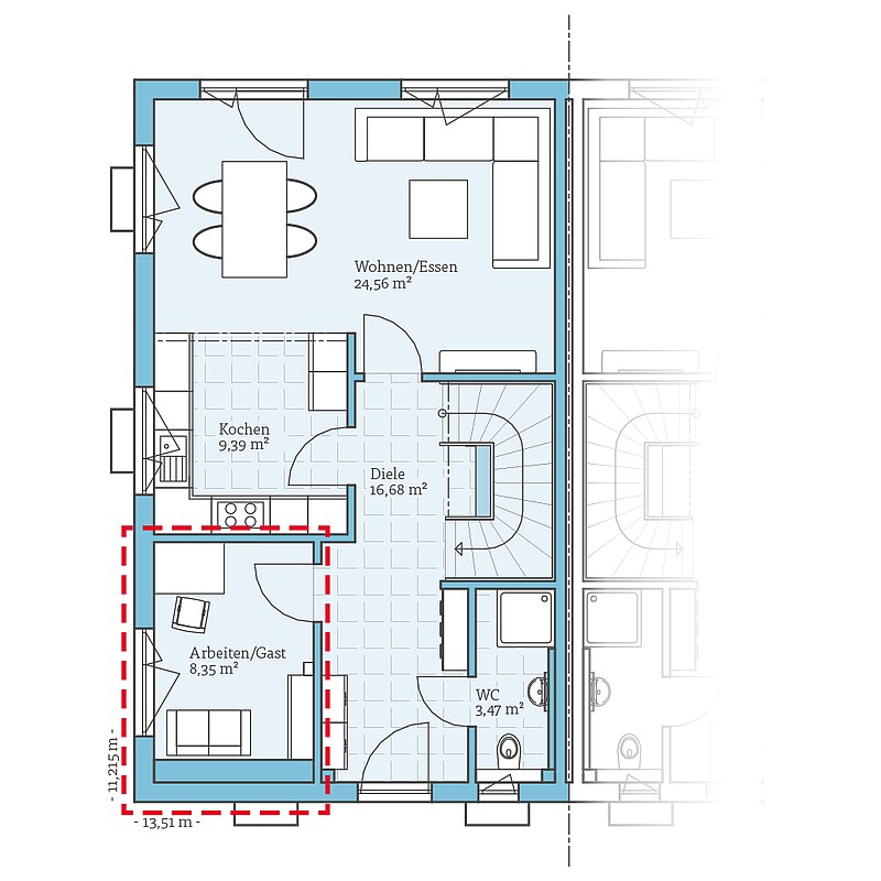
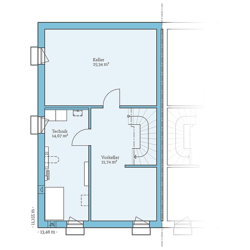
Wer noch zusätzliche Fläche für Abstellmöglichkeiten, einen Arbeits-/Gästebereich oder eine eigene Wellnessoase schaffen möchte, kann das Haus um einen Keller erweitern.
| Merkmale | |
|---|---|
| Dachform | Satteldach |
| Dachneigung | 35° |
| Kniestock | 120 cm |
| Wohnfläche je Einheit | 110,71 m² |
| Grundfläche je Einheit | 124,21 m² |
| Anzahl Geschosse | 1,5 |
Anbau
Möglichkeiten
- Keller für Wohn- und Hobbyräume, Haustechnik oder Abstellraum
Beispiel
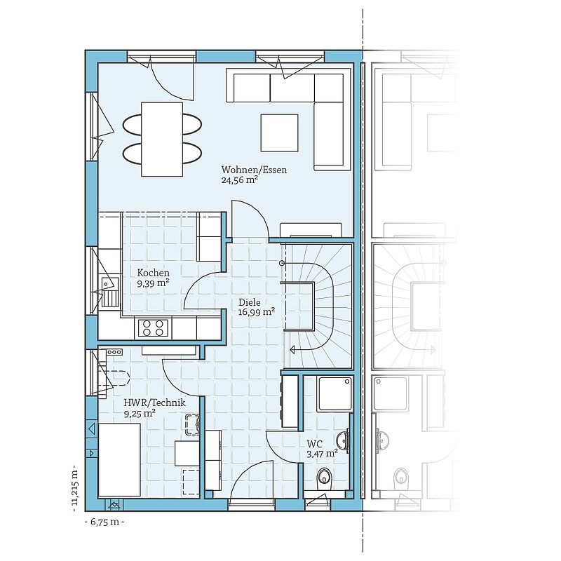
Grundrisse
Bekommen Sie durch die Grundrisse einen Eindruck von diesem Haus. Wir zeigen Ihnen unsere Planungs-Vorschläge, die natürlich auf Wunsch individuell umgeplant werden können.
Zusätzlich haben wir für dieses Haus interessante Planungsoptionen vorbereitet. Klicken Sie sich durch und sehen Sie selbst, welche Varianten wir uns überlegt haben.











