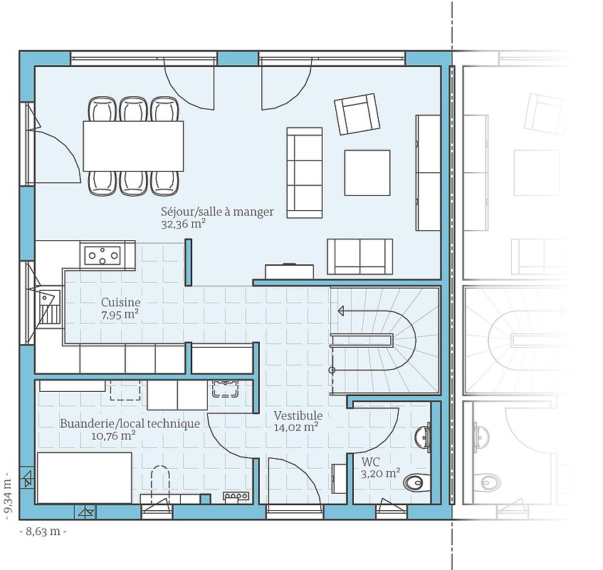
Une architecture individualisée avec un sens de l'esthétique
Cubique, intemporel et élégant, tel est le concept architectural de la maison Doppelhaus 135. L'agencement ouvert et très spacieux de la pièce de séjour et de la cuisine crée une atmosphère agréable et lumineuse. Une niche de rangement se trouve devant la cuisine. Avec une fondation sur dalles, l'espace disponible sous l'escalier peut également être transformé en pièce de rangement par exemple.
L'accès à l'étage supérieur se fait par un escalier en demi-spirale. En plus des deux chambres d'enfants à l'étage, se trouvent la chambre parentale ainsi que la salle de bain familiale. L'étage supérieur peut selon vos souhaits également être étendu par une loggia couverte, qui protègerait la terrasse de la pluie.
| Caractéristiques | |
|---|---|
| Type de toit | Toit plat |
| Pente du toit | 2 |
| Surface habitable par unité | 128,99 m² |
| Surface au sol par unité | 135,51 m² |
| Nombre d'étages | 2 |
Option
de plans:
- En option, l'étage supérieur peut être agrandi par un balcon. Grâce aux murs extérieurs avancés et au toit prolongé, une loggia couverte est créée à l'étage supérieur ainsi qu'une terrasse couverte au rez-dechaussée.
Exemples de
plans d'étage
Faites-vous une idée de cette maison à travers les plans d'étage. Nous vous montrerons nos suggestions de planification, qui peuvent bien sûr être modifiées individuellement sur demande.

Maisons de la même série








