Un sacco di spazio per tutto ciò che offre la vita
Se volete davvero che la vostra casa offra molto spazio, le nostre case della serie Variant 25 rappresentano sempre una buona scelta. Per tutti coloro che amano lo spazio, nella variante di progettazione più grande, la casa modello di Fellbach, sono disponibili quasi 200 metri quadrati su due livelli.
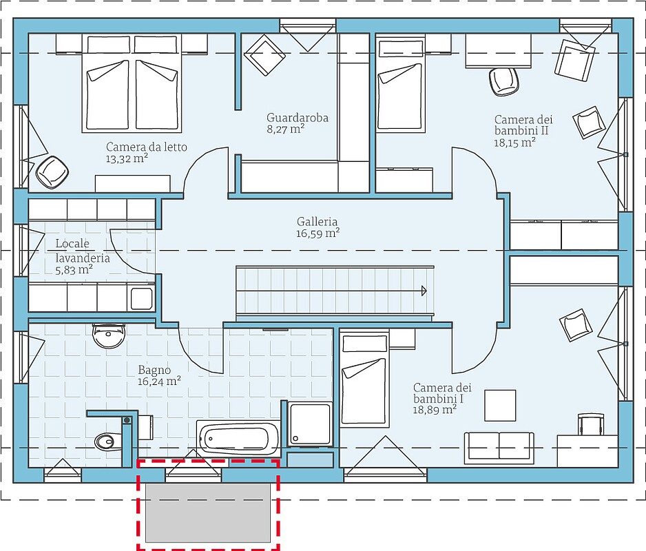
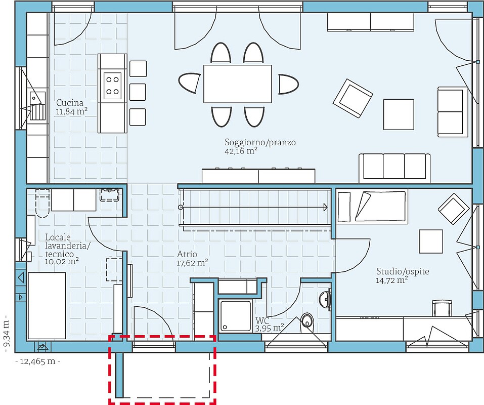
La zona cucina e soggiorno a spazio aperto, con un totale di circa 55 metri quadrati, è il centro di tutte le attività quotidiane della casa e invita a cucinare, mangiare o festeggiare insieme. Le camere da letto all'ultimo piano includono un grande bagno benessere con vasca e doccia. Le camere dei bambini sono dimensionate in modo tale che la prole possa sentirsi a proprio agio nella loro nuova casa fino all'adolescenza. Il locale lavanderia si trova in mansarda: questo è pratico, perché è qui che si fa il bucato e lo si ripone. Questo crea ulteriore spazio di stoccaggio nel ripostiglio al piano terra.
| Caratteristiche | |
|---|---|
| Forma tetto | Tetto a due falde |
| Inclinazione del tetto | 25° |
| Altezza di gronda | 200 cm |
| Superficie abitativa | 187,51 m² |
| Superficie | 197,60 m² |
| Numero piani | 1,5 |
Peculiarità
della casa
Scopri questa casa dal vivo
Höhenstraße 21, Casa 30
70736 Fellbach
Tel.: 0711-522569
Opzione di pianificazione
- È possibile estendere l'area d'ingresso con una tettoia per la porta d'ingresso. Il moderno tetto piatto si adatta perfettamente al carattere della casa e il pannello a muro protegge dal vento e dalle intemperie.
Esempi di
planimetrie
Fatevi un'idea di questa casa con gli esempi di planimetrie. Vi mostriamo le nostre proposte di progettazione, che naturalmente possono essere modificate individualmente su richiesta.

Case della stessa serie













