Appartamenti nel seminterrato: Posizione collinare con sviluppo sul lato della valle
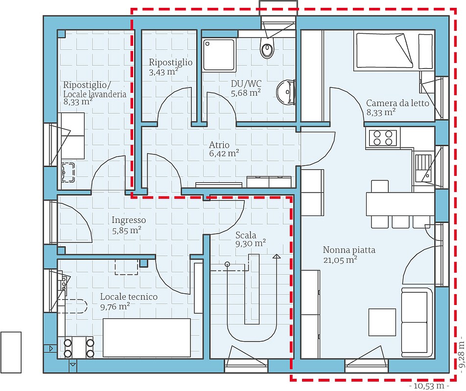
Nel caso di una proprietà in pendenza, un appartamento separato è un modo ideale per sfruttare al meglio lo spazio cantina parzialmente esposta. In questo esempio progettuale della Variant 25-166, l'unità residenziale nel seminterrato condivide un ingresso comune con l'appartamento principale al piano terra. Grazie alla posizione collinare, il grande appartamento annesso di circa 45 m² nel seminterrato è ben illuminato da ampie finestre e dispone di un proprio spazio esterno. Ideale per l'affitto, per i figli grandi o per i nonni.
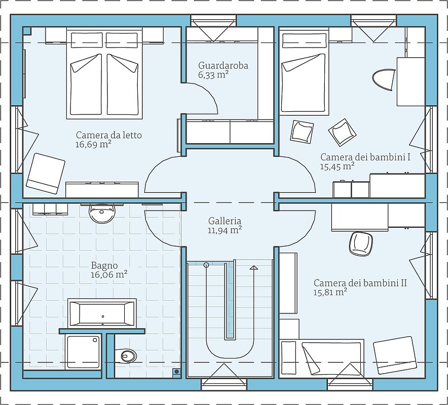
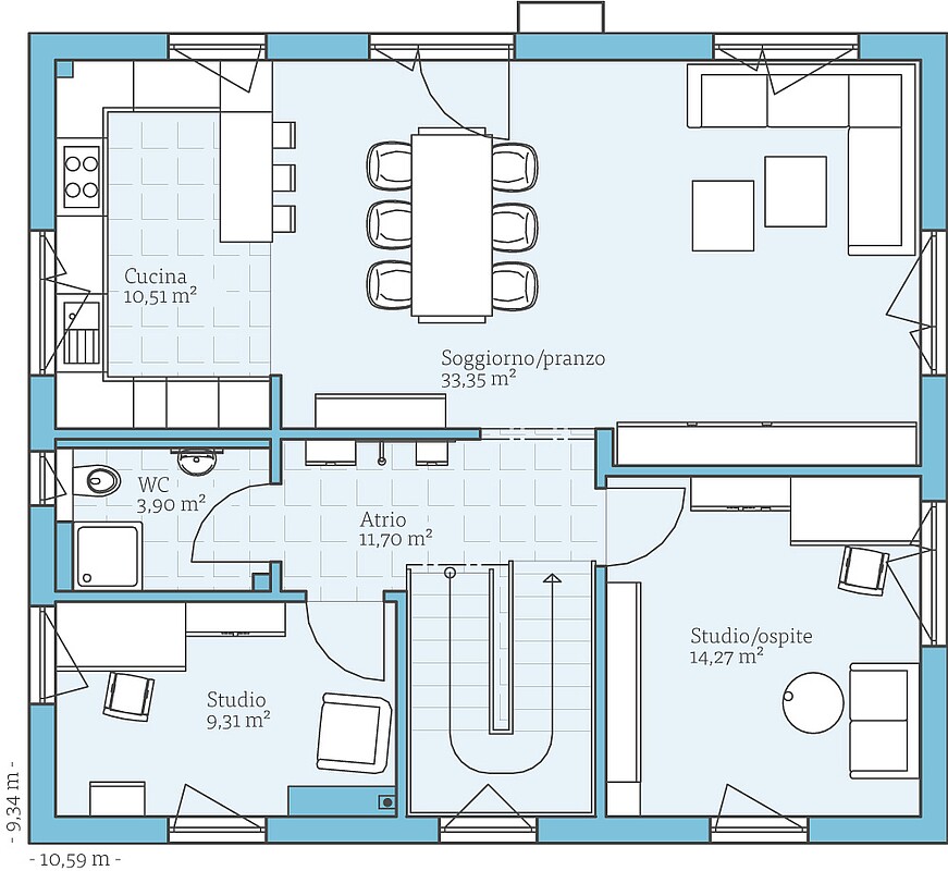
Un altro punto a favore: Il piano superiore e la mansarda della Variant 25-166 hanno uno studio e una camera per gli ospiti aggiuntivi, a causa della disposizione del HWR e del locale tecnico nel seminterrato.
| Caratteristiche | |
|---|---|
| Forma tetto | Tetto a due falde |
| Inclinazione del tetto | 25° |
| Altezza di gronda | 200 cm |
| Superficie abitativa | 215,78 m² |
| Superficie abitativa suite secondaria | 44,91 m² |
| Superficie abitativa appartamento principale | 165,32 m² |
| Superficie | 243,47 m² |
| Numero piani | 1,5 |
Esempi di
planimetrie
Fatevi un'idea di questa casa con gli esempi di planimetrie. Vi mostriamo le nostre proposte di progettazione, che naturalmente possono essere modificate individualmente su richiesta.

Case della stessa serie









