Lascia entrare la luce del sole
È domenica mattina, la casa profuma di caffè fresco e i caldi raggi del sole del mattino entrano attraverso le grandi vetrate della veranda e si posano sulla tavola della colazione apparecchiata. Il luogo ideale per iniziare una giornata di relax con il vostro giornale preferito. Suona bene, vero? Lo pensiamo anche noi, ed è per questo che abbiamo sviluppato diverse verande per le case della serie Variant 25 che si adattano perfettamente allo stile e alle planimetrie. E per tenere fuori il sole a volte, offriamo vari sistemi di ombreggiamento. A pagina 51 potete vedere la variante di progettazione di questo progetto che include un appartamento senza barriere annesso.
| Caratteristiche | |
|---|---|
| Forma tetto | Tetto a due falde |
| Inclinazione del tetto | 25° |
| Altezza di gronda | 200 cm |
| Superficie abitativa | 141,12 m² |
| Superficie | 151,01 m² |
| Numero piani | 1,5 |
Opzione di
pianificazione
- Una veranda sul lato di gronda della casa estende lo spazio abitativo del piano terra di circa 7 m².
- Un'estensione a un solo piano del locale tecnico fornisce più spazio per ulteriori servizi di costruzione e manutenzione. L'estensione del tetto crea una tettoia per la porta d'ingresso.
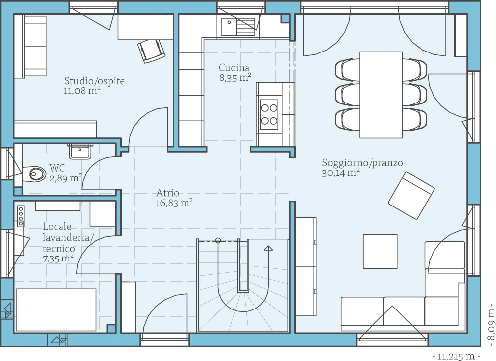
Esempi di
planimetrie
Fatevi un'idea di questa casa con gli esempi di planimetrie. Vi mostriamo le nostre proposte di progettazione, che naturalmente possono essere modificate individualmente su richiesta.

Case della stessa serie








