Appartamenti nel seminterrato: Posizione collinare con sviluppo sul lato montagna
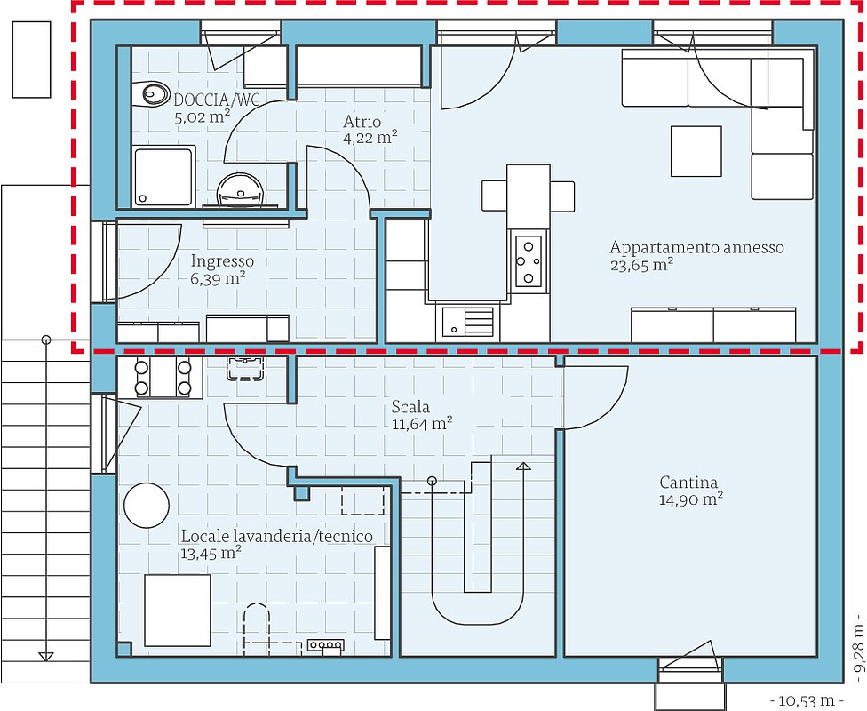
Per coloro che vorrebbero progettare la loro casa con un appartamento aggiuntivo e dare ancora grande valore alla privacy, questa alternativa di pianificazione della Variant 25-166 è l'ideale. Ingressi separati al piano terra e al seminterrato creano una chiara separazione delle due unità residenziali, e le terrazze degli appartamenti possono anche essere progettate su lati diversi della casa. E l'appartamento annesso di 39 m² è doppiamente utile: grazie allo spazio abitativo aggiuntivo nella casa, aumenta il valore dell'edificio, e quando viene affittato, dà un prezioso contributo al finanziamento del progetto di costruzione.
| Caratteristiche | |
|---|---|
| Forma tetto | Tetto a due falde |
| Inclinazione del tetto | 25° |
| Altezza di gronda | 200 cm |
| Superficie abitativa | 211,78 m² |
| Superficie abitativa suite secondaria | 39,28 m² |
| Superficie abitativa appartamento principale | 165,25 m² |
| Superficie | 244,62 m² |
| Numero piani | 1,5 |
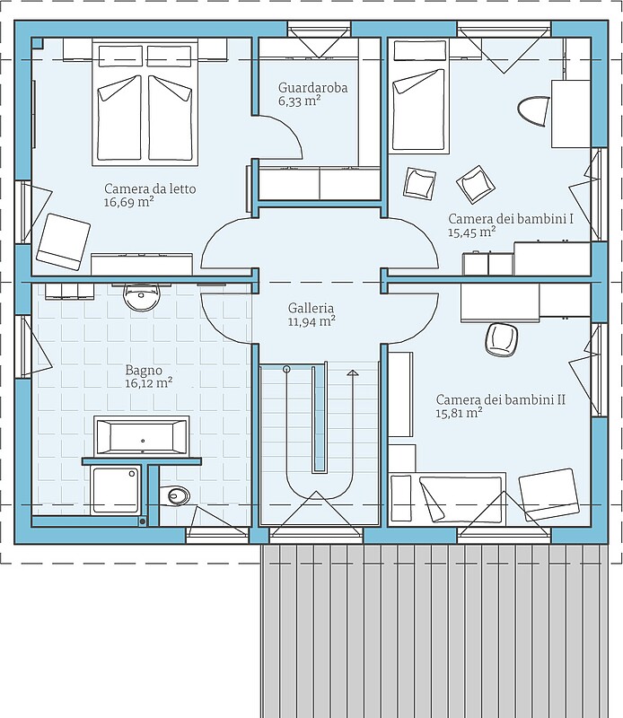
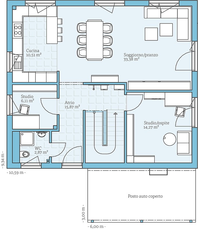
Esempi di
planimetrie
Fatevi un'idea di questa casa con gli esempi di planimetrie. Vi mostriamo le nostre proposte di progettazione, che naturalmente possono essere modificate individualmente su richiesta.

Case della stessa serie









