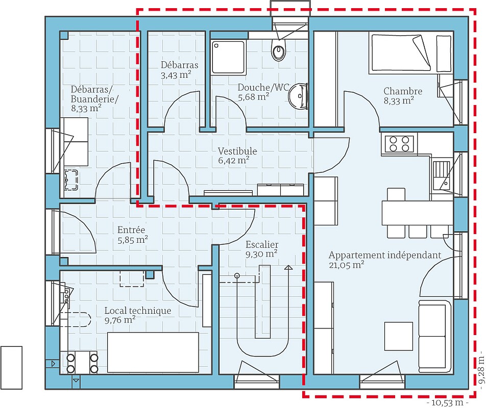
Appartement indépendant au sous-sol: Maison en pente à flanc de colline avec aménagements côté vallée
Bafin d'exploiter au mieux le sous-sol partiellement exposé d'une résidence située à flanc de colline, une annexe séparée se présente comme option idéale. Dans cet exemple de conception du modèle Variant 25-166, l'unité d'habitation située au sous-sol partage une entrée commune avec le logement principal du rez-de-chaussée et du grenier. En raison de sa situation à flanc de colline, le spacieux appartement indépendant d'environ 45 m² situé au sous-sol est parfaitement éclairé par de grandes fenêtres et dispose de son propre espace extérieur. Idéal pour la location, pour les grands enfants ou les grands-parents.
Autre point positif : l'étage supérieur et le grenier du modèle Variant 25-166 dispose d'un bureau/chambre d'amis supplémentaire en raison de la disposition de la buanderie et du local technique au sous-sol.
| Caractéristiques | |
|---|---|
| Type de toit | Toit en bâtière |
| Pente du toit | 25° |
| Échine | 200 cm |
| Surface habitable | 215,78 m² |
| Surface habitable Appartement indépendant | 44,91 m² |
| Surface habitable logement principal | 165,32 m² |
| Surface au sol | 243,47 m² |
| Nombre d'étages | 1,5 |
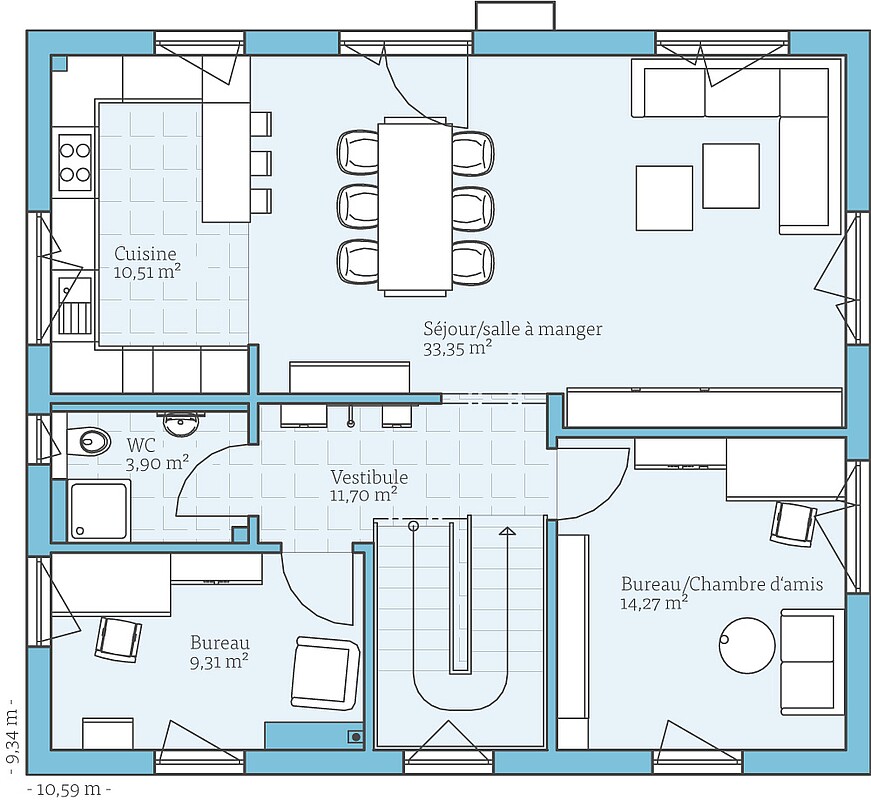
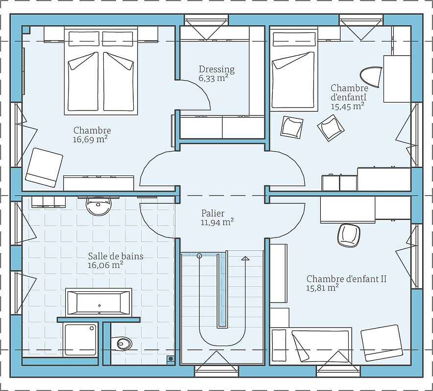
Exemples de
plans d'étage
Faites-vous une idée de cette maison à travers les plans d'étage. Nous vous montrerons nos suggestions de planification, qui peuvent bien sûr être modifiées individuellement sur demande.

Maisons de la même série









