Individuelle Architektur mit Sinn für Ästhetik
Kubisch, zeitlos und elegant – so präsentiert sich das Architekturkonzept des Doppelhauses 135.
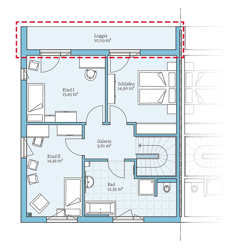
Die offene und sehr grosszügige Gestaltung des Wohn- und Kochbereichs vermittelt eine angenehme, leichte Wohnatmosphäre. Eine Nische vor der Küche bietet sich als Stauraum an. Auf Bodenplatte kann zum Beispiel der Platz unter der Treppe ebenfalls zum Abstellraum ausgebaut werden. Der Weg ins Obergeschoss führt über eine halbgewendelte Treppe. Neben den beiden Kinderzimmern befinden sich dort auch das
Elternschlafzimmer und das Familienbad. Auf Wunsch lässt sich das Obergeschoss um eine überdachte Loggia erweitern, die gleichzeitig die darunterliegende Terrasse vor Regen schützt.
| Merkmale | |
|---|---|
| Dachform | Flachdach |
| Dachneigung | 2 |
| Wohnfläche je Einheit | 128,99 m² |
| Grundfläche je Einheit | 135,51 m² |
| Anzahl Geschosse | 2 |
Anbau
Möglichkeiten
- überdachte Loggia
- überdachter Freisitz
Beispiel
Grundrisse
Bekommen Sie durch die Grundrisse einen Eindruck von diesem Haus. Wir zeigen Ihnen unsere Planungsvorschläge, die natürlich auf Wunsch individuell umgeplant werden können.
Zusätzlich haben wir für dieses Haus interessante Planungsoptionen vorbereitet. Klicken Sie sich durch und sehen Sie selbst, welche Varianten wir uns überlegt haben.











