Una casa, molte possibilità
Ci sono diverse varianti di progettazione per la nostra casa modello di Wuppertal. Perché? Perché crediamo che una casa chic come questa debba funzionare per una grande varietà di situazioni d'uso. Sia per vivere e lavorare sotto lo stesso tetto, come una casa indipendente con un appartamento annesso o quattro camere per bambini – le opzioni di pianificazione di questa casa sono molto varie.
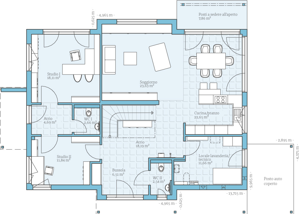
Vivere e lavorare, comodamente a casa propria
Sempre più spesso, le persone usano la propria casa non solo per vivere, ma anche per lavorare. La variante di pianificazione qui sotto offre un'area di lavoro separata con un'entrata indipendente un servizio igienico ed è ideale per creare,per esempio , il proprio ufficio di consulenza fiscale, ambulatorio di fisioterapia o salone di bellezza. Particolarmente pratico: un collegamento diretto tra la zona di lavoro e la zona giorno permette di passare rapidamente dalla vita privata al lavoro e di avere sempre tutto sotto controllo. E dopo il lavoro si ha la garanzia di non rimanere mai più bloccati nel traffico.
| Caratteristiche | |
|---|---|
| Forma tetto | Tetto a due falde |
| Inclinazione del tetto | 35° |
| Altezza di gronda | 120 cm |
| Superficie abitativa | 220,80 m² |
| Superficie | 244,21 m² |
| Numero piani | 1,5 |
Peculiarità
della casa
Scopri questa casa dal vivo:
FertighausWelt 1
42279 Wuppertal
Tel.: 0202-26910050
Esempi di
planimetrie
Fatevi un'idea di questa casa con gli esempi di planimetrie. Vi mostriamo le nostre proposte di progettazione, che naturalmente possono essere modificate individualmente su richiesta.

Case della stessa serie











