Pianificazione flessibile
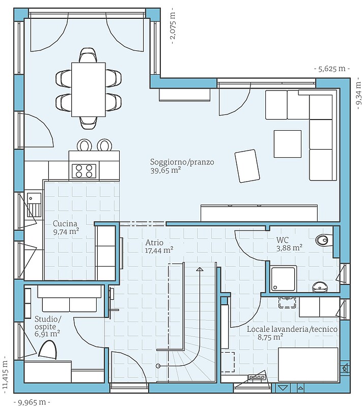
Il punto forte del progetto della planimetria della Variant 35-160 è la sua grande flessibilità. Per il piano terra sono disponibili due varianti di progettazione: la versione base con un piccolo studio e una stanza combinata di lavanderia/locale tecnico, e una versione opzionale in cui la casa viene ampliata con un garage e un locale tecnico. Qui, al piano terra, sono previsti un ufficio/camera per gli ospiti più grande e un piccolo locale lavanderia come chiusura dell'ingresso laterale coperto. Inoltre una spaziosa cucina.
| Caratteristiche | |
|---|---|
| Forma tetto | Tetto a due falde |
| Inclinazione del tetto | 35° |
| Altezza di gronda | 120 cm |
| Superficie abitativa | 143,89 m² |
| Superficie | 160,22 m² |
| Numero piani | 1,5 |
Peculiarità
della casa
Scopri questa casa dal vivo:
Buchstraße 3
97789 Oberleichtersbach
Tel.: 09741-808-0
Opzione di pianificazione:
- È possibile aggiungere vari ampliamenti a questo progetto. Qui la casa è stata ampliata con un garage e un locale tecnico. È possibile visionare questo progetto come casa modello presso la sede dell'azienda Hanse Haus a Oberleichtersbach. Il locale tecnico delocalizzato crea spazio nella casa per un ufficio più grande. Il garage è direttamente collegato al locale tecnico. Il tetto davanti al locale tecnico e la porta d'ingresso laterale creano un “area” coperta.
Aktion
Dieses Hanse-Haus ist eines unserer aktuellen Aktionshäuser. Wenn Sie sich für die Preise interessieren, dann fordern Sie doch unsere Aktionsbroschüre an.
AKTIONSBROSCHÜRE ANFORDERN
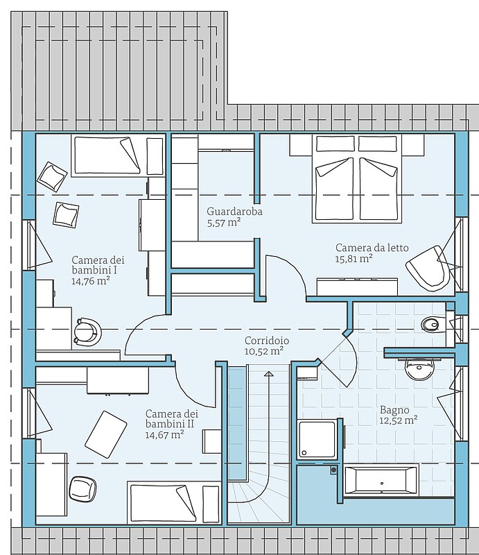
Esempi di
planimetrie
Fatevi un'idea di questa casa con gli esempi di planimetrie. Vi mostriamo le nostre proposte di progettazione, che naturalmente possono essere modificate individualmente su richiesta.

Case della stessa serie














