Individuare i concetti abitativi
Cosa fare se avete bisogno di un po' più di spazio ma non volete cambiare l'intera planimetria? Con le nostre case, la soluzione è di solito abbastanza semplice: con le molte opzioni di ampliamento, le planimetrie possono essere espanse e si può creare ulteriore spazio.
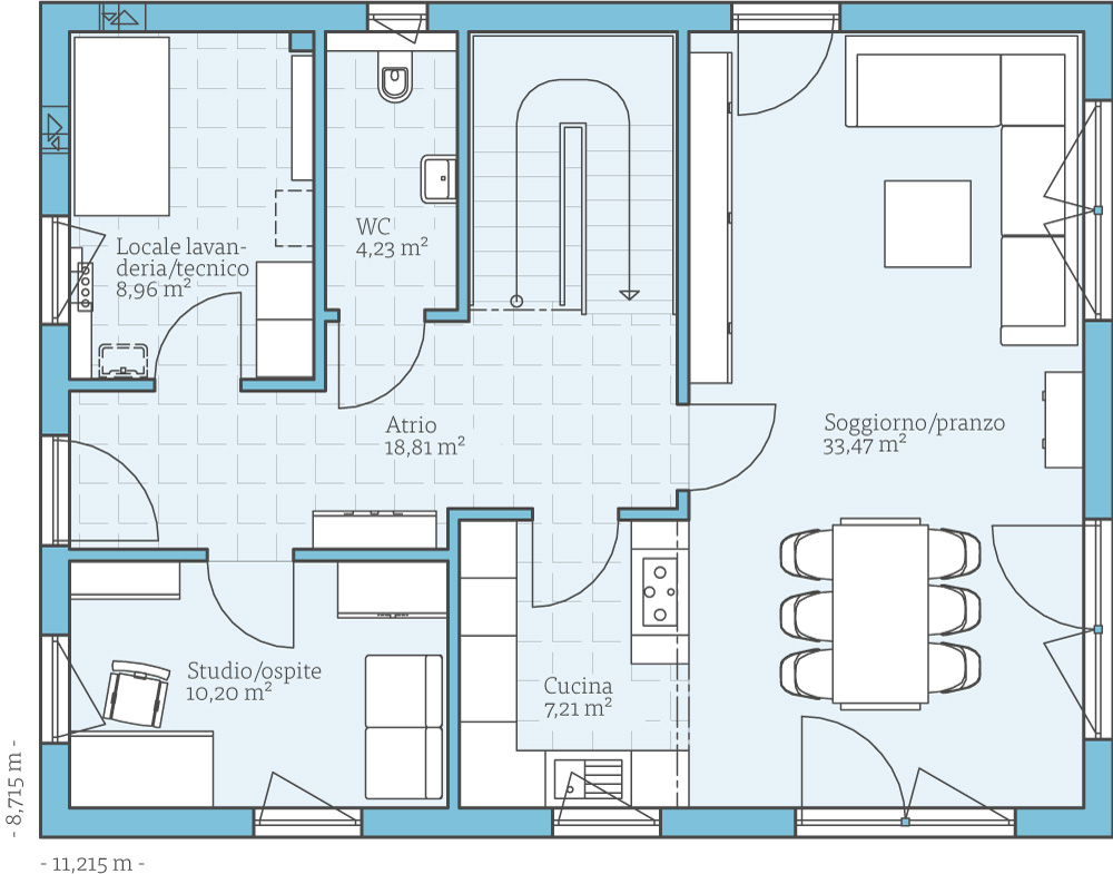
La casa modello Variant 35-161 a Mannheim, per esempio, è stata ampliata con una grande veranda sulla zona giorno, che crea uno spazio luminoso per un lungo tavolo da pranzo. Sul lato d'ingresso della casa c'è un'estensione che può ospitare uno studio o un ufficio. Se non avete bisogno di questa stanza in più, potreste anche considerare di trasformarla in un garage con accesso diretto al locale lavanderia. Ci sono quasi infinite possibilità quando si tratta di pianificare la casa. È nostro compito trovare la soluzione perfetta per voi.
| Caratteristiche | |
|---|---|
| Forma tetto | Tetto a due falde |
| Inclinazione del tetto | 35° |
| Altezza di gronda | 120 cm |
| Superficie abitativa | 142,78 m² |
| Superficie | 161,25 m² |
| Numero piani | 1,5 |
Peculiarità
della casa
Scopri questa casa dal vivo:
Xaver-Fuhr-Straße 111/33
68163 Mannheim
Tel.: 0621 31880940
Opzione di pianificazione:
È possibile ampliare questo progetto, ad esempio, con le seguenti
estensioni:
- L'estensione dell'ufficio sul davanti con attiguo locale tecnico permette di lavorare da casa e crea una zona d'ingresso più spaziosa.
- Tettoia della porta d'ingresso (in questa forma possibile solo in combinazione con l'estensione dell'ufficio)
- La veranda estende lo spazio abitativo di circa 7,5m².
Casa modello Dresda Variant 35-163
Per adattare una planimetria alla situazione della proprietà e per allinearla con i punti cardinali, il disegno della casa può essere ribaltato. Il progetto ribaltato della Variant 35-161 di Mannheim è la Variant 35-163. Questa casa può essere visitata nell'Unger-Park di Dresda.
Esempi di
planimetrie
Fatevi un'idea di questa casa con gli esempi di planimetrie. Vi mostriamo le nostre proposte di progettazione, che naturalmente possono essere modificate individualmente su richiesta.

Case della stessa serie












