Bungalow und Winkelbungalow Grundrisse entdecken
Bungalow
Es ist nicht immer leicht, den perfekten Grundriss für sich selbst zu finden. Daher haben wir eine Vielzahl an Vorschlagsentwürfen für Sie konzipiert. Doch natürlich planen wir Ihr Haus nach Ihren Wünschen und Bedürfnissen. Die Liste der Grundrisse ist der Gesamtgrösse nach aufsteigend sortiert.
Was sind die Besonderheiten eines Bungalow Grundrisses?
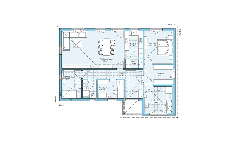
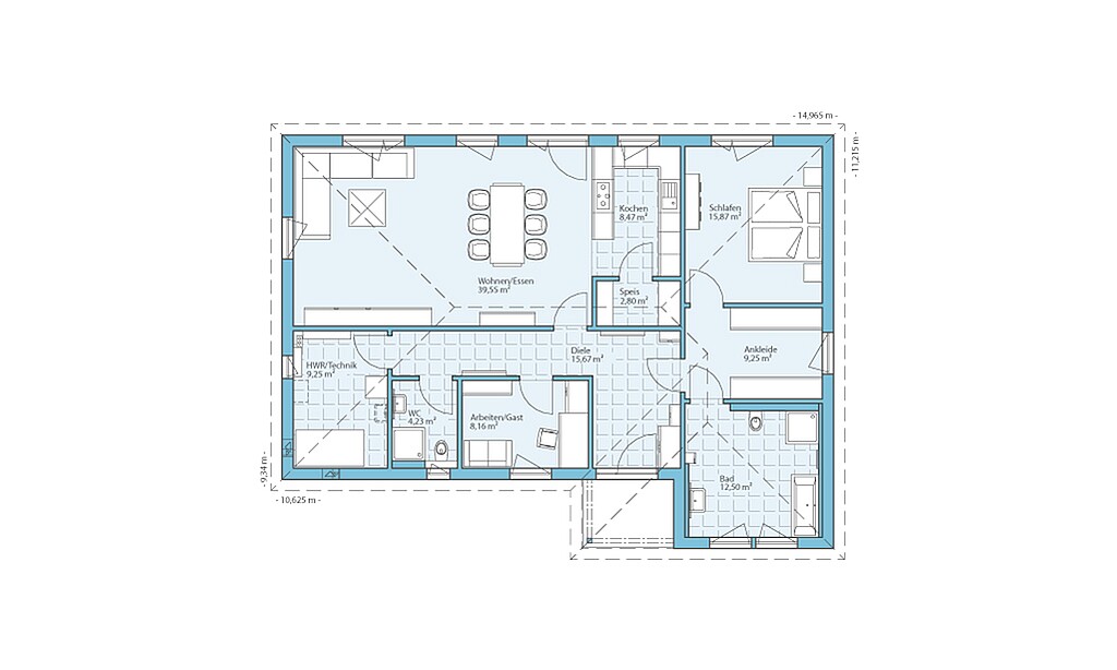
- Es müssen keine tragenden Wände berücksichtigt werden, d.h. Sie sind in der Gestaltung sehr flexibel und haben die Möglichkeit, sehr offene Raumkonzepte zu schaffen, ohne auf die Statik der darüber liegenden Stockwerke Rücksicht nehmen zu müssen.
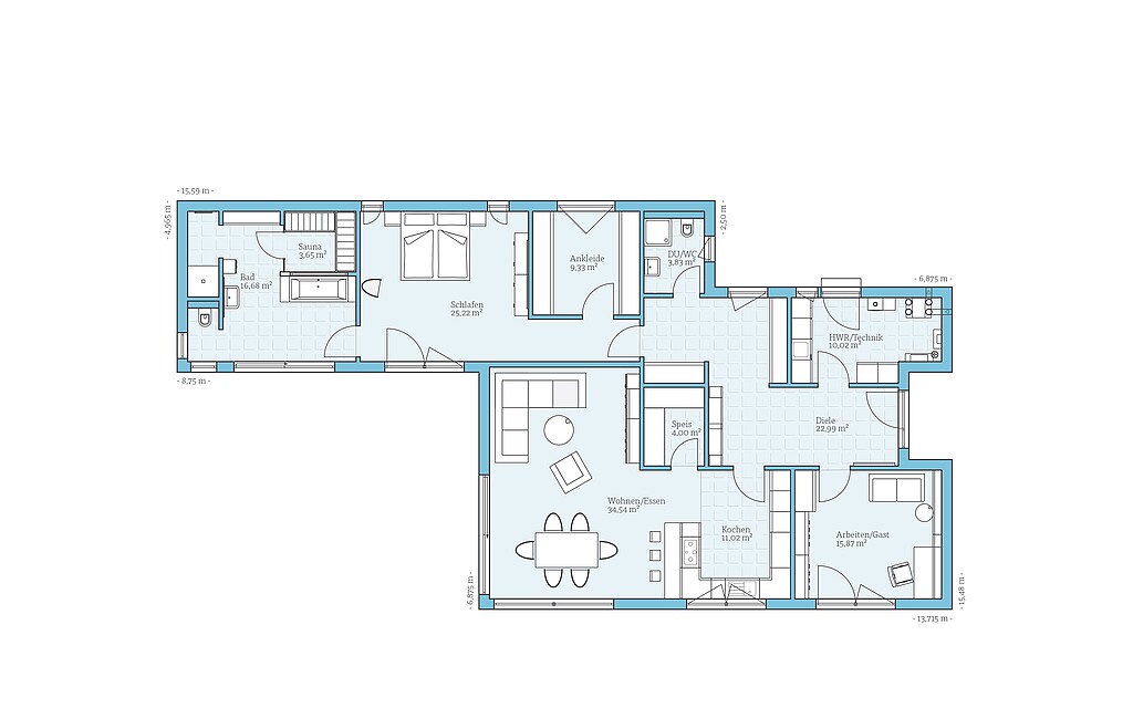
- Durch Winkel in der Planung kann das Haus mühelos in verschiedene Abschnitte unterteilt werden, z.B. Wohnraum und Büro oder Wohnbereich und Schlafbereich.
- Falls Sie einen Bungalow im Hinblick auf das Wohnen im Alter planen, denken Sie daran, dass alle Räume komfortabel mit dem Rollstuhl erreicht werden müssen, die Türen entsprechend breit sind und auch Terrassentüren barrierefrei zu öffnen sind.
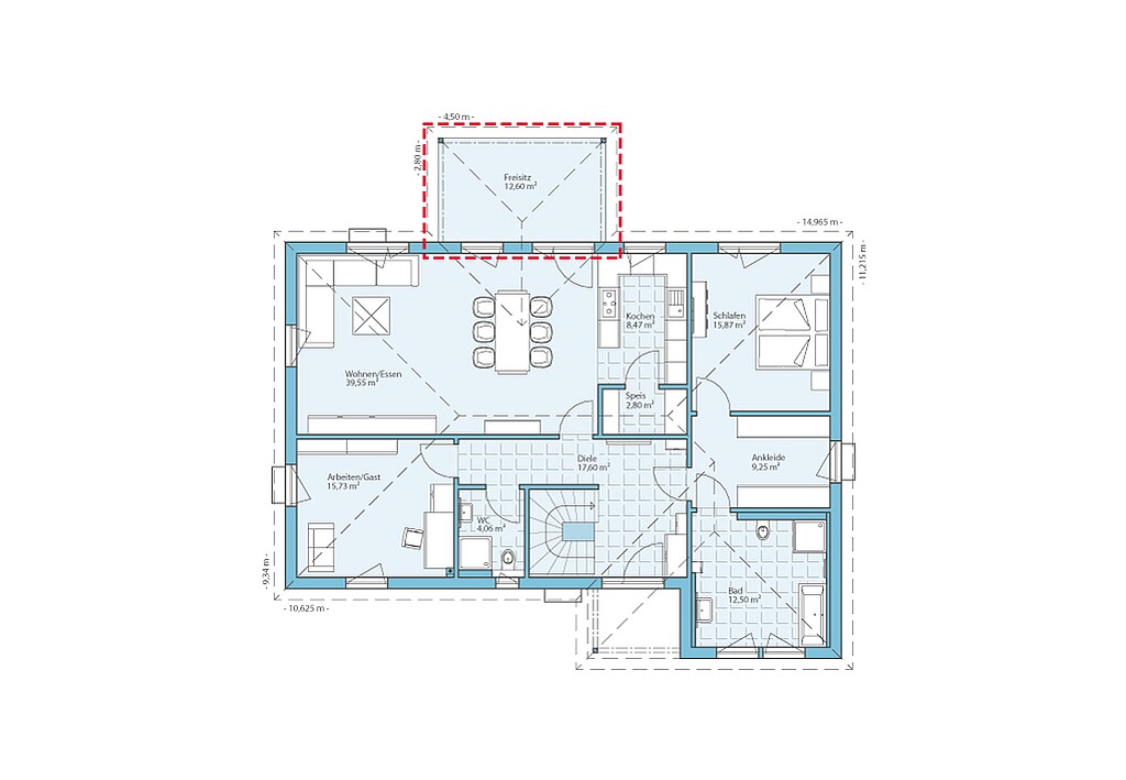
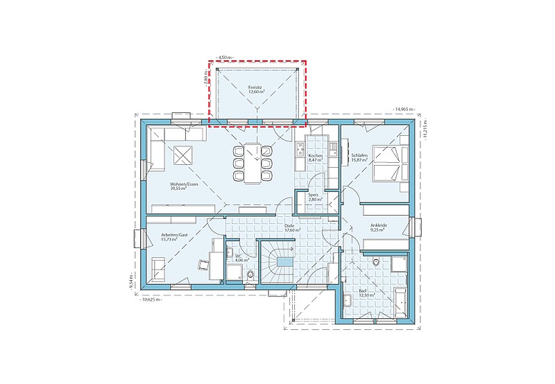
- Bei der richtigen Planung können Sie durch die Gebäudeform eine Terrasse schaffen, die von drei Seiten von den Blicken der Nachbarn und vor dem Wind geschützt ist.
- Das Wohnen auf einer Ebene bietet die einmalige Chance, von jedem Raum aus die Nähe zur Natur zu geniessen. Nutzen Sie diese Möglichkeit, indem Sie bodentiefe Fenster einbauen und mit Terrassentüren Zugang zum Garten schaffen.
Was ist der Unterschied?
Was ist der Unterschied zwischen einem Bungalow und einem Winkelbungalow? Während der Grundriss eines Bungalows rechteckig oder quadratisch ist, ist die Form eines Winkelbungalows vielfältiger. Gängige Hausformen für den Winkelbungalow sind hierbei z.B. U-, L-, T- oder auch eine Z-Form.
Was sind die Vorteile eines Winkelbungalows gegenüber eines rechteckigen/quadratischen Baus?
-
Durch die Winkel im Haus wirkt das Gebäude nicht so lang oder schmal und somit häufig etwas ästhetischer als ein rechteckiger Bau.
-
Ausserdem ist die Aufteilung der Räume variabler und die Lebensbereiche können räumlich besser voneinander getrennt werden.
-
Man kann eine vom Haus windgeschützte Terrasse einplanen.
Was sind die Nachteile eines Winkelbungalows gegenüber eines rechteckigen/quadratischen Baus?
-
Je mehr Winkel geplant werden, desto schwieriger ist es, das richtige Grundstück zu finden.
-
Es entstehen Mehrkosten durch grössere Dachflächen.
Was kostet ein bungalow mit etwa 120m² Grundriss Schlüsselfertig?
- Die Kosten für schlüsselfertige Bungalows sind in der Regel nur schwer pauschal anzugeben da sie von der Art der Ausstattung (welcher Bodenbelage, welche Wand, welche Türen usw.) abhängig sind.
- In unserer Aktionsbroschüre haben wir den Preis eines 126m² Bungalows in der Ausbaustufe "Fast Fertig" aufgeführt.
- Um den Preis für einen Schlüsselfertigen Bungalow zu erhalten, müssen aufgrund des hohen Standards der Ausbaustufe "Fast Fertig" lediglich noch die Kosten für Bodenbeläge, Innentüren und Maler-, Spachtel- und Tapezierarbeiten hinzugerechnet werden.













