Beaucoup d'espace pour vivre avec beaucoup d'espace pour vos idées
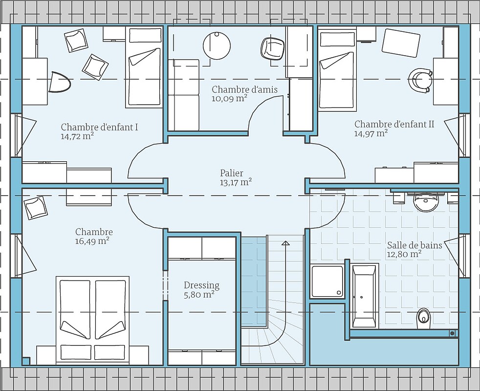
Avec ce modèle de Variant aussi, il est possible de vivre avec toute la famille, grâce à une large superficie de 184 m². Le rez-de-chaussée séduit par son espace salon/salle à manger/cuisine ouvert. Sous les combles sont prévus la salle de bain familiale, la chambre principale avec dressing et deux chambres d'enfants.
Pour les invités et le travail, deux pièces séparées sont prévues avec ce modèle de plan. La chambre d'amis sous les combles peut en alternative être utilisée comme une chambre d'enfant supplémentaire. Au rez-de-chaussée, il y a également un débarras séparé de prévu ainsi qu'un emplacement pour le vestiaire.
| Caractéristiques | |
|---|---|
| Type de toit | Toit en bâtière |
| Pente du toit | 35° |
| Échine | 120 cm |
| Surface habitable | 163,86 m² |
| Surface au sol | 182,02 m² |
| Nombre d'étages | 1,5 |
Option
de plans:
- Avec le pignon traversier en option, vous agrandissez le rez-de-chaussée de près de 5 m². La chambre d'amis peut très bien être utilisée comme troisième chambre d'enfants grâce au pignon traversier, car elle gagne ainsi en espace et en luminosité grâce à la façade vitrée.
Exemples de
plans d'étage
Faites-vous une idée de cette maison à travers les plans d'étage. Nous vous montrerons nos suggestions de planification, qui peuvent bien sûr être modifiées individuellement sur demande.

Maisons de la même série








