La tua casa dei sogni con due piani completi
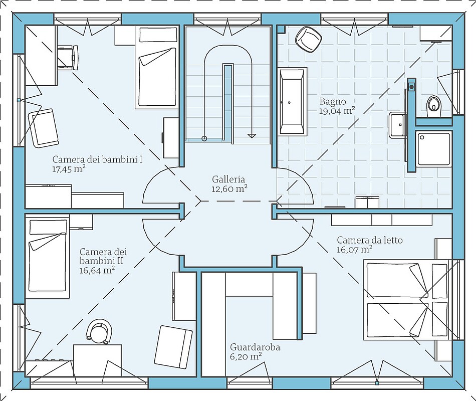
Rispetto alla pianta della casa campione di Villingen-Schwenningen, in questo progetto è stata aggiunta un'estensione alla zona giorno al piano terra al posto della cucina. Questo si traduce non solo in più spazio abitativo, ma anche in un angolo nell'area esterna dove una terrazza coperta si adatta bene - ideale per una grande zona pranzo all'aperto. Al piano superiore, i cambiamenti alla planimetria di base sono solo minori, in quanto le due grandi camere per bambini, la camera da letto principale con spogliatoio e il bagno estremamente spazioso - che offre anche spazio per una sauna se lo si desidera - soddisfa già i più importanti desideri abitativi.
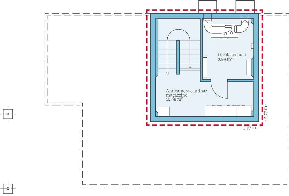
Con la casa modello Villa 178 di Oberleichtersbach, mostriamo quali altre opzioni sono disponibili oltre a una cantina completa o una soletta. Per coloro che non vogliono costruire un seminterrato completo per tutta la casa, ma vogliono comunque nascondere il locale tecnico e lo spazio di stoccaggio nel seminterrato, una cantina parziale è un'alternativa conveniente. Soprattutto nelle case con molto terreno, un seminterrato completo sarebbe spesso troppo grande e creerebbe uno spazio che non è necessario.
Il locale tecnico trasferito nel seminterrato crea spazio al piano terra per un piccolo locale combinato, dove, per esempio, si possono riporre la lavatrice, l'armadio delle scope, le scarpe o le borse.
| Caratteristiche | |
|---|---|
| Forma tetto | Tetto a padiglione |
| Inclinazione del tetto | 25° |
| Superficie abitativa | 182,02 m² |
| Superficie | 228,46 m² |
| Numero piani | 2 |
Peculiarità
della casa
Scopri questa casa dal vivo:
Buchstraße 3
97789 Oberleichtersbach
Tel.: 09741-808-0
Opzione di pianificazione:
- Un ampliamento del soggiorno estende lo spazio abitativo di circa 8 m² e crea un angolo riparato per lo spazio a sedere esterno.
- L'area esterna coperta di circa 18 m² offre protezione dalla pioggia.
- La cantina parziale offre circa 26 m² di spazio per il locale tecnico e per spazio di stoccaggio.
Esempi di
planimetrie
Fatevi un'idea di questa casa con gli esempi di planimetrie. Vi mostriamo le nostre proposte di progettazione, che naturalmente possono essere modificate individualmente su richiesta.

Case della stessa serie


















