Votre maison de rêve avec deux étages complets
Que faire si vous avez trouvé un plan de niveau presque parfait – mais seulement «presque»? Faire des compromis et espérer que vous vous y habituerez au quotidien? Bien sûr que non. Nous ne concevons pas les choses de cette manière. Nous peaufinons le plan de base jusqu'à ce qu'il soit parfait au regard des maîtres d'ouvrage. Avec les deux options de plan présentées aux pages suivantes, nous vous montrons à quel point cela est facile avec Hanse Haus.
Dans cette conception et par rapport au plan de la maison témoin de Villingen-Schwenningen, une extension a été ajoutée à l'espace de vie du rez-de-chaussée au lieu de la cuisine. Il en résulte ainsi, non seulement une surface de vie plus importante, mais aussi la possibilité d'ajouter à l'extérieur un coin avec terrasse couverte – idéal pour un grand espace de repas.
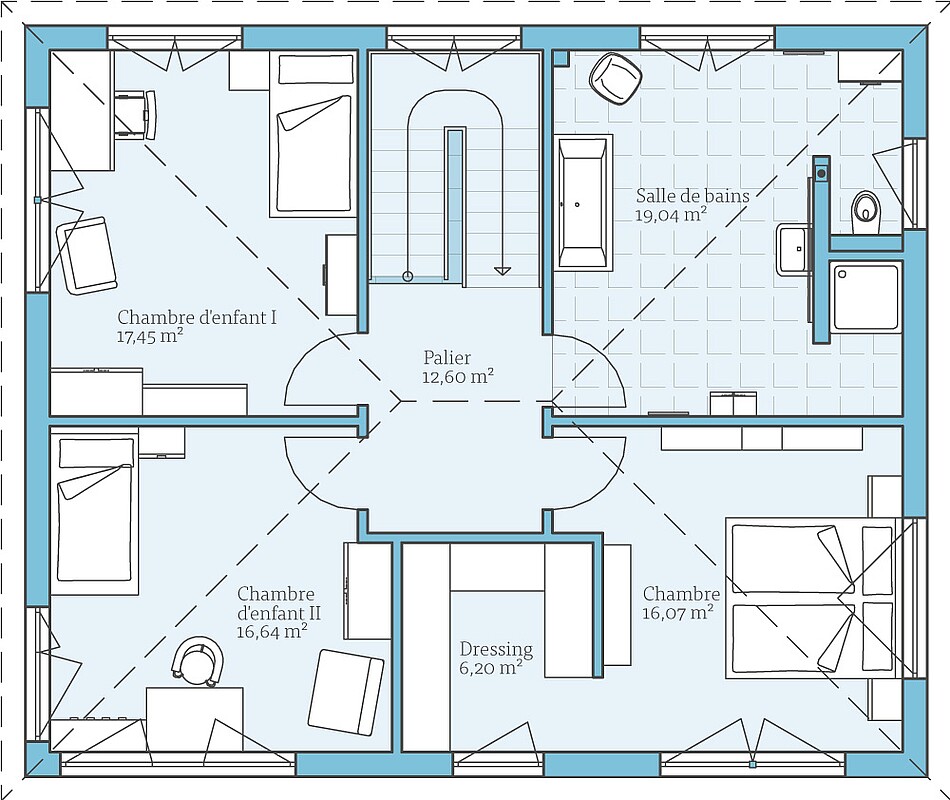
À l'étage, les changements apportés au plan de base ne sont que mineurs, car avec les deux grandes chambres d'enfants, la chambre principale avec dressing et la salle de bains extrêmement spacieuse, qui offre même de la place pour un sauna si vous le souhaitez, elle répond en l'état déjà aux souhaits les plus importants en matière d'habitat. Avec la maison d'exposition Villa 178 à Oberleichtersbach, nous montrons quelles sont les variantes disponibles en plus d'un sous-sol complet ou d'une dalle de fondation. Pour ceux qui ne souhaitent pas se lancer dans la construction d'un sous-sol complet, mais qui désirent tout de même pouvoir y cacher les installations techniques domestiques et un espace de stockage pour les provisions, un sous-sol partiel est une alternative rentable.
Dans les maisons disposant de beaucoup d'espace au sol, un sous-sol complet serait souvent trop grand et générerait un espace inutile. En déplaçant les installations techniques domestiques au sous-sol, de la place est ainsi libérée au rez-de-chaussée pour une petite pièce qui combine buanderie/vestiaire, où l'on peut par exemple ranger la machine à laver, le placard à balais, les chaussures ou les sacs.
| Caractéristiques | |
|---|---|
| Type de toit | Toit en croupe |
| Pente du toit | 25° |
| Surface habitable | 182,02 m² |
| Surface au sol | 228,46 m² |
| Nombre d'étages | 2 |
Particularités
& extras
Vivre cette maison en direct:
Buchstraße 3
97789 Oberleichtersbach
Téléphone 09741-808-0
Option de plans:
- Une extension du salon prolonge l'espace de vie d'environ 8 m² et crée un coin abrité pour le salon extérieur.
- Le coin salon extérieur couvert d'environ 18 m² protège de la pluie.
- Le sous-sol partiel offre sur environ 26 m² un emplacement pour les installations techniques domestiques et un espace de stockage supplémentaire.
Exemples de
plans d'étage
Faites-vous une idée de cette maison à travers les plans d'étage. Nous vous montrerons nos suggestions de planification, qui peuvent bien sûr être modifiées individuellement sur demande. De plus, nous avons préparé des options de planification intéressantes pour cette maison. Cliquez et voyez par vous-même quelles variantes nous avons envisagées.

Maisons de la même série
















