Confortevole fino al tetto
Tutti i progetti Cubus hanno una cosa in comune: grazie ai due piani completi sotto il moderno tetto piano, l'intera superficie al piano terra e anche al piano superiore può essere utilizzata completamente.
Per esempio, oltre alla camera da letto principale, il piano superiore offre anche spazio per due camere da letto per bambini, due bagni e uno spogliatoio per i genitori. Il piano terra è caratterizzato dalle grandi vetrate del soggiorno e della sala da pranzo, che offrono un ambiente inondato di luce. Un ampliamento opzionale espande ulteriormente la zona giorno.
| Caratteristiche | |
|---|---|
| Forma tetto | Tetto piatto |
| Inclinazione del tetto | 2° |
| Superficie abitativa | 160,73 m² |
| Superficie | 166,53 m² |
| Numero piani | 2 |
Opzione di
pianificazione
- Un bovindo con tetto piano e grandi superfici vetrate aumentano lo spazio abitativo di circa 7 m² e lasciano entrare ancora più luce nella zona giorno.
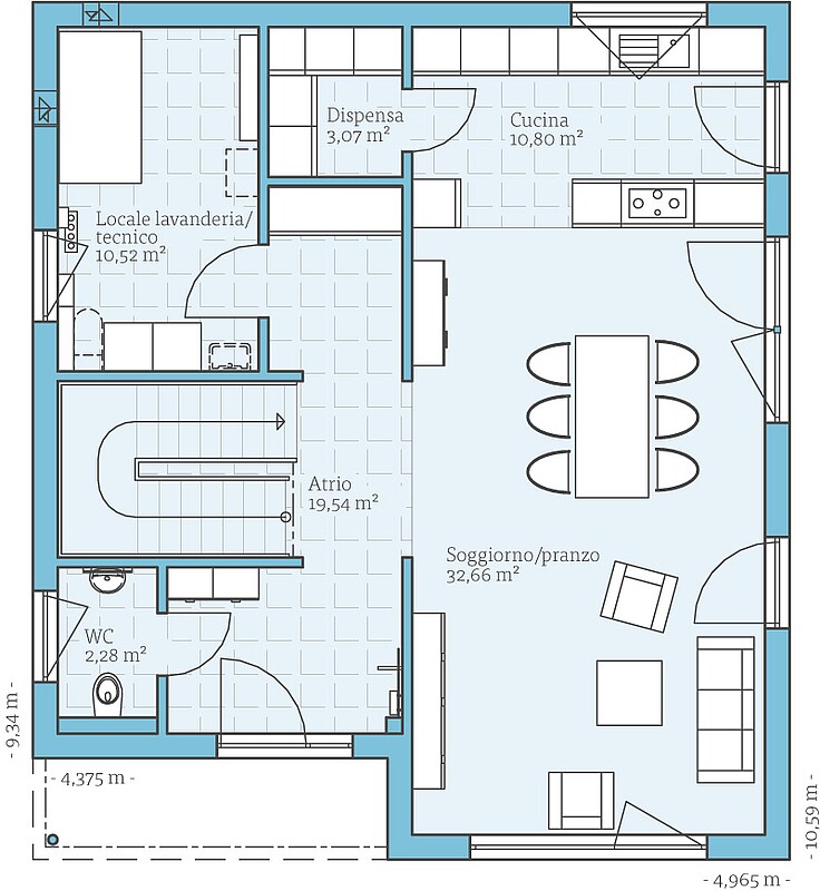
Esempi di
planimetrie
Fatevi un'idea di questa casa con gli esempi di planimetrie. Vi mostriamo le nostre proposte di progettazione, che naturalmente possono essere modificate individualmente su richiesta.

Case della stessa serie





