Confortable jusque sous le toit
Le point commun de tous les modèles de plan Cubus sont les deux étages complets sous le toit plat moderne qui permet d'utiliser pleinement toute la surface au sol du rez-dechaussée et du niveau supérieur.
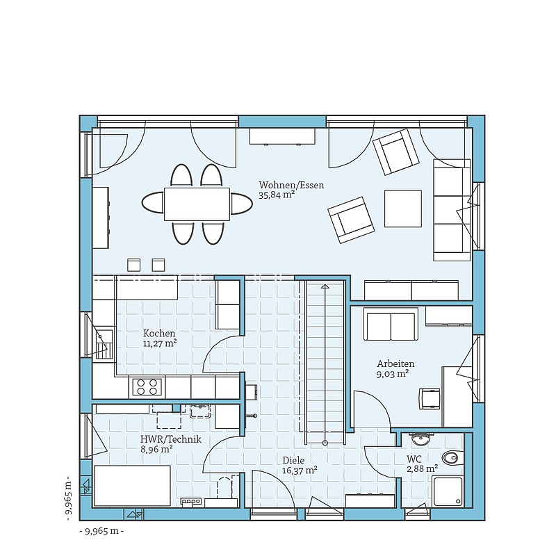
C'est ainsi qu'il y aura en complément de la chambre principale, suffisamment de place à l'étage supérieur pour deux chambres d'enfants, deux salles de bains et un dressing pour les parents. Le rez-de-chaussée est caractérisé par les grandes baies vitrées du salon et de la salle à manger, qui créent une ambiance de lumière traversante. Une extension optionnelle permet d'agrandir encore davantage l'espace de vie.
| Caractéristiques | |
|---|---|
| Type de toit | Toit plat |
| Pente du toit | 2° |
| Surface habitable | 160,73 m² |
| Surface au sol | 166,53 m² |
| Nombre d'étages | 2 |
Option
de plans:
- Un oriel avec un toit plat et de grandes baies vitrées agrandit l'espace de vie d'environ 7 m² et laisse entrer encore plus de lumière dans la pièce à vivre.
Beispiel
Grundrisse
Faites-vous une idée de cette maison à travers les plans d'étage. Nous vous montrerons nos suggestions de planification, qui peuvent bien sûr être modifiées individuellement sur demande.

Maisons de la même série



![[Translate to Français:] Erdgeschoss Fertighaus Cubus 167: Grundriss EG](/fileadmin/_processed_/a/2/csm_fertighaus-cubus-167-eg-grundriss_51f434dfb7.jpg)
![[Translate to Français:] Obergeschoss Fertighaus Cubus 167: Grundriss OG](/fileadmin/_processed_/3/8/csm_fertighaus-cubus-167-og-grundriss_82f8c170ce.jpg)
![[Translate to Français:] Planungsoption Erdgeschoss Fertighaus Cubus 167: Grundrissoption EG](/fileadmin/_processed_/a/3/csm_fertighaus-cubus-167-eg-grundrissoption_709db9ed38.jpg)
