Un appartement indépendant en module
Nous avons intégré dans la conception du modèle de maison Variant 25-150, un appartement indépendant particulier. Le cube à toit plat s'intègre harmonieusement à l'architecture de la maison et crée de l'espace pour l'appartement indépendant d'une superficie de près de 50 m². Entièrement de plain-pied, il est parfaitement accessible aux résidents de tous âges et offre tout ce dont vous avez besoin dans un appartement adapté aux personnes à mobilité réduite. En plus d'un salon, d'une salle à manger et d'un coin cuisine aménagé dans un espace ouvert, sont mises une chambre séparée ainsi qu'une salle de bains avec douche, à disposition.
| Caractéristiques | |
|---|---|
| Type de toit | Toit en bâtière |
| Pente du toit | 25° |
| Échine | 200 cm |
| Surface habitable | 174,98 m² |
| Surface habitable Appartement indépendant | 47,43 m² |
| Surface habitable logement principal | 127,55 m² |
| Surface au sol | 185,74 m² |
| Surface au sol Appartement indépendant | 47,43 m² |
| Surface au sol logement principal | 138,31 m² |
| Nombre d'étages | 1,5 |
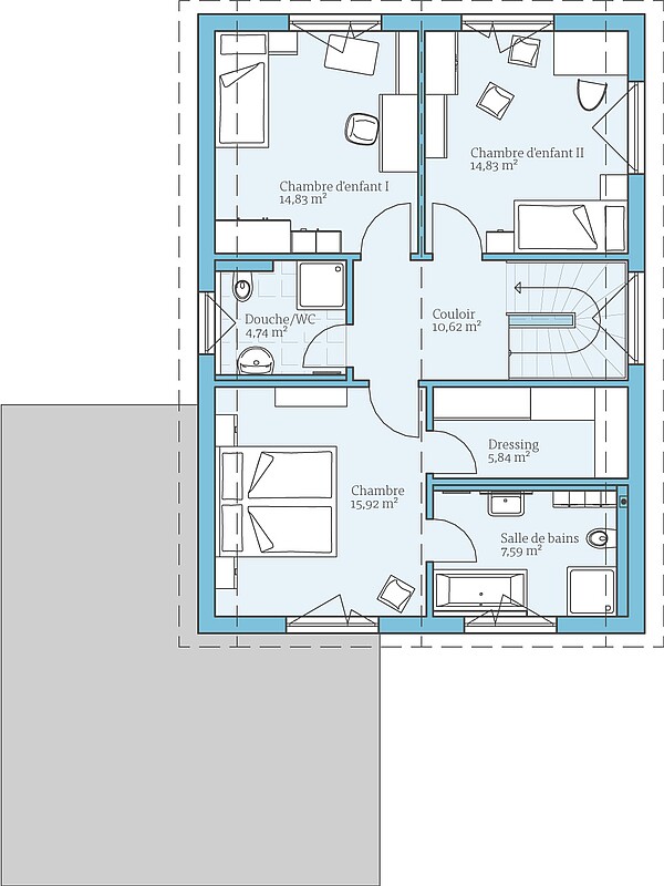
Exemples de
plans d'étage
Faites-vous une idée de cette maison à travers les plans d'étage. Nous vous montrerons nos suggestions de planification, qui peuvent bien sûr être modifiées individuellement sur demande.

Maisons de la même série








