Mit einem Anbau an Ihr Fertighaus mehr aus der Grundfläche herausholen: Fertighaus Anbauten von Keller über Carport bis zu Wintergarten und Zwerchgiebel
Anbauten
Unsere Fertighäuser sind flexibel. Bei vielen unserer Häuservorschläge lässt sich ganz einfach ein Anbau mit dazu planen.
Bei einigen Häusern haben wir schon Planungsoptionen für Sie entwickelt, die sich ganz besonders gut für diese Häuser eignen. Der Gestaltung sind aber (fast) keine Grenzen gesetzt: ein Anbau von Wintergarten, Erker oder Terrasse geht so gut wie immer.
Viele unserer Bauherren wünschen sich die klassische Trennung: Wohnraum im Erdgeschoss, Privatbereich mit Schlafräumen im Obergeschoss. Möchte man im Erdgeschoss des Hauses neben Vorraum, Wohnraum, Küche und Speisekammer auch noch ein Gäste- oder Arbeitszimmer, eine Gästetoilette (eventuell mit Dusche) und den Haustechnikraum unterbringen, erfordert das eine bestimmte Hausgrösse und/oder eine ausgeklügelte Planung.
- Wir zeigen Ihnen, wie Sie mit einfachen Anbauten das Beste aus Ihrer Grundfläche herausholen.
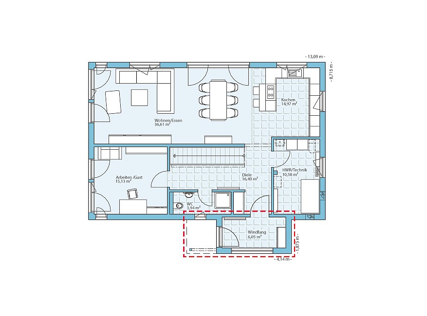
Mehr Platz durch Auslagerung des Technikraumes
Technikraum
Eine Lösung, mehr Wohnraum im Haus zu schaffen, ohne dieses gleich über zwei Stockwerke zu vergrössern, kann die Ausgliederung des Technik- bzw. Abstellraumes in einen eingeschossigen Anbau, in einen Windfang oder in die Garage sein.
Als Beispiel, welche Planungsoptionen wie bei Hanse Haus bereits für Sie vorüberlegt haben, können Sie sich unseren Planungsvorschlag Variant 35-160 ansehen, ein Haus mit Satteldach, bei dem wir als Planungsoption eine Garage und einen ausgelagerten Technikraum zeigen.
Noch Fragen? Kontaktieren Sie uns. Gerne informieren wir Sie darüber, wie Sie durch diese Auslagerung kosteneffizient Wohnraum schaffen können.
Holen Sie sich die Natur herein
Mit einem Wintergarten können Sie Ihr Fertighaus um einen schönen, lichtdurchfluteten Platz zum Sitzen und Entspannen erweitern.
Wie das aussehen kann, zeigt zum Beispiel unser Hausentwurf Variant 45-145: Bei diesem Fertighaus-Vorschlag mit Satteldach haben wir als Planungsoption einen Wintergarten an der Giebelseite ergänzt. Dadurch entsteht im Erdgeschoss ein zusätzlicher Raum von etwa 6 m², der viel Platz für einen gemütlichen Essplatz schafft.
Im Dachgeschoss kann der Wintergarten als Loggia zum Sonnen und Entspannen genutzt werden.
Fertighaus mit Terrasse
Unsere Fertighäuser lassen sich sehr gut mit einer Terrasse kombinieren, die als gemütlicher Sitzplatz im Freien genutzt werden kann. Unsere Vorschlagsentwürfe zeigen einige Möglichkeiten, wie sich eine Terrasse perfekt in die Hausplanung integrieren lässt.
Der Hanse Haus Bungalow 113 zum Beispiel, der als Winkelbungalow sozusagen „ums Eck“ gebaut ist, bietet einen vor Wind geschützten Terrassenbereich, der als Planungsoption mit einer Überdachung vom Frühling bis in den Herbst komfortabel genutzt werden kann.
Beim Entwurf Doppelhaus 135 schützt eine überdachte Loggia im Obergeschoss die Terrasse im Erdgeschoss vor Regen.
Mehr Platz, mehr Licht
Zusätzlichen Platz in einzelnen Räumen schaffen, ohne gleich den ganzen Grundriss verändern oder die Grundfläche vergrössern zu müssen: Das gelingt durch einen Erker am Haus.
Für unseren Fertighaus-Vorschlag Villa 142 zum Beispiel haben wir eine Planungsoption entworfen, bei der ein Erker mit Flachdach und grossen Fensterflächen etwa 7m² zusätzlichen Raum im Essbereich schafft und viel Licht in den Wohnbereich lässt.
Bei unserem Entwurf Vita 156 erweitert ein optionaler zweigeschossiger Erker den Wohnraum und ein Kinderzimmer um je ca. 2 m² und lockert gleichzeitig die Aussenansicht des Hauses auf.
Kontraste in der Fassade & heller Wohnraum
Der Anbau eines Zwerchgiebels hat mehrere Vorteile. Zum einen holt man durch einen Zwerchgiebel viel Licht und Helligkeit ins Obergeschoss und erweitert den Wohnraum um einige Quadratmeter, zum anderen kann ein Zwerchgiebel die Fassade optisch auflockern und zum echten Hingucker werden.
Sehen Sie sich als Beispiel unser Fertighaus Variant 45-175 an, bei dem der Zwerchgiebel im Dachgeschoss Raum für ein drittes Kinderzimmer schafft.
Anbau am Eingang
Auf Wunsch kann an Ihr Fertighaus ein Windfang angebaut werden.
- Der Windfang verhindert, dass kalte Aussenluft beim Betreten des Hauses in die Wohnräume gelangt.
- Mit einem Windfang schaffen Sie darüber hinaus mehrere Quadratmeter zusätzlichen Raum für Garderobe, Schuhaufbewahrung, Schirme und Spielsachen, die sich oft im Eingangsbereich ansammeln.
Bei unseren Fertighaus-Enwürfen Variant 25-192 und Villa 183 haben wir beispielsweise Planungsoptionen mit Windfang für Sie vorbereitet, um Ihnen die Vorteile eines Windfangs als Anbau zu zeigen.
Gönnen Sie sich und Ihrem Auto den Luxus eines Anbau-Carports oder einer Garage
& Garage
Manche Leute sagen, ein Carport oder eine Garage wären Luxus, manche sogar, sie wären eine überflüssige und teure Anschaffung. Wir sind anderer Meinung, denn sowohl Carport als auch Garage bieten jede Menge Vorteile, die den Alltag in Ihrem neuen Fertighaus erleichtern.
Hanse Haus Fertighäuser mit Carport oder Garage live erleben
Sehen Sie sich unsere Grundrissideen online an, begeben Sie sich mit unseren 360°-Rundgängen auf eine virtuelle Tour durch unsere Häuser oder machen Sie sich in unseren Ausstellungshäusern in unserem Hanse Haus Musterhauspark in Nordbayern oder in einem unserer Musterhäuser in Ihrer Nähe selbst ein Bild von den Vorzügen eines Carports oder einer Garage.
Fertighaus mit Carport oder Garage
Alle Vorteile auf einen Blick
Vorteile Fertighaus mit Carport
- Schutz des Autos vor Sonneneinstrahlung, Regen, Schnee und Hagel
- Trockener Lagerplatz für Brennholz, Garten- und Hobbygeräte
- Gute Luftzirkulation durch offene Konstruktion
- Zusätzlicher überdachter Eingang ins Haus möglich
- Kostengünstiger als eine Garage
Bei unserem Fertighaus Bungalow 133 zeigen wir Ihnen zum Beispiel als Planungsoption einen Carport, von dem aus Sie über einen Nebeneingang direkt in den Hauswirtschaftsraum des Hauses kommen – eine extrem praktische Variante, um bei Schnee und Regenwetter trocken ins Haus zu gelangen.
Vorteile Fertighaus mit Garage
- Optimaler Schutz des Autos vor Witterungseinflüssen wie Sonne, Regen, Hagel und Schnee
- Trockener und sicherer Lagerplatz für Brennholz, Garten- und Hobbygeräte, Autozubehör
- Einbau eines separaten Technikraumes zwischen Haus und Garage oder hinter der Garage möglich
- Zusätzlicher praktischer Nebeneingang aus der Garage in das Haus möglich
Zum Beispiel bei unseren Hausentwürfen Bungalow 157, Variant 35-160 und Variant 35-172 haben wir als Planungsoption bereits eine praktische Garage vorgesehen. Aber auch bei allen anderen Hanse Haus Fertighäusern ist der Anbau einer Garage möglich.
Fertighaus mit Keller oder Fertighaus mit Bodenplatte – auch hier übernimmt Hanse Haus für Sie die Planung und Ausführung
oder Keller
Die Bodenplatte bzw. den Keller für Ihr neues Zuhause erhalten Sie ebenfalls von uns aus einer Hand.
- So übernehmen wir die Planung der Gründung und sorgen für eine einwandfreie Ausführung, die perfekt auf den Grundriss Ihres Hauses abgestimmt ist.
- Sogar ein Bodengutachten ist bereits in unserem Hanse Haus Leistungsumfang enthalten und bietet Ihnen die Sicherheit, dass die Ausführung aller Leistungen an die geologischen Verhältnisse Ihres Grundstückes angepasst werden kann.
- Bei einem Hanse Haus-Keller wählen Sie zwischen einer preiswerten Keller-Einstiegsvariante mit einer lichten Rohbauhöhe von 2,25 Metern und einem Keller mit einer lichten Höhe von 2,70 Metern, der bereits die mögliche Planung von Wohn- und Nassräumen im Kellergeschoss berücksichtigt.
Details zu Bodenplatte und Keller finden Sie in unserer Bauleistungsbeschreibung, die wir Ihnen gerne zusenden. Auch unsere kompetenten Berater informieren Sie gerne über die Möglichkeiten, die Sie bei Hanse Haus in Bezug auf die Bodenplatte oder für ein Fertighaus mit Keller haben.
Vorteile Keller

- Zusätzliches Geschoss: Lager- und Stauraum, Platz für Haus- und Heiztechnik
- Vielfältige Nutzungsmöglichkeiten: Werkstatt, Hobbyraum, Sauna, Hauswirtschaftsraum, Heimkino, Fitnessraum, ...
- Bei passenden Voraussetzungen als zusätzlicher Wohnraum ausbaubar: Jugendzimmer, Büro, abgetrennte Einliegerwohnung, ...
Vorteile Bodenplatte

- geringere Kosten im Vergleich zum Keller (Erdarbeiten, Material)
- Geringere Gefahr unerwarteter Kosten (Erdarbeiten)
- Punktet mit Blick auf Energieeffizienz: kann problemlos gedämmt werden
Keller oder Bodenplatte?
Entscheidungskriterien
Folgende Faktoren sollten in die Entscheidung einfließen:
- Bedarf an Wohnfläche und Stauraum: Was soll eigentlich in den Keller verlagert werden und wie viel Platz wird im Haus benötigt?
- Beschaffenheit des Grundstücks und die jeweiligen Vorgaben dazu, wie es bebaut werden darf: Vor allem bei einem Hanggrundstück ist es oft sinnvoll, mit Keller zu bauen. Ist der Hang sehr steil, ist eine Bodenplatte manchmal sogar sehr schwierig umzusetzen. Auch bei kleinen Grundstücken ist ein Keller sinnvoll, da hier fehlender Platz in der Länge und Breite durch den Bau in die Tiefe ausgeglichen werden kann.
- Verfügbares Baubudget
Teilunterkellerung & Kellerersatzraum
Alternativen zum Keller
Teilunterkellerung
Eine Teilunterkellerung bietet sich oft als guter Kompromiss an: Dabei wird nur ein Teil der Grundfläche des Hauses unterkellert. Meist können bei dieser Lösung im Vergleich zur vollständigen Unterkellerung Kosten gespart werden, während trotzdem zusätzlicher Platz im Haus zur Verfügung steht.
- Unser Musterhaus Villa 178 neben dem Bauherrenzentrum in Oberleichtersbach im Musterhauspark wurde mit einer solchen Teilunterkellerung geplant. Neben weiterem Lager- und Stauraum ist dort die Haus- und Heiztechnik untergebracht.
Kellerersatzraum
Bei einem Kellerersatzraum handelt es sich um einen Hausanbau oder ein Nebengebäude außerhalb der Wohnung. Oft wird ein Kellerersatzraum in der Verlängerung der Garage oder zwischen Haus und Garage geplant. Er kann entweder unbeheizt sein oder innerhalb der thermischen Hülle liegen. Er wird meist als Lagerraum genutzt und bietet sich vor allem für Gegenstände an, die eher draußen benötigt werden, wie Rasenmäher, Gartenmöbel, Fahrräder oder Brennholz. Der Nachteil dabei ist, dass ein Kellerersatzraum zusätzlichen Platz auf eurem Grundstück einnimmt.

„Auch der Anbau einer komplett getrennten Wohnung an Ihr Fertighaus ist bei Hanse Haus möglich. Bei unserem Fertighaus Variant 25-150 mit Einliegerwohnung ist einfach eine zusätzliche Wohnung als Cubus an das Haus angebaut – praktisch, barrierefrei und oft staatlich förderbar.“


Mit unseren Anbauoptionen machen wir viele Vorschläge für praktische Anbauten. Die Fertighäuser von Hanse Haus bieten aber zusätzlichen Raum für individuell vom Architekten für Sie geplante Erweiterungen.
Erweiterungen
Sie haben ganz besondere Wünsche und Vorstellungen oder müssen sich durch Ihre Grundstücksform oder Lage an spezielle Begebenheiten anpassen?
Kein Problem. Was auch immer Sie für Ihr Fertighaus suchen, unsere Hanse Haus Architekten finden den passenden Entwurf für das Fertighaus, das Ihren Bedürfnissen und Wünschen entspricht.
Geben Sie mit unseren Grundriss-Anpassungen und Planungsoptionen Ihrem Haus mehr Persönlichkeit.





















