Modernes Allround-Talent
Grosszügige Räume, viel Tageslicht, rund 160 Quadratmeter Gesamtwohnfläche – im Variant 35-176 kann man sich einfach nur wohlfühlen.
Das Erdgeschoss wird vor allem durch den offenen Wohn-, Ess- und Kochbereich geprägt. Der optionale Erker mit grossen Fensterflächen schafft dort Raum für einen besonders hellen, gemütlichen Essplatz.
Besonders praktisch: In einem zusätzlichen Raum, der direkt an die offene Küche anschliesst, ist eine Kombination aus Speisekammer und Hauswirtschaftsraum eingeplant. So gelingt es, tägliche Wege im Haus zu verkürzen.
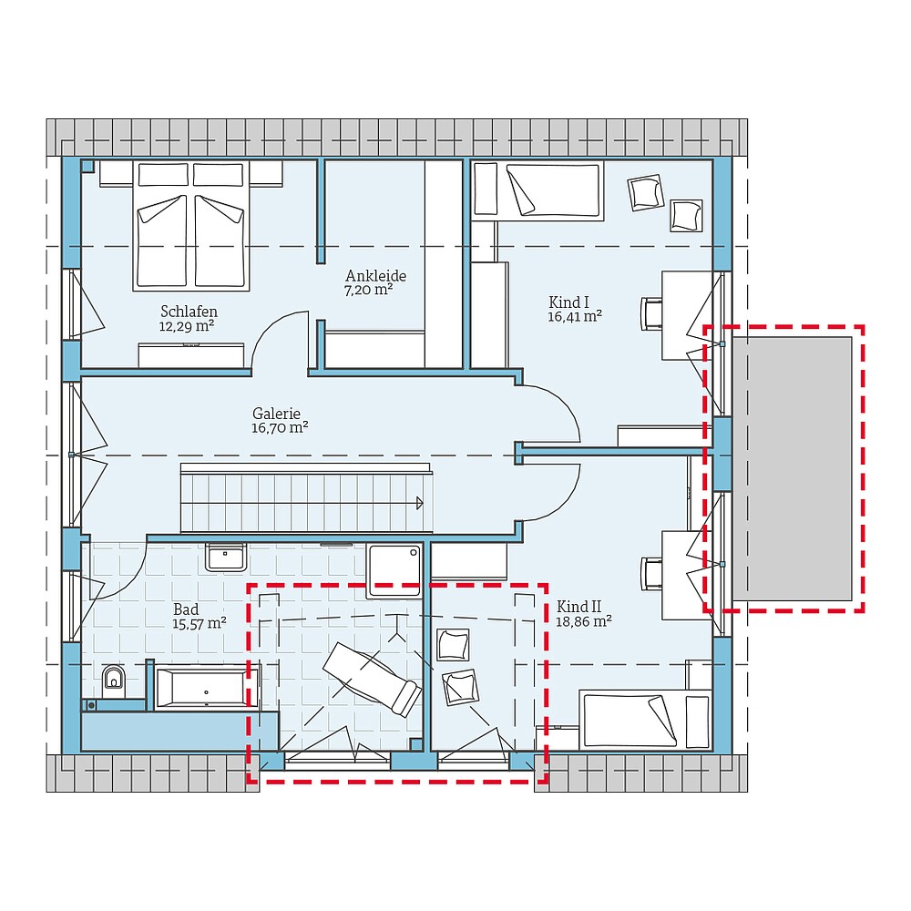
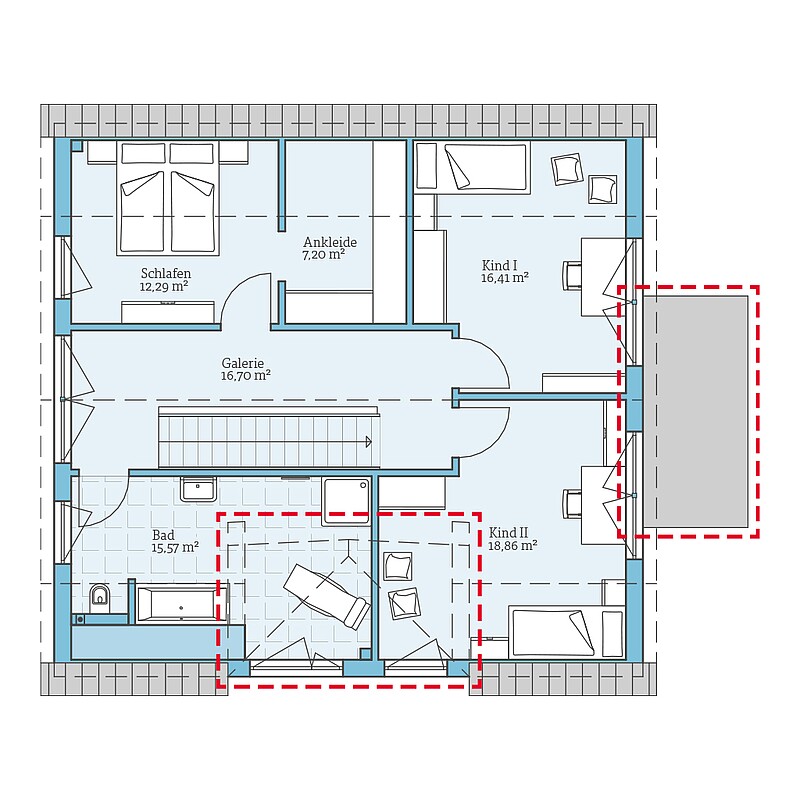
Auch der optionale Zwerchgiebel macht diesen Hausentwurf zu einem flexibel planbaren Allround-Talent: Das grosse Familienbad im Dachgeschoss und eines der beiden geräumigen Kinderzimmer werden nicht nur um 1,5 Quadratmeter erweitert, sondern erhalten zusätzlich noch eine Extraportion Tageslicht.
| Merkmale | |
|---|---|
| Dachform | Satteldach |
| Dachneigung | 35° |
| Kniestock | 120 cm |
| Wohnfläche | 156,15 m² |
| Grundfläche | 173,94 m² |
| Anzahl Geschosse | 1,5 |
Besonderheiten
& Extras
Dieses Haus live erleben:
Otto-Hahn-Strasse 12
97230 Estenfeld
Telefon 09305 1718
Anbaumöglichkeiten:
- Erker
- Flachdach-Zwerchgiebel
Beispiel
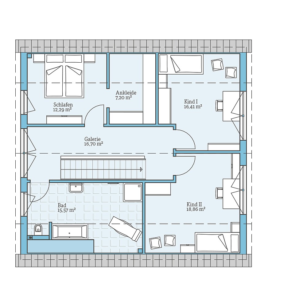
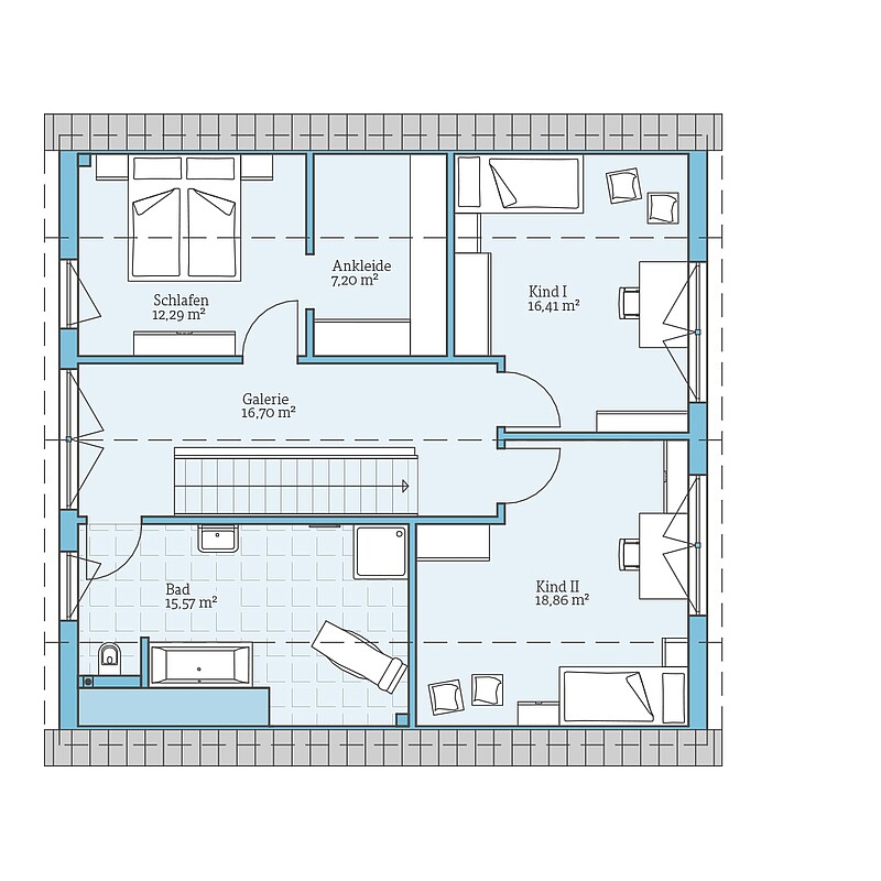
Grundrisse
Bekommen Sie durch die Grundrisse einen Eindruck von diesem Haus. Wir zeigen Ihnen unsere Planungsvorschläge, die natürlich auf Wunsch individuell umgeplant werden können.
Zusätzlich haben wir für dieses Haus interessante Planungsoptionen vorbereitet. Klicken Sie sich durch und sehen Sie selbst, welche Varianten wir uns überlegt haben.





















