Auf gute Nachbarschaft
Der Bau eines Doppelhauses bietet viele Vorteile. Gerade in Wohngegenden mit hohen Grundstückspreisen wirkt sich der niedrigere Platzbedarf eines Doppelhauses sehr positiv aus.
Oder Sie planen Ihr Doppelhaus als Mehrgenerationenhaus, damit die eigenen Eltern auch im Alter Anschluss an die Familie haben.
Wie auch immer Sie Ihr Doppelhaus planen, einen Vorteil haben Sie in jedem Fall: Sie können sich Ihre direkten Nachbarn selbst aussuchen. Auch bei der Gestaltung des Fertighauses können beide Parteien ihre Vorstellungen realisieren. Statt einheitlicher Farbgebung bei beiden Haushälften wirken auch Farbkombinationen wie z. B. beim abgebildeten Doppelhaus sehr harmonisch.
| Merkmale | |
|---|---|
| Dachform | Satteldach |
| Dachneigung | 35° |
| Kniestock | 120 cm |
| Wohnfläche je Einheit | 114,85 m² |
| Grundfläche je Einheit | 130,07 m² |
| Anzahl Geschosse | 1,5 |
Anbau
Möglichkeiten
- Zwerchgiebel
Beispiel
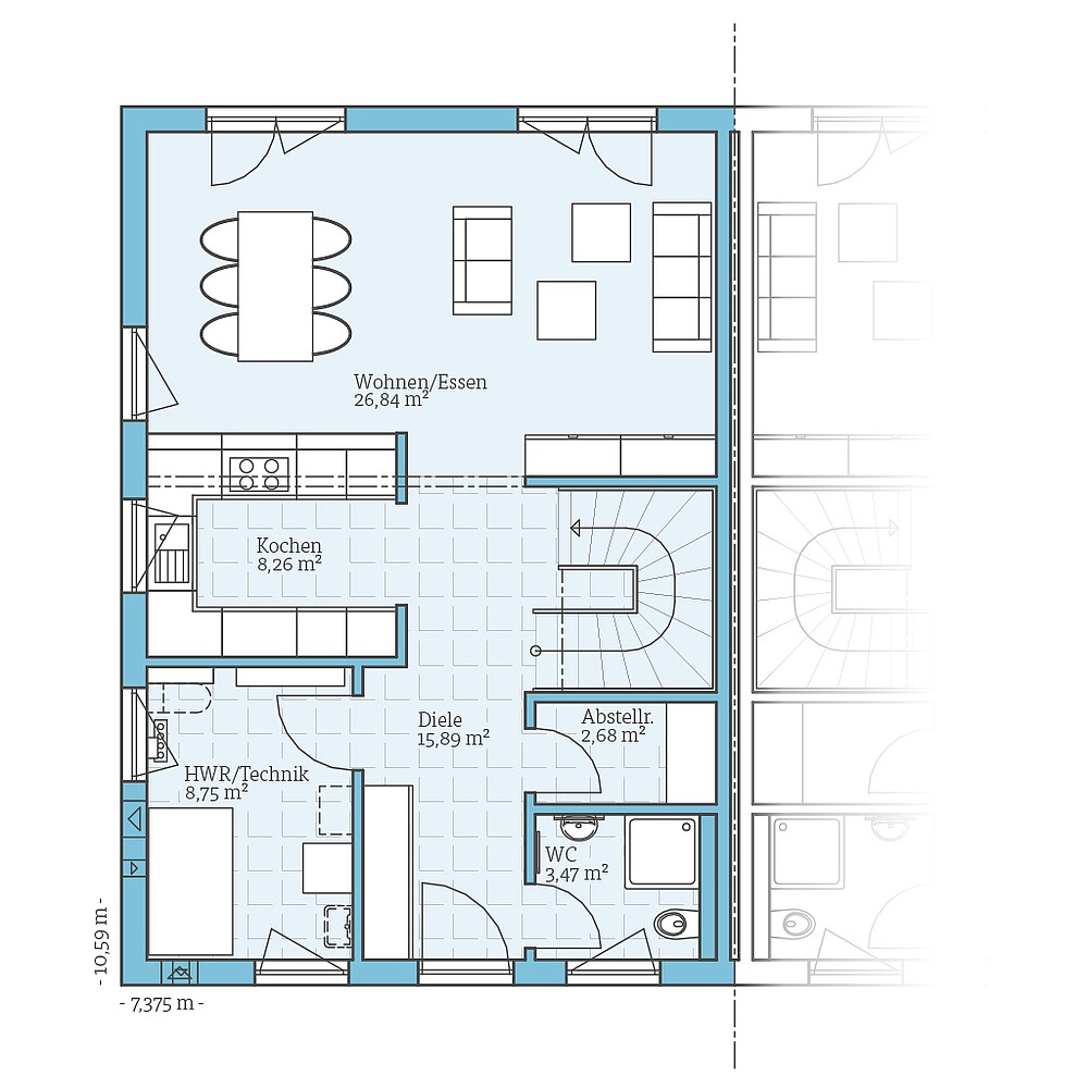
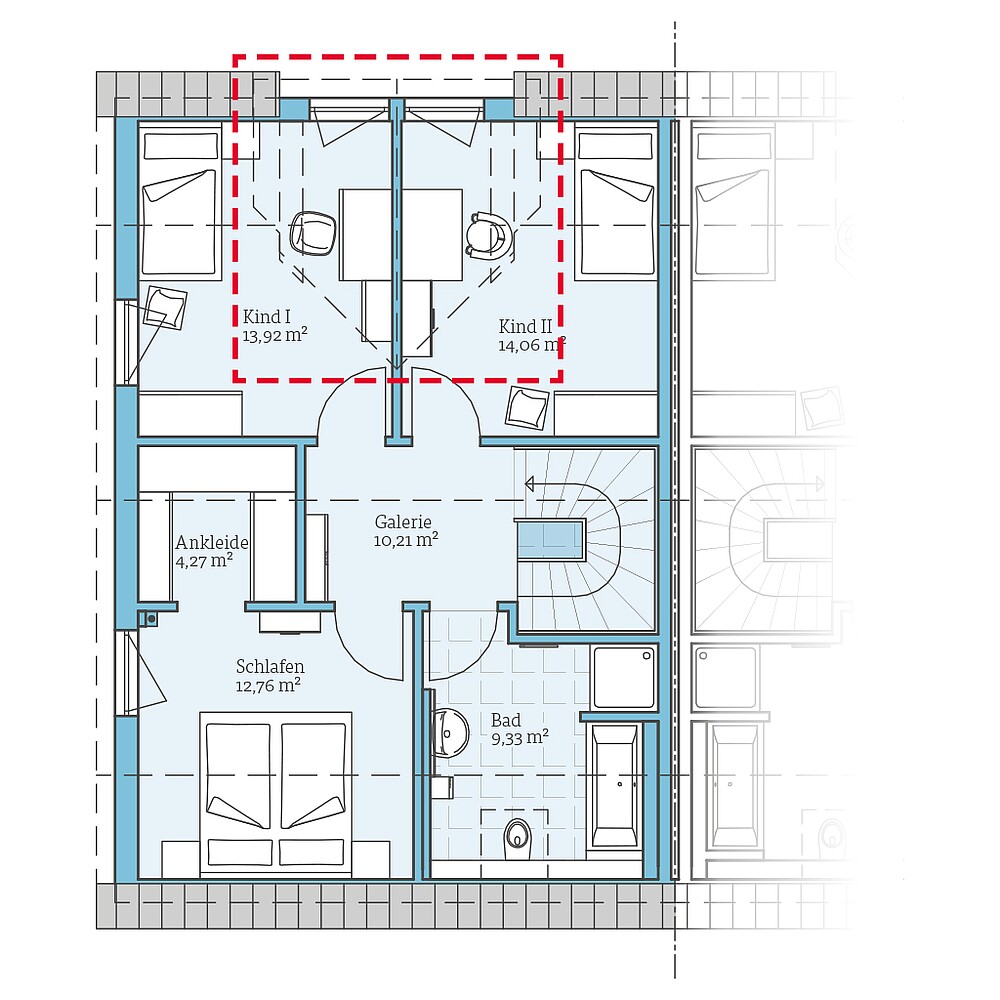
Grundrisse
Bekommen Sie durch die Grundrisse einen Eindruck von diesem Haus. Wir zeigen Ihnen unsere Planungs-Vorschläge, die natürlich auf Wunsch individuell umgeplant werden können.
Zusätzlich haben wir für dieses Haus interessante Planungsoptionen vorbereitet. Klicken Sie sich durch und sehen Sie selbst, welche Varianten wir uns überlegt haben.










