Von der Giebelseite ins Haus
Gestalten Sie das Variant 45-154, ein Haus aus unserer Hausserie mit Satteldach, so bunt und abwechslungsreich wie Ihr Leben.
Bei der farblichen Gestaltung der Hausfassade stehen Ihnen unzählige verschiedene Farbtöne zur Auswahl, die Sie ganz nach Wunsch kombinieren können. Damit wird Ihr Haus garantiert zum Hingucker.
Auch in der Gestaltung der Innenräume können Farben ganz gezielt eingesetzt werden, um unterschiedliche Stimmungen zu erzeugen. Ein frisches Grün im Bad z. B. sorgt für einen lebhaften Start in den Tag, warme mediterrane Farben in den Wohnräumen strahlen südliche Gemütlichkeit aus und kühle Farben in den Schlafräumen haben eine beruhigende Wirkung. Gerne geben Ihnen unsere Ausstattungsberater weitere Tipps und unterstützen Sie bei der Gestaltung des Farbkonzeptes Ihres Hauses.
| Merkmale | |
|---|---|
| Dachform | Satteldach |
| Dachneigung | 45° |
| Kniestock | 50 cm |
| Wohnfläche | 138,41 m² |
| Grundfläche | 155,19 m² |
| Anzahl Geschosse | 1,5 |
Anbau
Möglichkeiten
- Erker
- Loggia
Beispiel
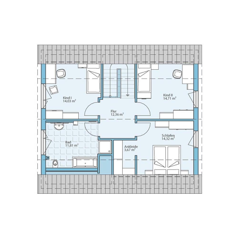
Grundrisse
Bekommen Sie durch die Grundrisse einen Eindruck von diesem Haus. Wir zeigen Ihnen unsere Planungsvorschläge, die natürlich auf Wunsch individuell umgeplant werden können.
Zusätzlich haben wir für dieses Haus interessante Planungsoptionen vorbereitet. Klicken Sie sich durch und sehen Sie selbst, welche Varianten wir uns überlegt haben.













