Das Haus, das perfekt zu Ihnen passt
Machen Sie das Variant 35-173 zu Ihrem ganz persönlichen Zuhause.
Wie bei all unseren Häusern können Sie auch hier den Grundriss nach Ihren Vorstellungen vergrössern, verkleinern, Raumaufteilungen verändern, Fenster umplanen und dem Haus mit unzähligen Farbkombinationen bei der Fassaden- und Raumgestaltung einen unverwechselbaren Look verleihen.
Für eine individuelle Anpassung des Hauses sprechen Sie einfach mit Ihrem Hanse Haus Fachberater und planen Sie gemeinsam.
| Merkmale | |
|---|---|
| Dachform | Satteldach |
| Dachneigung | 35° |
| Kniestock | 120 cm |
| Wohnfläche | 155,82 m² |
| Grundfläche | 173,18 m² |
| Anzahl Geschosse | 1,5 |
Anbau
Möglichkeiten
Dieses Haus live erleben:
Höhenstrasse 21, Haus 26
70736 Fellbach
Telefon 0711 4703538
- überdachter Terrassenbereich
- Büro- oder Garagenanbau
- Windfang mit direktem Zugang zum Anbau
Beispiel
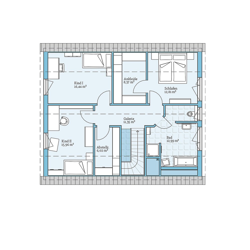
Grundrisse
Bekommen Sie durch die Grundrisse einen Eindruck von diesem Haus. Wir zeigen Ihnen unsere Planungsvorschläge, die natürlich auf Wunsch individuell umgeplant werden können.
Zusätzlich haben wir für dieses Haus interessante Planungsoptionen vorbereitet. Klicken Sie sich durch und sehen Sie selbst, welche Varianten wir uns überlegt haben.



















