Beaucoup d'espace sur de petits terrains
Il n'est pas toujours nécessaire de disposer d'un grand terrain pour réaliser ses propres représentations d'habitation. Avec une conception de maison comme celle du modèle Variant 45-130, même les petits espaces entre les bâtiments ou les terrains divisés peuvent être utilisés de manière optimale. Du fait de la conception ouverte du plan de niveau, le rez-de-chaussée en particulier semble considérablement plus grand, malgré sa taille compacte. Avec ce modèle, il n'est pas question de renoncer à une buanderie pratique et à des toilettes séparées pour les invités. Nous avons planifié la maison de manière à ce qu'elle puisse être construite à coûts réduits sur une dalle de fondation.
| Caractéristiques | |
|---|---|
| Type de toit | Toit en bâtière |
| Pente du toit | 45° |
| Échine | 50 cm |
| Surface habitable | 114,18 m² |
| Surface au sol | 129,61 m² |
| Nombre d'étages | 1,5 |
Option
de plans:
- Si vous optez en plus pour une cave, la buanderie peut être utilisée comme bureau ou chambre d'amis. Au sous-sol, il y a suffisamment d'espace pour les installations techniques de chauffage, des pièces de loisirs, des celliers ou un atelier.
- Avec ses grandes surfaces de fenêtres, le pignon traversier optionnel laisse entrer beaucoup de lumière dans les chambres d'enfants et offre davantage d'espace. Ici aussi, vousavez le choix entre un pignon avec un toit en bâtière classique et un pignon avec un toit plat moderne.
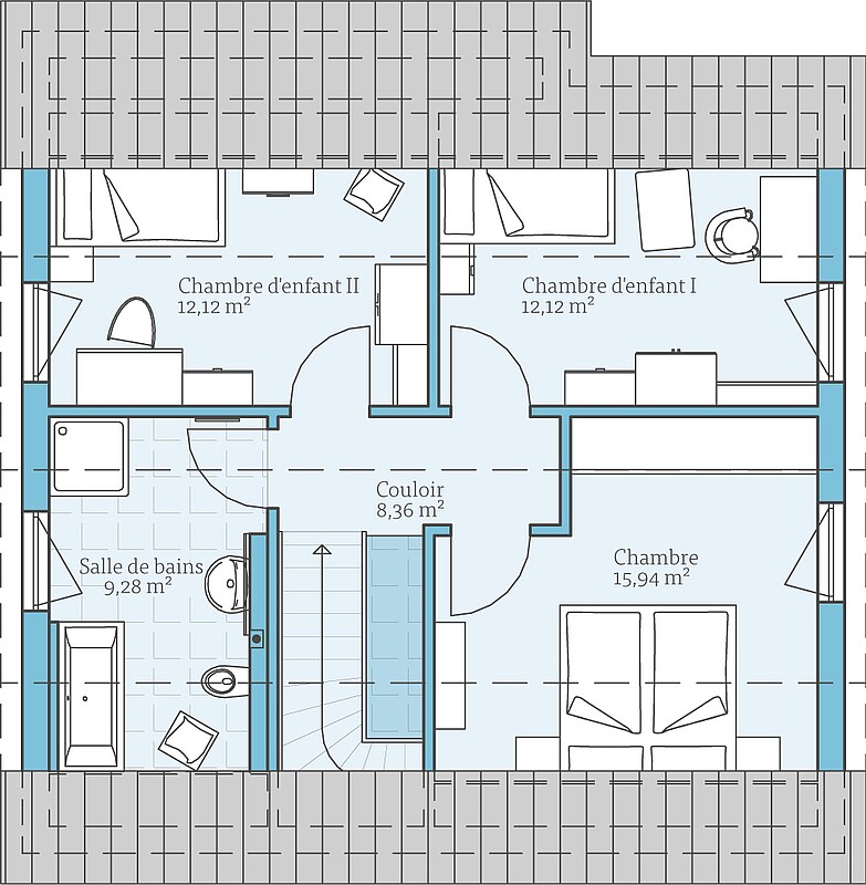
Exemples de
plans d'étage
Faites-vous une idée de cette maison à travers les plans d'étage. Nous vous montrerons nos suggestions de planification, qui peuvent bien sûr être modifiées individuellement sur demande.

Maisons de la même série







