Unser grosszügiger Klassiker mit 126 m²
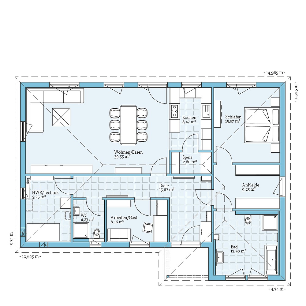
Der Winkelbungalow mit Walmdach ist der Klassiker unter den Bungalows. Seine 126 m² Wohnfläche auf einer Ebene können auf Wunsch noch mit einem überdachten Freisitz erweitert werden – ein toller Platz für laue Sommerabende.
Im Haus finden sogar ein Extra-Arbeits-/Gästezimmer, eine Ankleide, eine Speisekammer und ein zweites Bad mit Dusche und WC ihren Platz.
| Merkmale | |
|---|---|
| Dachform | Walmdach |
| Dachneigung | 25° |
| Wohnfläche | 125,66 m² |
| Grundfläche | 125,66 m² |
| Anzahl Geschosse | 1 |
Anbau
Möglichkeiten
- überdachter Freisitz
Beispiel
Grundrisse
Bekommen Sie durch die Grundrisse einen Eindruck von diesem Haus. Wir zeigen Ihnen unsere Planungs-Vorschläge, die natürlich auf Wunsch individuell umgeplant werden können.
Zusätzlich haben wir für dieses Haus interessante Planungsoptionen vorbereitet. Klicken Sie sich durch und sehen Sie selbst, welche Varianten wir uns überlegt haben.











