Raumkonzepte, die sich dem Leben anpassen
Reduziert im Maß, aber stark im Grundriss: Das QNG⁺-Line Doppelhaus 159 vereint vier Wohnungen mit klarem Zuschnitt – je zwei pro Doppelhaushälfte mit ca. 65 m² unten und 76 m² oben.
Im Erdgeschoss umfasst jede Wohnung einen Wohn-, Ess- und Kochbereich, ein Schlafzimmer, ein Bad mit Dusche, Abstellraum und Technikraum. Im Obergeschoss kommen ein Arbeitszimmer, eine Ankleide im Schlafzimmer und eine Badewanne hinzu.
Freisitz und Balkon schaffen in beiden Etagen angenehme Rückzugsorte im Freien – ideal für flexible Wohnformen mit Anspruch an Komfort.
Bis zu 10 % sparen dank serieller Fertigung:
- Ausbauhaus: ab 297.221 € pro Haushälfte
- Technikfertig: ab 389.496 € pro Haushälfte
- Fast Fertig: ab 414.285 € pro Haushälfte
- Schlüsselfertig: ab 456.243 € pro Haushälfte
Ihr Vorteil:
Wir können garantieren, dass Ihr Fertighaus aus der QNG+-Line unter Einhaltung bestimmter Vorgaben eine QNG-Zertifizierung erhält. So ist die höchste Förderstufe der KfW-Förderung Wohneigentum für Familien möglich – mit zinsgünstigen Krediten für eine erleichterte Finanzierung.
Info:
Abbildungen und Grundrisse enthalten Sonderausstattungen und Anbauten, die nicht im Grundpreis enthalten sind.
| Caratteristiche | |
|---|---|
| Forma tetto | Tetto a due falde |
| Inclinazione del tetto | 25 ° |
| Superficie abitativa per unità | 151,33 m² |
| Superficie per unità | 176,11 m² |
| Numero piani | 2 |
Ihr Plus an Komfort
Serielle Fertigung mit Flexibilität – auch ohne individuelle Planung stehen Ihnen bei unseren Häusern aus der QNG+-Line einige Planungsoptionen offen:
Erdgeschoss
- Größere Dusche im Badezimmer
- Größere Terrassentür im Wohn-, Ess- und Kochbereich sowie Schlafzimmer
- Terrassentür statt Fenster im Wohn-, Ess- und Kochbereich
- Wohn-, Ess- und Kochbereich geschlossen
- Größere Fenster im Wohn-, Ess- und Kochbereich sowie Technikraum
- Haustürvordach
Obergeschoss
- Größere Dusche im Badezimmer
- Größere Terrassentür im Wohn-, Ess- und Kochbereich
- Wohn-, Ess- und Kochbereich geschlossen
- Größere Fenster im Schlaf- und Badezimmer
- Bodentiefe Fenster statt Fenster im Wohn-, Ess- und Kochbereich
- Größerer Dachüberstand
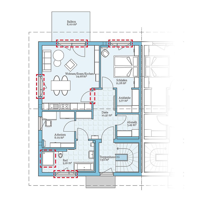
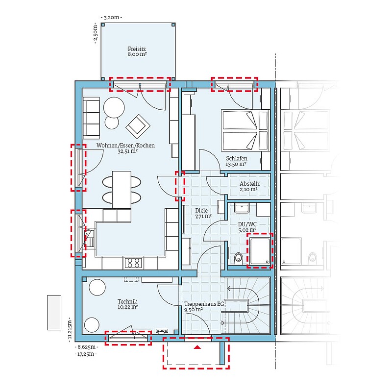
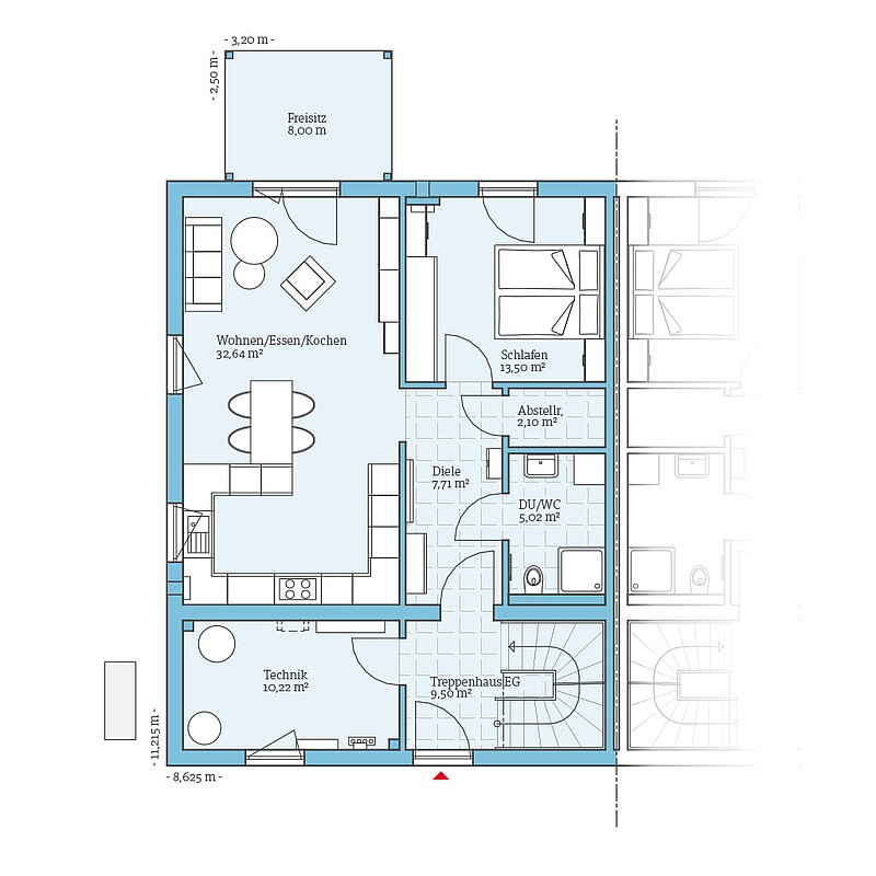
Beispiel-
Grundrisse
Bekommen Sie durch die Grundrisse einen Eindruck von unserem Fertighaus aus der QNG⁺-Line.
Voraussetzung für die serielle, günstigere Fertigung ist, dass an den vordefinierten Grundrissen nur bestimmte Änderungen vorgenommen werden können. Entdecken Sie die möglichen Planungsoptionen für diesen Hausentwurf:
Case della stessa serie


![[Translate to Italiano:] Beispiel Fertighaus Variant 35-172: Treppe](/fileadmin/_processed_/e/8/csm_fertighaus-variant-35-172-04-prev_281bfac621.jpg)
![[Translate to Italiano:] Grundriss (Erdgeschoss) QNG⁺-Line Doppelhaus 159: Grundriss EG - Hanse Haus](/fileadmin/_processed_/5/a/csm_doppelhaus-159-eg-grundriss-aktion-qng_c4377607e6.jpg)
![[Translate to Italiano:] Grundriss (Obergeschoss) QNG⁺-Line Doppelhaus 159: Grundriss OG - Hanse Haus](/fileadmin/_processed_/e/3/csm_doppelhaus-159-og-grundriss-aktion-qng_5ebfbdfc14.jpg)
![[Translate to Italiano:] Planungsoption (Erdgeschoss) QNG⁺-Line Doppelhaus 159: Grundrissoption EG - Hanse Haus](/fileadmin/_processed_/b/8/csm_doppelhaus-159-eg-grundrissoption-aktion-qng_5e521041a0.jpg)
![[Translate to Italiano:] Planungsoption (Obergeschoss) QNG⁺-Line Doppelhaus 159: Grundrissoption OG - Hanse Haus](/fileadmin/_processed_/b/6/csm_doppelhaus-174-og-grundrissoption-aktion-qng_ece8472c83.jpg)



