QNG⁺-Line: Viel Tageslicht und klare Linien in zwei Vollgeschossen
Die QNG⁺‑Line Villa 142 bietet auf 135 m² moderne Architektur und eine durchdachte Planung in zwei Vollgeschossen; die über Eck verlaufende Fensterfront bringt zusätzlich Licht ins Haus – ideal für Eltern und zwei Kinder.
Im Erdgeschoss: Abstellraum unter der Treppe, L‑förmiges Haustürvordach mit Seitenteil und ein Gäste‑WC mit Dusche. Größeres Fenster und Terrassentür sowie die Eckverglasung öffnen den Wohn‑ und Essbereich großzügig zum Garten.
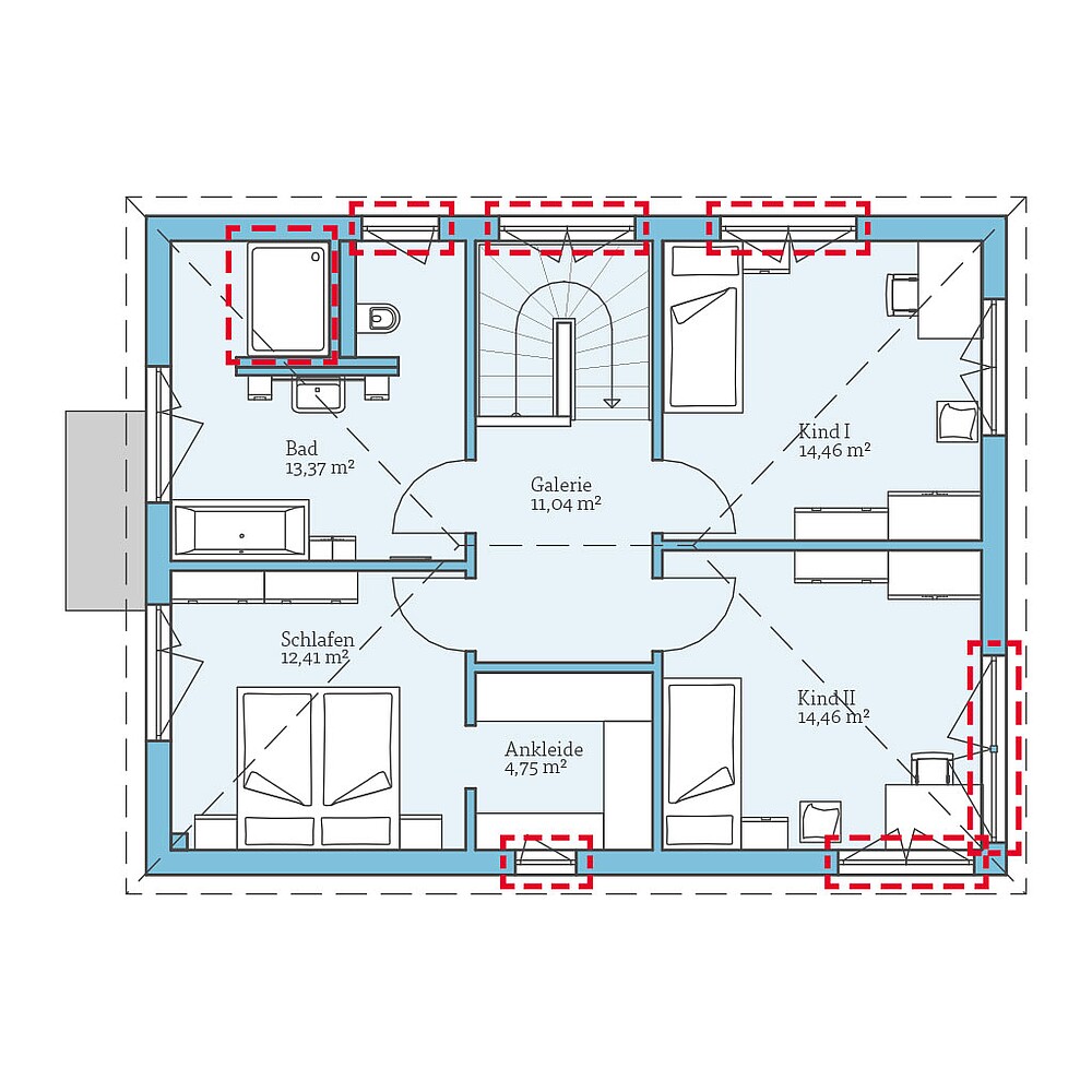
Im Obergeschoss erhöhen eine größere Dusche sowie zusätzliche und vergrößerte Fenster den Komfort und sorgen für viel Helligkeit in allen Zimmern.
Bis zu 10 % sparen dank serieller Fertigung
- Ausbauhaus: ab 264.516 €
- Technikfertig: ab 323.296 €
- Fast Fertig: ab 339.118 €
- Schlüsselfertig: ab 374.045 €
Ihr Vorteil
Wir können garantieren, dass Ihr Fertighaus aus der QNG+-Line unter Einhaltung bestimmter Vorgaben eine QNG-Zertifizierung erhält. So ist die höchste Förderstufe der KfW-Förderung Wohneigentum für Familien möglich und Sie profitieren von zinsgünstigen Krediten, die Ihnen die Finanzierung noch einmal zusätzlich erleichtern.
Info:
Abbildungen und Grundrisse enthalten Sonderausstattungen und Anbauten, die nicht im Grundpreis enthalten sind.
| Merkmale | |
|---|---|
| Dachform | Walmdach |
| Dachneigung | 25° |
| Wohnfläche | 135,29 m² |
| Grundfläche | 141,82 m² |
| Anzahl Geschosse | 2 |
Planungs-
möglichkeiten
Da die Häuser aus der QNG+-Line seriell gefertigt werden, ist keine individuelle Planung möglich. Trotzdem stehen Ihnen einige Planungsmöglichkeiten offen:
Ergeschoss
- Abstellraum unter der Treppe
- L-förmiges Haustürvordach und -Seitenteil
- Dusche im Gäste-WC
- Größeres Fenster und Terrassentür
Obergeschoss
- Größere Dusche
- Zusätzliches Fenster
- Größere Fenster
Grundrisse
Bekommen Sie durch die Grundrisse einen Eindruck von unserem Fertighaus aus der QNG⁺-Line.
Voraussetzung für die serielle, günstigere Fertigung ist, dass an den vordefinierten Grundrissen nur bestimmte Änderungen vorgenommen werden können. Entdecken Sie die unterschiedlichen Planungsoptionen für diesen Hausentwurf!














